Fnaim.fr
Menu

Visite virtuelle
Réf. VA6297-BIENALAMER

Achat Appartement 2 pièces 45m² ST TROJAN LES BAINS 17370

328 000 Honoraires charge vendeur

1 chambre Parking / Garage

Description du bien

L'agence 'MON BIEN A LA MER', spécialiste de l'immobilier neuf bords de Mer, vous présente :

L'exception sur l'Ile d'Oléron :
Plein front de Mer, face au soleil levant au 8 bd de la Plage à SAINT TROJAN.

Une restauration d'un bâtiment historique de grand standing :
Seulement 22 appartements et 11 Maisons, dans un domaine paysager privé avec piscine chauffée.
Frais de notaire réduits.

Prestations de qualité, chauffe-eau thermodynamiques+panneaux rayonnants, ascenseur, parkings, caves, grande hauteur sous plafonds, parquets, domotique, placards terminés, carrelage Porcelanosa, appartements traversants? : tout a été pensé pour votre confort.

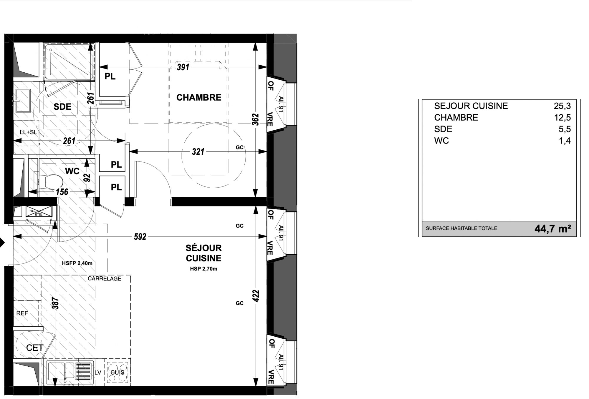
T2 en front de Mer, 2è étage.
Séjour 25m2, wc séparé, suite parentale.
Parking et cave inclus.

Livré 3è trimestre 2027.

Nous consulter

Honoraires à la charge du vendeur. Non soumis au DPE. Les informations sur les risques auxquels ce bien est exposé sont disponibles sur le site Géorisques : georisques.gouv.fr.

Votre conseiller MON BIEN A LA MER : Gérant - .fr MON BIEN A LA MER
Carte T CPI 2201 2018 000 025 040
RCP ACM IARD B1 7025278

Etat des risques et pollutions

Les informations sur les risques auxquels ce bien est exposé sont disponibles sur le site Géorisques : www.georisques.gouv.fr.

Caractéristiques du bien

Composition du bien

  • Type d'habitation : Appartement
  • Nombre de pièce(s) : 2
  • Nombre de chambre(s) : 1
  • Salles de bain : 1

Aménagement du bien

Extérieur

  • Terrasse : Non
  • Balcon : Non

Partie Commune

  • Ascenseur : Non
  • Surface habitable : 45 m²
  • Parking : Oui

Localisation du bien

ST TROJAN LES BAINS (17370) , CHARENTE-MARITIME (17) - NOUVELLE-AQUITAINE

Ce bien n'est pas géolocalisé, pour connaitre sa géolocalisation, merci de contacter l'agence.

Consommation énergétique

DPE non soumis
mention indiquée sous la responsabilité de l’agence immobilière

Nos professionnels vous accompagnent

Contactez notre agence !

23 Rue des Villeneuves Le Bignon 22400 MORIEUX

Appeler l’agence Tél : 0787285150

* Champs obligatoires

Nous vous informons de l’existence de la liste d’opposition au démarchage téléphonique « BLOCTEL » sur laquelle vous pouvez vous inscrire (https://www.bloctel.gouv.fr).

En complétant le formulaire «CONTACTEZ NOTRE AGENCE », je reconnais expressément que je consens au traitement de mes données personnelles et que je dispose du droit de retirer mon consentement à tout moment en m'adressant à support@fnaim.fr.
En savoir plus sur la gestion de vos données et droits : consulter nos mentions légales, « article 5/ Données à caractère personnel ».

En envoyant ce message, vous acceptez les conditions d'utilisation du site. Plus d'infos