Fnaim.fr
Menu

Exclusivité
Réf. 692

Achat Local commercial

130 000 Honoraires charge vendeur

Description du bien


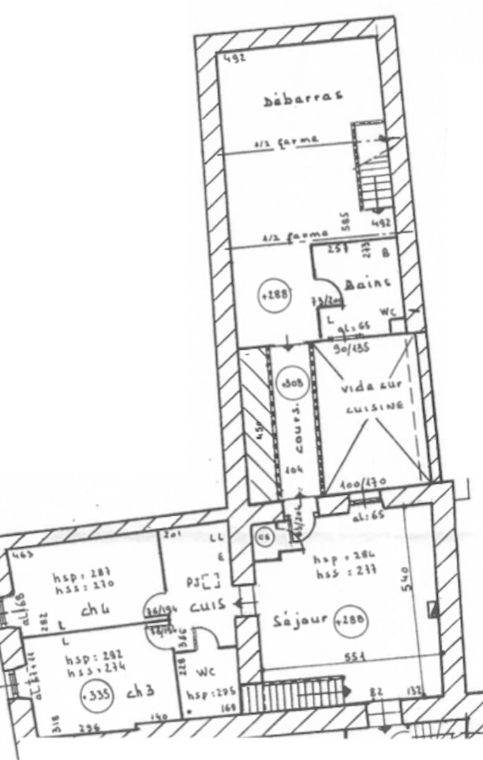
AEXCLUSIVITE BLOWSENS
vendre-Local commercial + logement

Emplacement N°1- SUR LA PLACE DU VILLAGE
- Aux portes du Marais Poitevin -

Situé sur la place principale de Courçon, à l'emplacement le plus prisé du village ,ce bien offre un cadre idéal pour developper une activité professionnelle tout en profitant d'un environnement charmant et dynamique.
Courçon, village de 2267 habitants, bénéficie d'une école primaire, d'un collége , d'un complexe sportif ,et reste à quelques kilomètres d'une zone commerciale dynamique.
Le tout, aux portes du Marais Poitevin, un secteur naturel recherché et trés apprécié.
Ensemble immobilier comprenant un local commercial et un appartement à l'étage .

Les informations sur les risques auxquels ce bien est exposé sont disponibles sur le site Géorisques : www.georisques.gouv.fr
N° de mandat 3138 - Frais d'agence Inclus à la charge Vendeur - Pour visiter, ou pour toutes informations, contactez votre agence BLOWSENS Immobilier au 05.16.40.50.20. Toutes nos annonces sont disponibles sur notre site internet : www.blowsens.fr

Etat des risques et pollutions

Les informations sur les risques auxquels ce bien est exposé sont disponibles sur le site Géorisques : www.georisques.gouv.fr.

Caractéristiques du bien

Composition du bien

Consommation énergétique

  • E (306 kWh/m² an)
    B (8 kgCO2/m².an)
    Plus d'info
    306
    8
    8
  • DPE réalisé après le 1er juillet 2021.
  • Non communiqué
    Non communiqué

Nos professionnels vous accompagnent

Contactez notre agence !

73 rue de l'Aunis 17220 STE SOULLE

Appeler l’agence Tél : 0516405020

* Champs obligatoires

Nous vous informons de l’existence de la liste d’opposition au démarchage téléphonique « BLOCTEL » sur laquelle vous pouvez vous inscrire (https://www.bloctel.gouv.fr).

En complétant le formulaire «CONTACTEZ NOTRE AGENCE », je reconnais expressément que je consens au traitement de mes données personnelles et que je dispose du droit de retirer mon consentement à tout moment en m'adressant à support@fnaim.fr.
En savoir plus sur la gestion de vos données et droits : consulter nos mentions légales, « article 5/ Données à caractère personnel ».

En envoyant ce message, vous acceptez les conditions d'utilisation du site. Plus d'infos