Fnaim.fr
Menu

Exclusivité
Réf. T537

Achat Maison 5 pièces 98m² BEIGNON 56380

250 080 Honoraires charge acquéreur inclus : 4,2% TTC (239577 € hors honoraires)

4 chambres Jardin Parking / Garage

Description du bien

Découvrez avec CHT Immobilier cette maison neuve, située au coeur de Brocéliande, dans centre-ville de Beignon à proximité des commerces et des écoles.
Idéalement placée à proximité des commerces et des écoles, cette propriété offre un cadre de vie pratique et paisible.
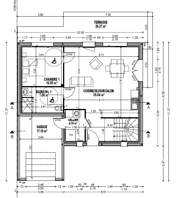
Construite selon la norme RT 2020, cette maison allie modernité et confort. Au rez-de-chaussée, vous trouverez une entrée accueillante, une cuisine aménagée et équipée ouverte sur un spacieux salon-séjour, ainsi qu'une chambre et salle d'eau fonctionnelle et un cellier. À l'étage, un dégagement dessert trois chambres et une salle de bains avec WC.
Le bien dispose également d'un garage attenant, parfait pour votre véhicule ou pour du rangement supplémentaire. Le tout est édifié sur un terrain clôturé sur trois côtés d'environ 262 m2, offrant un espace extérieur agréable pour profiter des beaux jours.
Ce bien représente une opportunité rare : une maison neuve avec en plus des avantages financiers tels que des honoraires d'agence et des frais de notaire réduits.
Pour plus d'informations ou pour organiser une visite, n'hésitez pas à contacter CHT Immobilier au 02 99 06 98 97. Nous serons ravis de vous accompagner dans votre projet immobilier !
Les informations sur les risques auxquels ce bien est exposé sont disponibles sur le site Géorisques : www.georisques.gouv.fr.
Vous avez un projet immobilier sur le secteur de Brocéliande ? Pour vendre, acheter ou louer une maison à Plélan le Grand, Guer, Beignon, Saint Malo de Beignon, Porcaro, Augan, Monteneuf, Concoret, Campénéac, Paimpont, Saint Péran, Iffendic, Monterfil, Montfort sur Meu, Saint Thurial, Bovel, Loutehel, Val d'Anast, Maxent, Treffendel, Saint Malon sur Mel, Baulon... contactez nous. Sept conseillers à votre service, trois vitrines à Plélan le grand, Saint Cyr Coëtquidan et Beignon et publication de nos annonces sur plus de 80 sites internet. Plus d'offres sur cht-immobilier.com

Etat des risques et pollutions

Les informations sur les risques auxquels ce bien est exposé sont disponibles sur le site Géorisques : www.georisques.gouv.fr.

Caractéristiques du bien

Composition du bien

  • Type d'habitation : Maison
  • Nombre de chambres : 4
  • Nombre de salles de bain : 1
  • Cuisine : 402

Aménagement du bien

  • Cave : Non
  • Garage / Parking : Oui
    • Surface habitable : 98 m²
    • Parking : Oui

    Localisation du bien

    BEIGNON (56380) , MORBIHAN (56) - BRETAGNE

    Ce bien n'est pas géolocalisé, pour connaitre sa géolocalisation, merci de contacter l'agence.

    Consommation énergétique

    • A (67 kWh/m² an)
      A (2 kgCO2/m².an)
      Plus d'info
      67
      2
      2
    • DPE réalisé après le 1er juillet 2021.
    • Entre 410 € TTC / an et 710 € TTC / an
      01/01/2023

    Nos professionnels vous accompagnent

    Contactez notre agence !

    54 AVENUE DE LA LIBERATION 35380 PLELAN LE GRAND

    Appeler l’agence Tél : 02 99 06 98 97

    * Champs obligatoires

    Nous vous informons de l’existence de la liste d’opposition au démarchage téléphonique « BLOCTEL » sur laquelle vous pouvez vous inscrire (https://www.bloctel.gouv.fr).

    En complétant le formulaire «CONTACTEZ NOTRE AGENCE », je reconnais expressément que je consens au traitement de mes données personnelles et que je dispose du droit de retirer mon consentement à tout moment en m'adressant à support@fnaim.fr.
    En savoir plus sur la gestion de vos données et droits : consulter nos mentions légales, « article 5/ Données à caractère personnel ».

    En envoyant ce message, vous acceptez les conditions d'utilisation du site. Plus d'infos