Fnaim.fr
Menu

Réf. 430544MCO

Achat Maison 4 pièces 82m² STE GENEVIEVE DES BOIS 91700

296 400 Honoraires charge acquéreur inclus : 4% TTC (284544 € hors honoraires)

2 chambres Jardin Parking / Garage

Description du bien

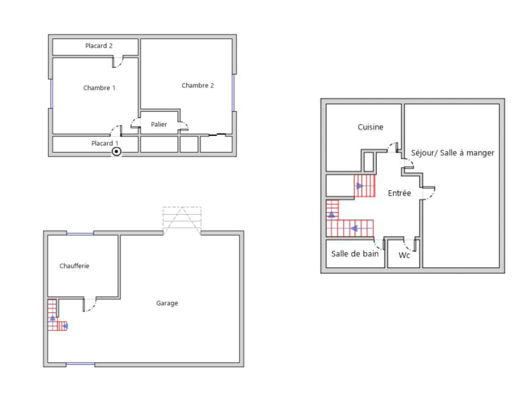
91700 - Sainte Geneviève des Bois: Située dans le quartier recherché du vieux Perray, à 5 min à pied de la gare RER C (20 min de Paris) et ses commerces, des promenades du parc de l'orge, des écoles de la Boële et lycée Jules Ferry. Cette maison non mitoyenne de 4 pièces est composée en Rdc sur élevé: d'une cuisine dinatoire indépendante et d'un séjour-salle à manger de 29 m² (qui peut être transformé en Séjour et chambre selon les besoins) ainsi que d'une salle de bain et wc séparé.
A l'étage: 2 grandes chambres de 12 et 14 m² et 2 greniers de 6 m² environ à aménager (salle d'eau, dressing ou bureau).
Au sous sol: Garage, cave, chaufferie et buanderie.
Rénovation à prévoir.
Autres atouts de cette maison: Chauffage au gaz, fenêtres double vitrage, parquet en chêne et belle hauteur sous plafond, plusieurs places de stationnement dans la cours.
Ce bien vous est proposé au prix de 296 400 euros incluant les honoraires de 3,99 % soit 11 400 euros à la charge de l'acquéreur.
DPE : Classe E et GES : classe E
Montant estimé des dépenses annuelles d'énergie pour un usage standard entre 1690 euros et 2340 euros indexées au 01/01/2021.
Pour visiter et vous accompagner dans votre projet, contactez Marc CORNERO, au 0623087764 ou, par courriel à m.cornero@proprietes-privees.com.
Selon l'article L.561.5 du Code Monétaire et Financier, pour l'organisation de la visite, la présentation d'une pièce d'identité vous sera demandée.
Cette présente annonce a été rédigée sous la responsabilité éditoriale de Marc CORNERO agissant sous le statut d'agent commercial immatriculé au RSAC EVRY 829541804 auprès de SAS PROPRIETES PRIVEES, au capital de 44 920 euros, ZAC LE CHÊNE FERRÉ - 44 ALLÉE DES CINQ CONTINENTS 44120 VERTOU; SIRET 487 624 777 00040, RCS Nantes. Carte Professionnelle Transactions sur immeubles et fonds de commerce (T) et Gestion immobilière (G) n°CPI 4401 2016 000 010 388 délivrée par la CCI Nantes - Saint Nazaire. Compte séquestre n°30932508467 BPA SAINT-SEBASTIEN-SUR-LOIRE (44230). Garantie GALIAN-SMABTP - 89 rue de la Boétie, 75008 Paris - n°28137 J pour 2 000 000 euros pour T et 120 000 euros pour G. Assurance responsabilité civile professionnelle par GALIAN-SMABTP n° de police 28137 J.
Mandat réf : N°430544 - Le professionnel garantit et sécurise votre projet immobilier. (4.00 % honoraires TTC à la charge de l'acquéreur.)

Marc CORNERO (EI) Agent Commercial - Numéro RSAC : EVRY 829541804 - .
Les informations sur les risques auxquels ce bien est exposé sont disponibles sur le site Géorisques : www. georisques. gouv. fr

Etat des risques et pollutions

Les informations sur les risques auxquels ce bien est exposé sont disponibles sur le site Géorisques : www.georisques.gouv.fr.

Caractéristiques du bien

Composition du bien

  • Type d'habitation : Maison
  • Nombre de chambres : 2
  • Nombre de salles de bain : 1
  • Cuisine : 18

Aménagement du bien

  • Cave : Non
  • Garage / Parking : Oui
    • Surface habitable : 82 m²
    • Parking : Oui

    Localisation du bien

    STE GENEVIEVE DES BOIS (91700) , ESSONNE (91) - ILE-DE-FRANCE

    Ce bien n'est pas géolocalisé, pour connaitre sa géolocalisation, merci de contacter l'agence.

    Consommation énergétique

    • E (319 kWh/m² an)
      E (69 kgCO2/m².an)
      Plus d'info
      319
      69
      69
    • DPE réalisé après le 1er juillet 2021.
    • Entre 1690 € TTC / an et 2340 € TTC / an
      Non communiqué

    Nos professionnels vous accompagnent

    Contactez notre agence !

    44 Allée des Cinq Continents ZAC Le Chêne Ferré 44120 VERTOU

    Appeler l’agence Tél : 06 23 08 77 64

    * Champs obligatoires

    Nous vous informons de l’existence de la liste d’opposition au démarchage téléphonique « BLOCTEL » sur laquelle vous pouvez vous inscrire (https://www.bloctel.gouv.fr).

    En complétant le formulaire «CONTACTEZ NOTRE AGENCE », je reconnais expressément que je consens au traitement de mes données personnelles et que je dispose du droit de retirer mon consentement à tout moment en m'adressant à support@fnaim.fr.
    En savoir plus sur la gestion de vos données et droits : consulter nos mentions légales, « article 5/ Données à caractère personnel ».

    En envoyant ce message, vous acceptez les conditions d'utilisation du site. Plus d'infos