Fnaim.fr
Menu

Achat Local commercial

715 000 Honoraires charge vendeur

Description du bien


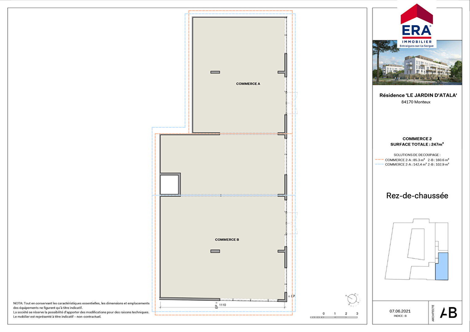
À VENDRE Local commercial 247 m² Lac de Monteux

Situé au coeur de la résidence Le Jardin d'Atala, à proximité immédiate du lac de Monteux, ce local commercial de 247 m² offre un emplacement stratégique dans un environnement dynamique et attractif. Nombreux commerces à proximité « Horizon Provence »

Idéal pour une activité commerciale, professionnelle ou de services, ce bien bénéficie de beaux volumes, d'une excellente visibilité et d'un fort potentiel d'aménagement selon votre projet.

Implanté dans un secteur en plein développement, à proximité des axes de circulation et des commodités, ce local constitue une opportunité rare pour investisseurs ou exploitants souhaitant s'implanter durablement.

Plusieurs options d'achat sont possibles selon le choix du 1er acquéreur dans la limite de 2 divisions de lots pour les commerces 1 et 2 en raison des accès aux alimentations électriques .

Des murs intérieurs de séparation seront prévus par le promoteur selon configuration des réservations des différents locaux .
La surface de chaque local pourra varier légèrement selon plan architecte final après cloisonnement intérieur

Surface : 247 m²
vendus en surfaces brutes sans vitrines avec les fluides en attente .
Résidence récente : Le Jardin d'Atala
Environnement attractif : Lac de Monteux
Disponibilité immédiate

Une opportunité à saisir sans attendre.

Etat des risques et pollutions

Les informations sur les risques auxquels ce bien est exposé sont disponibles sur le site Géorisques : www.georisques.gouv.fr.

Caractéristiques du bien

Composition du bien

Consommation énergétique

DPE non soumis
mention indiquée sous la responsabilité de l’agence immobilière

Nos professionnels vous accompagnent

Contactez notre agence !

23, rue Eugène Bertrand 84320 ENTRAIGUES SUR LA SORGUE

Appeler l’agence Tél : 0432400681

* Champs obligatoires

Nous vous informons de l’existence de la liste d’opposition au démarchage téléphonique « BLOCTEL » sur laquelle vous pouvez vous inscrire (https://www.bloctel.gouv.fr).

En complétant le formulaire «CONTACTEZ NOTRE AGENCE », je reconnais expressément que je consens au traitement de mes données personnelles et que je dispose du droit de retirer mon consentement à tout moment en m'adressant à support@fnaim.fr.
En savoir plus sur la gestion de vos données et droits : consulter nos mentions légales, « article 5/ Données à caractère personnel ».

En envoyant ce message, vous acceptez les conditions d'utilisation du site. Plus d'infos