Fnaim.fr
Menu

Exclusivité
Réf. 431517EGIR

Achat Appartement 2 pièces 52m² BESANCON 25000

159 500 Honoraires charge vendeur

1 chambre Parking / Garage

Description du bien

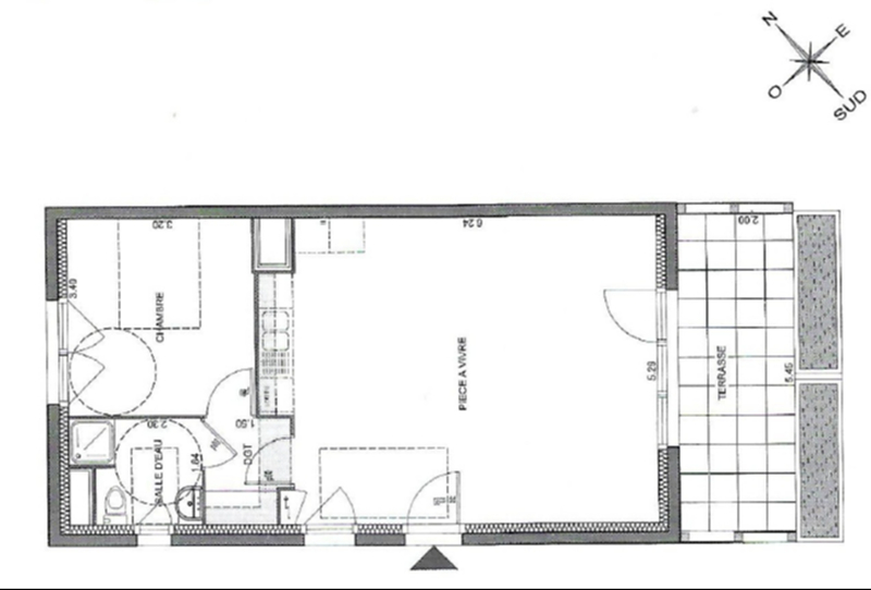
Ce spacieux appartement T2 se compose d'une entrée ouverte sur une grande pièce de vie de plus de 34,50 m², comprenant salon séjour avec espace dinatoire. La grande baie vitrée offre un espace agréable à vivre baigné de lumière et ouvre sur la grande terrasse orientée plein sud (11 m²). L'appartement dispose également d'une grande chambre, d'une salle de douche avec WC et sa fenêtre, ainsi que d'un dégagement avec placard de rangement.
Le garage privatif est profond permettant de stocker du matériel. Un Local à vélos est également à disposition. Une barrière sécurise l'accès à la zone de stationnement de la copropriété.
A quelques mètres se trouve une aire de stationnement Gratuite ainsi que la station de Tramway, et les lignes de bus, l'ensemble permettant de rejoindre facilement le centre-ville sans avoir recours à l'utilisation d'un véhicule.
Ce logement peut convenir à un couple ou à une personne seule désirant profiter d'un spacieux espace de vie. Il est disponible et libre de tout occupant (ancien loyer pratiqué : 690 euros charges incluses).
-Autre Atout : Logement à faible consommation énergétique bénéficiant du mode de chauffage urbain économique de la ville ; les radiateurs sont équipés de vannes thermostatiques permettant de gérer individuellement sa propre consommation.
Idéalement situé au sein d'un quartier résidentiel prisé pour sa situation privilégiée très proche de la Faculté de Médecine, du CHU Jean Minjoz, du TRAM et du Centre Commercial de Châteaufarine, l'ensemble immobilier bénéficie d'un environnement très calme avec des sentiers cyclistes et pédestres à quelques mètres ainsi que la forêt du village de Franois très proche.
-------------------------------------------------------------------
Prix : 159500 euros honoraires charge vendeur.
Informations DPE : Consommation énergétique classe C 116 kWh/m2/an - Émission de GES : classe B 8 kgCO2/m2/an.
Montant estimé des dépenses annuelles d'énergie pour un usage standard établi à partir des prix moyens de l'énergie indexés aux années 2021, 2022 et 2023 (abonnements compris) entre 490 euros et 730 euros.
Pour visiter et vous accompagner dans votre projet, contactez Elisabeth GIRARD, de préférence au 06.18.20.76.50 ou par courriel à e.girard@proprietes-privees.com
Selon l'article L.561.5 du Code Monétaire et Financier, pour l'organisation de la visite, la présentation d'une pièce d'identité vous sera demandée. Cette vente est garantie 12 mois.
Cette présente annonce a été rédigée sous la responsabilité éditoriale de Elisabeth GIRARD agissant sous le statut d'agent commercial immatriculé au RSAC BESANCON 521 595 066 auprès de la SAS PROPRIETES PRIVEES, au capital de 44 920 euros, ZAC LE CHÊNE FERRÉ - 44 ALLÉE DES CINQ CONTINENTS 44120 VERTOU ; SIRET 487 624 777 00040, RCS Nantes. Carte professionnelle Transactions sur immeubles et fonds de commerce (T) et Gestion immobilière (G) n° CPI 4401 2016 000 010 388 délivrée par la CCI Nantes - Saint Nazaire. Compte séquestre n°30932508467 BPA SAINT-SEBASTIEN-SUR-LOIRE (44230) ; Garantie GALIAN-SMABTP - 89 rue de la Boétie, 75008 Paris - n°28137 J pour 2 000 000 euros pour T et 120 000 euros pour G. Assurance responsabilité civile professionnelle par GALIAN-SMABTP n° de police 28137.J
Mandat réf : 431517 Le professionnel garantit et sécurise votre projet immobilier.

Copropriété de 52 lots - dont 26 lots habitation.

Charges annuelles : 1728 euros.
Elisabeth GIRARD (EI) Agent Commercial - Numéro RSAC : BESANCON 521 595 066 - .
Les informations sur les risques auxquels ce bien est exposé sont disponibles sur le site Géorisques : www. georisques. gouv. fr

Etat des risques et pollutions

Les informations sur les risques auxquels ce bien est exposé sont disponibles sur le site Géorisques : www.georisques.gouv.fr.

Caractéristiques du bien

Composition du bien

  • Type d'habitation : Appartement
  • Cuisine : 18
  • Nombre de pièce(s) : 2
  • Nombre de chambre(s) : 1

Aménagement du bien

Extérieur

  • Terrasse : Non
  • Balcon : Non

Partie Commune

  • Ascenseur : Non
  • Surface habitable : 52 m²
  • Parking : Oui

Informations sur la copropriété

  • Bien soumis au statut de la copropriété
  • Nombre de lots : 52
  • Quote part charges courantes : 1728 €/an
  • Procédure en cours : Non

Localisation du bien

BESANCON (25000) , DOUBS (25) - BOURGOGNE-FRANCHE-COMTÉ

Consommation énergétique

  • C (116 kWh/m² an)
    B (8 kgCO2/m².an)
    Plus d'info
    116
    8
    8
  • DPE réalisé après le 1er juillet 2021.
  • Entre 490 € TTC / an et 730 € TTC / an
    Non communiqué

Nos professionnels vous accompagnent

Contactez notre agence !

44 Allée des Cinq Continents ZAC Le Chêne Ferré 44120 VERTOU

Appeler l’agence Tél : 06 18 20 76 50

* Champs obligatoires

Nous vous informons de l’existence de la liste d’opposition au démarchage téléphonique « BLOCTEL » sur laquelle vous pouvez vous inscrire (https://www.bloctel.gouv.fr).

En complétant le formulaire «CONTACTEZ NOTRE AGENCE », je reconnais expressément que je consens au traitement de mes données personnelles et que je dispose du droit de retirer mon consentement à tout moment en m'adressant à support@fnaim.fr.
En savoir plus sur la gestion de vos données et droits : consulter nos mentions légales, « article 5/ Données à caractère personnel ».

En envoyant ce message, vous acceptez les conditions d'utilisation du site. Plus d'infos