Fnaim.fr
Menu

Acheter

Exclusivité
Réf. 1403-LAVILLA92

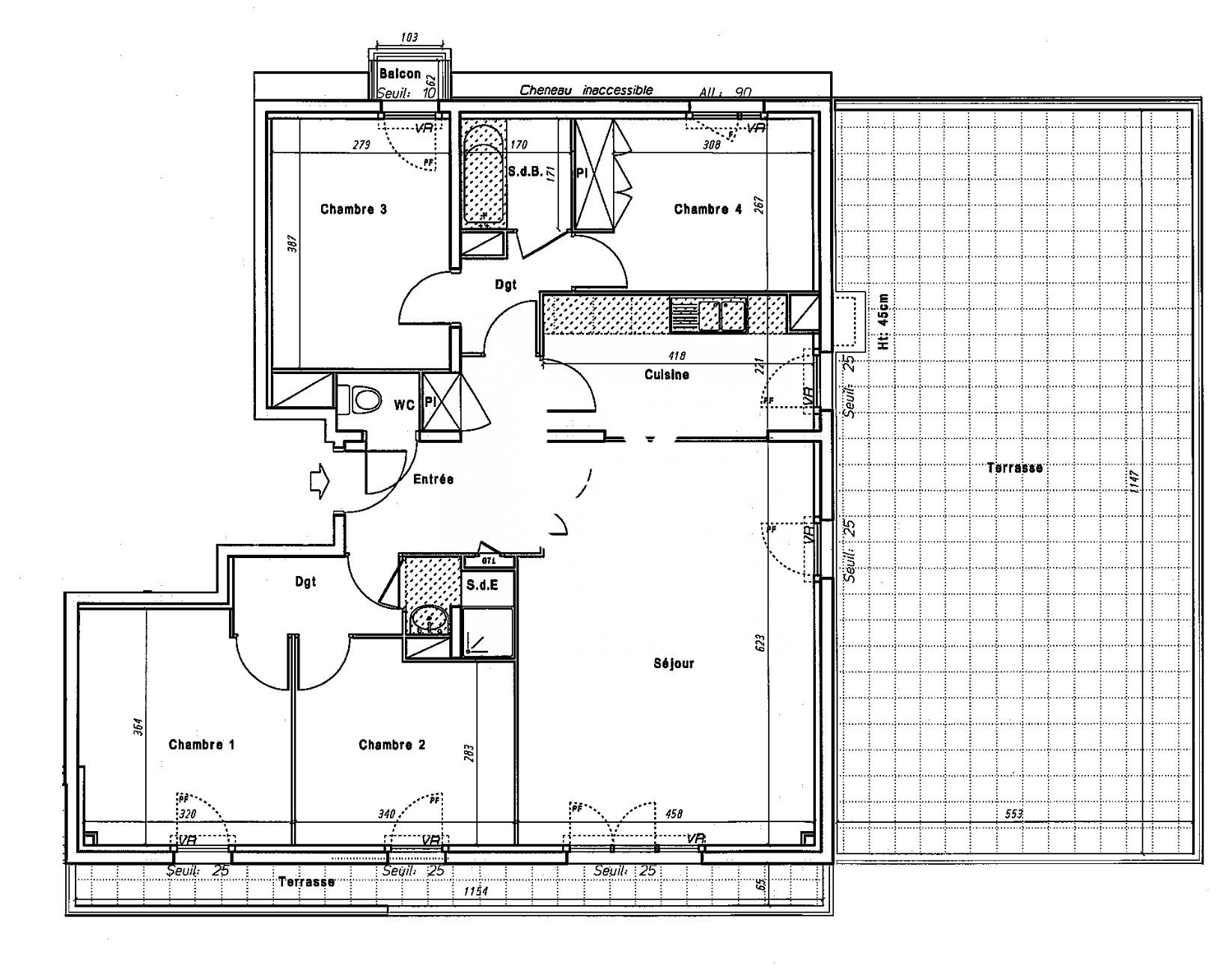
Achat Appartement 5 pièces 98m² GENNEVILLIERS 92230

535 000 Honoraires charge acquéreur inclus : 3.5% TTC (517008 € hors honoraires)

4 chambres Balcon Ascenseur Parking / Garage

Description du bien

EXCLUSIVITÉ LA VILLA 92 - GENNEVILLIERS - COULÉE VERTE - MAIRIE - APPARTEMENT T5 DE 98 M2 - 4 CHAMBRES - TERRASSE DE 70,51 M2 - BALCON - 2 PARKING - CLIMATISATION -
C'est une configuration optimale que vous propose La Villa 92 pour cet appartement de 5 pièces qui permet dans 98 m2 de bénéficier d'un très bel espace de vie et de quatre chambres.
En effet, l'atout principal des lieux réside dans le coeur battant dans la combinaison cuisine ouverte sur séjour donnant sur une terrasse de 70 m2... Cette dernière, plein ciel et aux multiples expositions est plus qu'une sixième pièce : elle permet d'envisager tout ce dont ont rêve en espace extérieur. Ainsi les transats peuvent cohabiter avec table à manger, salon outdoor, jeux pour enfants et barbecue : un véritable 'appartement d'extérieur'.
Il y a quatre chambres, dont trois avec balcon, une salle de bains, une salle d'eau, un wc séparé et des rangements.
Pour parfaire le descriptif, deux places de stationnement permettent facilement de se garer dans un quartier où c'est primordial.
Si vous connaissez Gennevilliers, les nouveaux quartiers proches de la Mairie sont agréables, à proximité d'infrastructures sportives, de parcs, de commerces de proximité, d'écoles menant de la maternelle au lycée, des transports en commun. Et si vous ne connaissez pas cette ville, La Villa 92 saura vous accompagner dans cette découverte !
La Villa 92, une agence pas tout à fait comme les autres, spécialiste de l'accompagnement immobilier à Asnières et dans les Hauts de Seine pour l'achat, la vente, la location et la gestion de votre bien immobilier.
ACQUÉREURS : toutes nos transactions bénéficient GRATUITEMENT de la GARANTIE REVENTE.
La copropriété inclut 368 lots dont 110 lots d'habitation. Le montant annuel des charges appelées pour 2025 est de 3941 ?, incluant le chauffage, l'eau chaude et froide.
Les honoraires de l'agence sont à la charge de l'acquéreur (pour consulter nos honoraires : http://www.lavilla92.fr/public/files/files/honoraires.pdf)
Les informations sur les risques auxquels ce bien est expose? sont disponibles sur le site Ge?orisques : www.georisques.gouv.fr

Honoraires inclus de 3.48% TTC à la charge de l'acquéreur. Prix hors honoraires 517 000 ?. Dans une copropriété de 368 lots. Quote-part moyenne du budget prévisionnel 3 941 ?/an. Aucune procédure n'est en cours. Classe énergie D, Classe climat D Montant estimé des dépenses annuelles d'énergie pour un usage standard : entre 1320.00 ? et 1820.00 ? sur les années 2021, 2022 et 2023 (abonnements compris). Les informations sur les risques auxquels ce bien est exposé sont disponibles sur le site Géorisques : georisques.gouv.fr.
.
La Villa 92, une agence pas tout à fait comme les autres, spécialiste de l'accompagnement immobilier à Paris, Asnières et dans les Hauts de Seine pour l'achat, la vente, la location et la gestion de votre bien immobilier.

Etat des risques et pollutions

Les informations sur les risques auxquels ce bien est exposé sont disponibles sur le site Géorisques : www.georisques.gouv.fr.

Caractéristiques du bien

Composition du bien

  • Type d'habitation : Appartement
  • Cuisine : 19
  • Nombre de pièce(s) : 5
  • Nombre de chambre(s) : 4
  • Salles de bain : 1

Aménagement du bien

Extérieur

  • Terrasse : Non
  • Balcon : Oui

Partie Commune

  • Ascenseur : Oui
  • Surface habitable : 98 m²
  • Parking : Oui

Informations sur la copropriété

  • Bien soumis au statut de la copropriété
  • Nombre de lots : 368
  • Quote part charges courantes : 3941 €/an
  • Procédure en cours : Non

Localisation du bien

GENNEVILLIERS (92230) , HAUTS-DE-SEINE (92) - ILE-DE-FRANCE

Consommation énergétique

  • D (158 kWh/m² an)
    D (31 kgCO2/m².an)
    Plus d'info
    158
    31
    31
  • DPE réalisé après le 1er juillet 2021.
  • Entre 1320 € TTC / an et 1820 € TTC / an
    01/01/2021

Nos professionnels vous accompagnent

Contactez notre agence !

86 AVENUE DE LA MARNE 92600 ASNIERES SUR SEINE

Appeler l’agence Tél : 0147339953

* Champs obligatoires

Nous vous informons de l’existence de la liste d’opposition au démarchage téléphonique « BLOCTEL » sur laquelle vous pouvez vous inscrire (https://www.bloctel.gouv.fr).

En complétant le formulaire «CONTACTEZ NOTRE AGENCE », je reconnais expressément que je consens au traitement de mes données personnelles et que je dispose du droit de retirer mon consentement à tout moment en m'adressant à support@fnaim.fr.
En savoir plus sur la gestion de vos données et droits : consulter nos mentions légales, « article 5/ Données à caractère personnel ».

En envoyant ce message, vous acceptez les conditions d'utilisation du site. Plus d'infos