Fnaim.fr
Menu

Achat Appartement 3 pièces 59m²

540 000 Honoraires charge vendeur

2 chambres Ascenseur

Description du bien


L'agence CPH IMMOBILIER vous propose un appartement 3 pièces idéalement placé, dans une copropriété avec gardienne, bien entretenue, avec ascenseur, chauffage collectif, au pied du métro Ligne 10 " Station BOULOGNE JEAN JAURES", à proximité des commerces (boutiques et marché), des écoles et collège, à deux pas du Parc Edmond de Rothschild et du Bois de Boulogne.
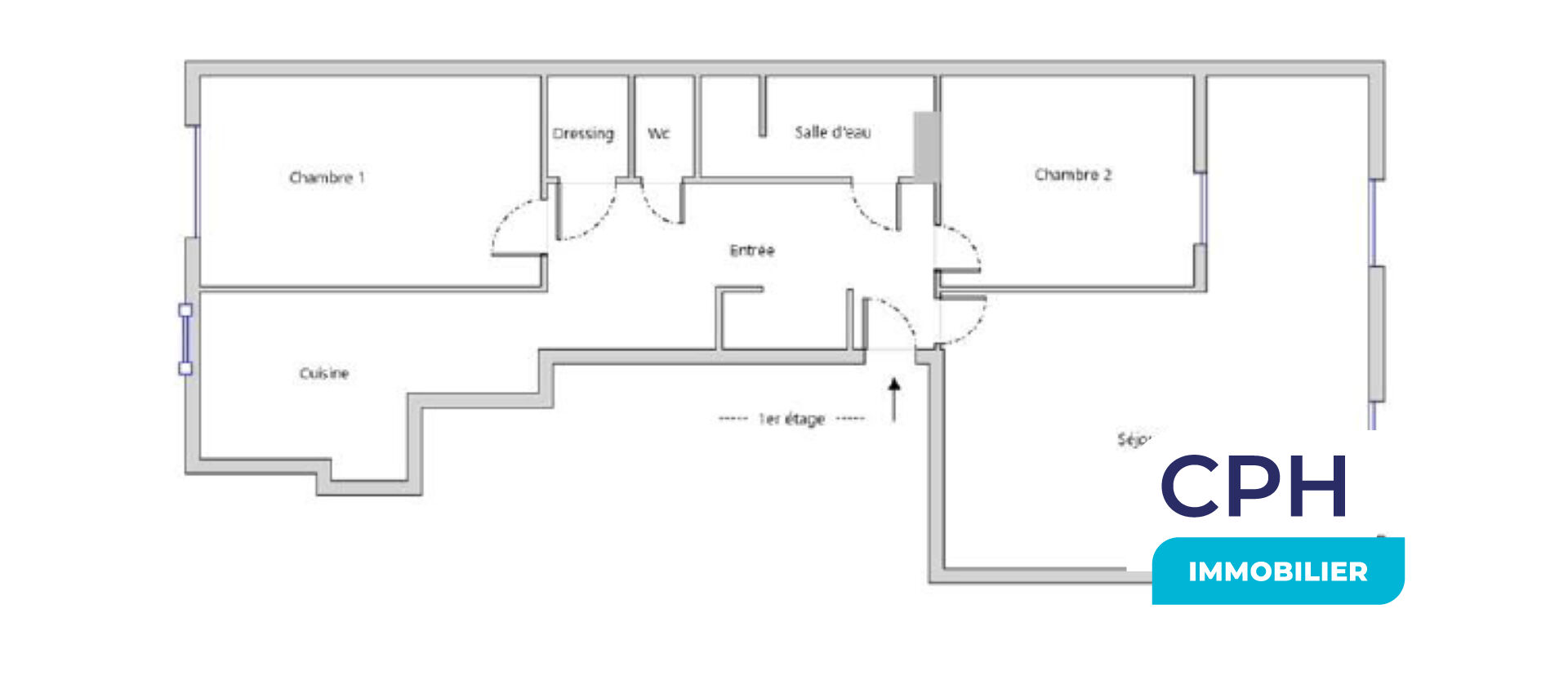
Cet appartement traversant et lumineux propose un agencement optimisé comprenant: une entrée avec un coin bureau et un dressing, un séjour en L orienté SUD-OUEST, une cuisine séparée aménagée, un WC séparé, une salle d'eau, deux chambres, et une cave en sous-sol.

Possibilité de louer un box dans la résidence.

N'hésitez pas à le visiter rapidement !

IDEAL 1er ACHAT ou PIED A TERRE !

COUP DE COEUR ASSURE !

Annonce proposée par Jean-Louis URZANQUI - Agence CPH Immobilier PARIS 12

Montant estimé des dépenses : entre 840 Euro et 1.160 Euro (années de référence 2021-2022 et 2023)
Logement à  consommation énergétique : Classé D
Les informations sur les risques auxquels ce bien est exposé sont disponibles sur le site Géorisques : www.georisques.gouv.fr

Réf.: 225888

Etat des risques et pollutions

Les informations sur les risques auxquels ce bien est exposé sont disponibles sur le site Géorisques : www.georisques.gouv.fr.

Caractéristiques du bien

Composition du bien

  • Type d'habitation : Appartement
  • Nombre de pièce(s) : 3
  • Nombre de chambre(s) : 2

Aménagement du bien

Extérieur

  • Terrasse : Non
  • Balcon : Non

Partie Commune

  • Ascenseur : Oui
  • Surface habitable : 59 m²

Informations sur la copropriété

  • Bien soumis au statut de la copropriété
  • Nombre de lots : 148
  • Quote part charges courantes : 3706 €/an
  • Procédure en cours : Non

Localisation du bien

Ce bien n'est pas géolocalisé, pour connaitre sa géolocalisation, merci de contacter l'agence.

Consommation énergétique

  • D (176 kWh/m² an)
    D (37 kgCO2/m².an)
    Plus d'info
    176
    37
    37
  • DPE réalisé après le 1er juillet 2021.
  • Entre 840 € TTC / an et 1160 € TTC / an
    Non communiqué

Nos professionnels vous accompagnent

Contactez notre agence !

104 RUE ORDENER75018 75018 PARIS 18

Appeler l’agence Tél : 0187270478

* Champs obligatoires

Nous vous informons de l’existence de la liste d’opposition au démarchage téléphonique « BLOCTEL » sur laquelle vous pouvez vous inscrire (https://www.bloctel.gouv.fr).

En complétant le formulaire «CONTACTEZ NOTRE AGENCE », je reconnais expressément que je consens au traitement de mes données personnelles et que je dispose du droit de retirer mon consentement à tout moment en m'adressant à support@fnaim.fr.
En savoir plus sur la gestion de vos données et droits : consulter nos mentions légales, « article 5/ Données à caractère personnel ».

En envoyant ce message, vous acceptez les conditions d'utilisation du site. Plus d'infos