Fnaim.fr
Menu

Achat Maison 4 pièces 76m² BORDEAUX 33000

299 000 Honoraires charge acquéreur inclus : 3,5% TTC (288655 € hors honoraires)

3 chambres

Description du bien

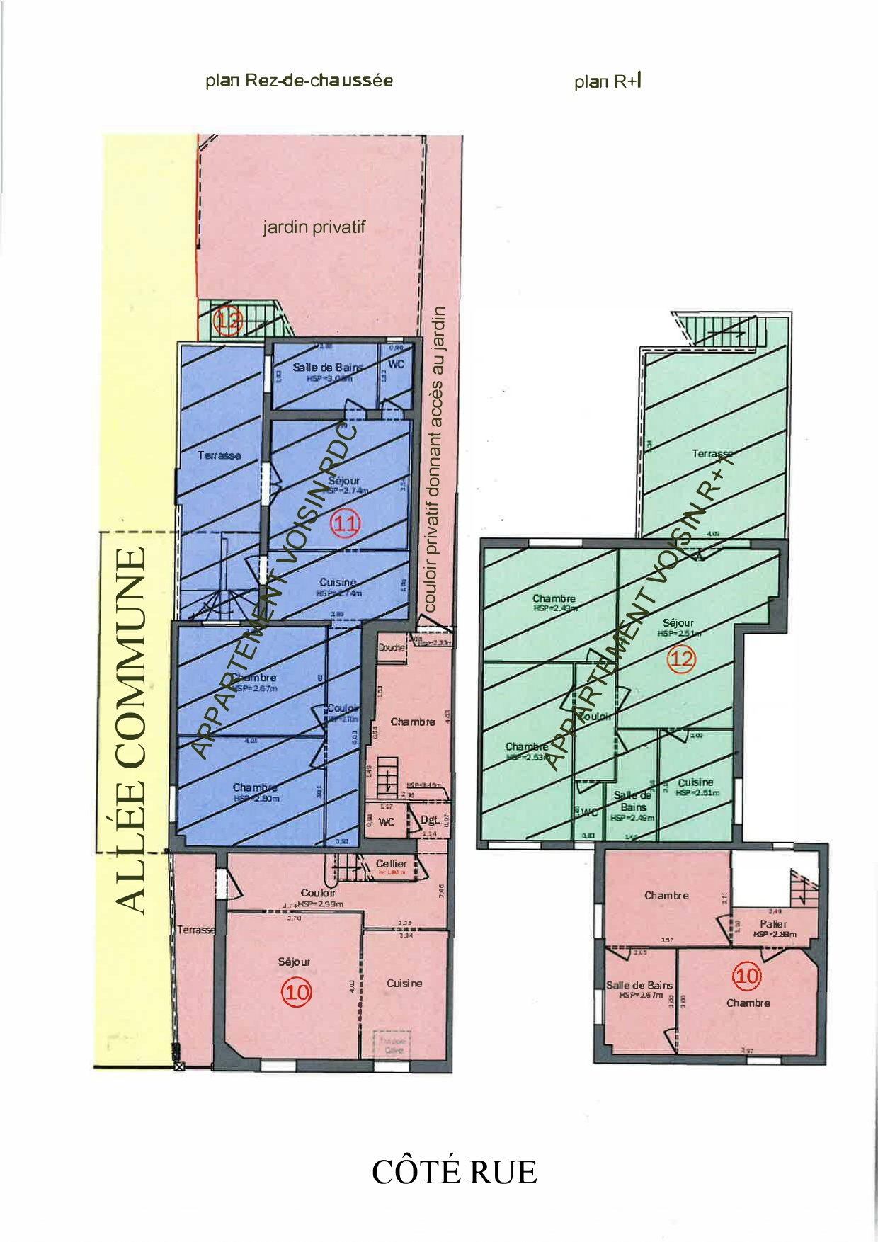
Bordeaux CHU Pellegrin Perrens / barrière de Pessac maison de type 4 dans petite copropriété de 4 logements avec de très faibles charges (16EUR/mois soit 188 EUR/an).
Une belle façade pierre, 2/3 chambres, une cave et la jouissance exclusive d'un jardinet dans la copropriété (vous pourrez y garer vos 2 roues, même motorisés) sont les atouts indéniables de ce bien.
Au rdc vous trouverez une entrée, un séjour avec cuisine ouverte, une pièce avec mezzanine coin couchage et salle d'eau, un WC.
A l'étage un palier, 2 chambres et une salle de bain.
Une belle cave complète ce bien.
Chauffage au gaz, double vitrage, plancher.
Cette maison est habitable mais nécessite d'important travaux de rafraichissement.
Des vidéos de l'agencement de ce bien sont disponibles sur demande.
Annonce rédigée par Océane Blanc-Le Roux, E.I. agent commercial enregistré au RSAC de Bordeaux sous le no905 252 029.
Cette annonce vous est proposée par BLANC-LE ROUX Océane - - NoRSAC: 905 252 029, Enregistré au Greffe du tribunal de commerce de BORDEAUX

Etat des risques et pollutions

Les informations sur les risques auxquels ce bien est exposé sont disponibles sur le site Géorisques : www.georisques.gouv.fr.

Caractéristiques du bien

Composition du bien

  • Type d'habitation : Maison
  • Nombre de chambres : 3
  • Nombre de salles de bain : 1

Aménagement du bien

  • Cave : Non
  • Garage / Parking : Non
    • Surface habitable : 76 m²

    Localisation du bien

    BORDEAUX (33000) , GIRONDE (33) - NOUVELLE-AQUITAINE

    Ce bien n'est pas géolocalisé, pour connaitre sa géolocalisation, merci de contacter l'agence.

    Consommation énergétique

    • E (258 kWh/m² an)
      E (53 kgCO2/m².an)
      Plus d'info
      258
      53
      53
    • DPE réalisé après le 1er juillet 2021.
    • Entre 1760 € TTC / an et 2420 € TTC / an
      01/01/2023

    Nos professionnels vous accompagnent

    Contactez notre agence !

    138 avenue de la Somme 33700 MERIGNAC

    Appeler l’agence Tél : 06.31.31.08.40

    * Champs obligatoires

    Nous vous informons de l’existence de la liste d’opposition au démarchage téléphonique « BLOCTEL » sur laquelle vous pouvez vous inscrire (https://www.bloctel.gouv.fr).

    En complétant le formulaire «CONTACTEZ NOTRE AGENCE », je reconnais expressément que je consens au traitement de mes données personnelles et que je dispose du droit de retirer mon consentement à tout moment en m'adressant à support@fnaim.fr.
    En savoir plus sur la gestion de vos données et droits : consulter nos mentions légales, « article 5/ Données à caractère personnel ».

    En envoyant ce message, vous acceptez les conditions d'utilisation du site. Plus d'infos