Fnaim.fr
Menu

Exclusivité
Réf. 123099

Achat Appartement 3 pièces 67m² STE LUCE SUR LOIRE 44980

259 000 Honoraires charge acquéreur inclus : 5,7% TTC (244211 € hors honoraires)

2 chambres Ascenseur

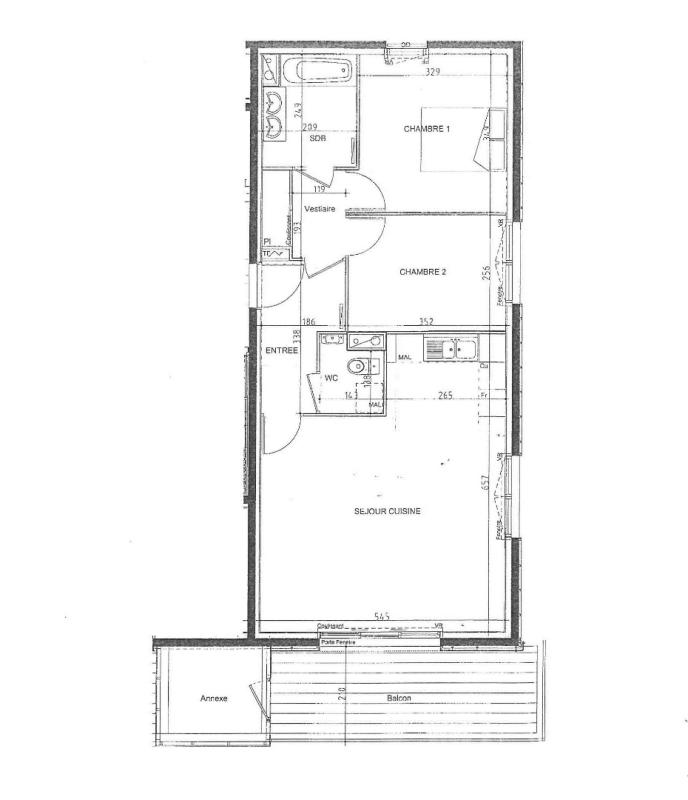
Description du bien

Dans une résidence récente de 2013, rue Anne Claude Godeau, au deuxième étage avec ascenseur, T3 (66.88m²) lumineux comprenant: une entrée, une pièce de vie avec une cuisine aménagée et équipée ouverte sur un balcon de 10.73m² avec un cellier, deux chambres, une salle de bains et des WC séparés. Deux places de parking et une cave en sous-sol complète la vente.
Les charges comprennent l'eau chaude et le chauffage avec un compteur individuel.
Les informations sur les risques auxquels ce bien est exposé sont disponibles sur le site Géorisques : www. georisques. gouv. fr

Etat des risques et pollutions

Les informations sur les risques auxquels ce bien est exposé sont disponibles sur le site Géorisques : www.georisques.gouv.fr.

Caractéristiques du bien

Composition du bien

  • Type d'habitation : Appartement
  • Cuisine : 337
  • Nombre de pièce(s) : 3
  • Nombre de chambre(s) : 2
  • Salles de bain : 1

Aménagement du bien

Extérieur

  • Terrasse : Non
  • Balcon : Non

Partie Commune

  • Ascenseur : Oui
  • Surface habitable : 67 m²

Informations sur la copropriété

  • Bien soumis au statut de la copropriété
  • Nombre de lots : 185
  • Quote part charges courantes : 2714 €/an
  • Procédure en cours : Non

Localisation du bien

STE LUCE SUR LOIRE (44980) , LOIRE-ATLANTIQUE (44) - PAYS-DE-LA-LOIRE

Consommation énergétique

  • B (82 kWh/m² an)
    B (7 kgCO2/m².an)
    Plus d'info
    82
    7
    7
  • DPE réalisé après le 1er juillet 2021.
  • Entre 410 € TTC / an et 600 € TTC / an
    Non communiqué

Nos professionnels vous accompagnent

Contactez notre agence !

27 place Viarme 44000 NANTES

Appeler l’agence Tél : 02 40 47 03 03

* Champs obligatoires

Nous vous informons de l’existence de la liste d’opposition au démarchage téléphonique « BLOCTEL » sur laquelle vous pouvez vous inscrire (https://www.bloctel.gouv.fr).

En complétant le formulaire «CONTACTEZ NOTRE AGENCE », je reconnais expressément que je consens au traitement de mes données personnelles et que je dispose du droit de retirer mon consentement à tout moment en m'adressant à support@fnaim.fr.
En savoir plus sur la gestion de vos données et droits : consulter nos mentions légales, « article 5/ Données à caractère personnel ».

En envoyant ce message, vous acceptez les conditions d'utilisation du site. Plus d'infos