Fnaim.fr
Menu

Acheter

Exclusivité
Réf. AQ-ARE-23001

Achat Appartement 3 pièces 56m²

220 000 Honoraires charge vendeur

2 chambres Balcon Parking / Garage

Description du bien


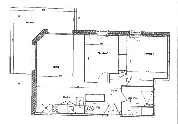
Bel appartement de type 3, situé au 2eme et dernier étage d'une résidence récente de 2019, en lisière de forêt à Audenge.

Lumineux et fonctionnel, il se compose d'une entrée avec rangement, d'un agréable séjour ouvert sur un balcon filant avec cuisine ouverte d'une cuisine moderne et entièrement aménagée, de deux chambres avec placards, d'une salle d'eau contemporaine et de WC séparés.

Une place de stationnement extérieure ainsi qu'un local vélo complètent ce bien. Idéalement situé dans un environnement calme et verdoyant, à proximité des commodités et des accès vers le Bassin, cet appartement allie confort, modernité et qualité de vie.

Parfait pour un premier achat, un investissement ou un pied-à-terre.

Etat des risques et pollutions

Les informations sur les risques auxquels ce bien est exposé sont disponibles sur le site Géorisques : www.georisques.gouv.fr.

Caractéristiques du bien

Composition du bien

  • Type d'habitation : Appartement
  • Nombre de pièce(s) : 3
  • Nombre de chambre(s) : 2

Aménagement du bien

Extérieur

  • Terrasse : Non
  • Balcon : Oui

Partie Commune

  • Ascenseur : Non
  • Surface habitable : 56 m²
  • Parking : Oui

Informations sur la copropriété

  • Bien soumis au statut de la copropriété
  • Nombre de lots : 285
  • Quote part charges courantes : 204 €/an
  • Procédure en cours : Non

Localisation du bien

Ce bien n'est pas géolocalisé, pour connaitre sa géolocalisation, merci de contacter l'agence.

Consommation énergétique

  • C (74 kWh/m² an)
    C (13 kgCO2/m².an)
    Plus d'info
    74
    13
    13
  • DPE réalisé après le 1er juillet 2021.
  • Entre 450 € TTC / an et 650 € TTC / an
    Non communiqué

Nos professionnels vous accompagnent

Contactez notre agence !

21 avenue des Libellules 33510 ANDERNOS LES BAINS

Appeler l’agence Tél : 0650396944

* Champs obligatoires

Nous vous informons de l’existence de la liste d’opposition au démarchage téléphonique « BLOCTEL » sur laquelle vous pouvez vous inscrire (https://www.bloctel.gouv.fr).

En complétant le formulaire «CONTACTEZ NOTRE AGENCE », je reconnais expressément que je consens au traitement de mes données personnelles et que je dispose du droit de retirer mon consentement à tout moment en m'adressant à support@fnaim.fr.
En savoir plus sur la gestion de vos données et droits : consulter nos mentions légales, « article 5/ Données à caractère personnel ».

En envoyant ce message, vous acceptez les conditions d'utilisation du site. Plus d'infos