Fnaim.fr
Menu

Acheter

Réf. 86467623

Achat Appartement 1 pièce 28m² LYON 3ème

169 000 Honoraires charge vendeur

Ascenseur

Description du bien

LES CLÉS D’ALEXIA vous propose ce beau studio de 28 m², situé au 4e étage d’un immeuble récent (2008) et sécurisé avec ascenseur, au 162 Route de Genas à Lyon 3e

Idéalement situé
• Tramway T6 au pied de l’immeuble
• Métro D (station Grange Blanche) à une dizaine de minutes, reliant rapidement le centre-ville et les universités
• Nombreux commerces, supermarchés, écoles et services à proximité immédiate

Un espace de vie agréable
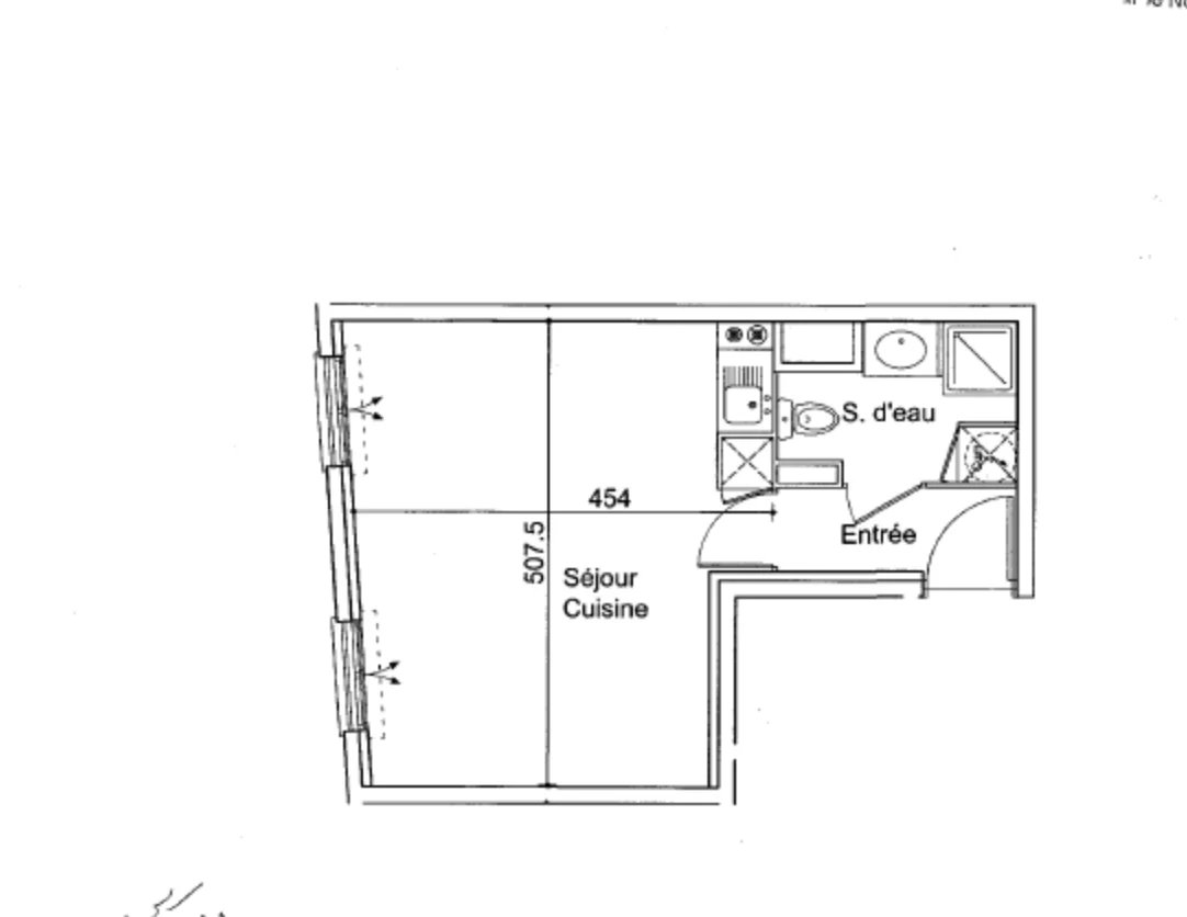
• Une entrée vous conduit vers une pièce principale de près de 20 m², lumineuse grâce à ses deux grandes fenêtres
• Sa surface permet d’aménager un coin séjour avec cuisine, un espace nuit distinct et un bureau
• Une salle de bain moderne complète l’ensemble

Atout complémentaire
Ce studio combine fonctionnalité et emplacement stratégique dans un secteur recherché de Lyon 3?, idéal pour un premier achat ou un investissement locatif.

Garage box privatif et cave inclus

DPE : C – permet une bonne maîtrise des coûts énergétiques

Un bail est en cours, avec échéance prévue le 13 octobre 2026.

Pour toute information ou programmer une visite :
Contactez Jérémy Chaize – 06 18 50 02 81
RSAC Lyon N° 918 262 908

Etat des risques et pollutions

Les informations sur les risques auxquels ce bien est exposé sont disponibles sur le site Géorisques : www.georisques.gouv.fr.

Caractéristiques du bien

Composition du bien

  • Type d'habitation : Appartement
  • Nombre de pièce(s) : 1

Aménagement du bien

Extérieur

  • Terrasse : Non
  • Balcon : Non

Partie Commune

  • Ascenseur : Oui
  • Surface habitable : 28 m²

Localisation du bien

LYON 03 (69003) , RHONE (69) - AUVERGNE-RHÔNE-ALPES

Ce bien n'est pas géolocalisé, pour connaitre sa géolocalisation, merci de contacter l'agence.

Consommation énergétique

  • C (194 kWh/m² an)
    A (5 kgCO2/m².an)
    Plus d'info
    194
    5
    5
  • DPE réalisé après le 1er juillet 2021.
  • Entre 400 € TTC / an et 560 € TTC / an
    01/01/2021

Nos professionnels vous accompagnent

Contactez notre agence !

48 Avenue du Maréchal de Saxe 69006 LYON 06

Appeler l’agence Tél : +33 (0)7 67 40 81 30

* Champs obligatoires

Nous vous informons de l’existence de la liste d’opposition au démarchage téléphonique « BLOCTEL » sur laquelle vous pouvez vous inscrire (https://www.bloctel.gouv.fr).

En complétant le formulaire «CONTACTEZ NOTRE AGENCE », je reconnais expressément que je consens au traitement de mes données personnelles et que je dispose du droit de retirer mon consentement à tout moment en m'adressant à support@fnaim.fr.
En savoir plus sur la gestion de vos données et droits : consulter nos mentions légales, « article 5/ Données à caractère personnel ».

En envoyant ce message, vous acceptez les conditions d'utilisation du site. Plus d'infos