Fnaim.fr
Menu

Acheter

Achat Appartement 2 pièces 42m²

129 000 Honoraires charge vendeur

1 chambre Ascenseur

Description du bien

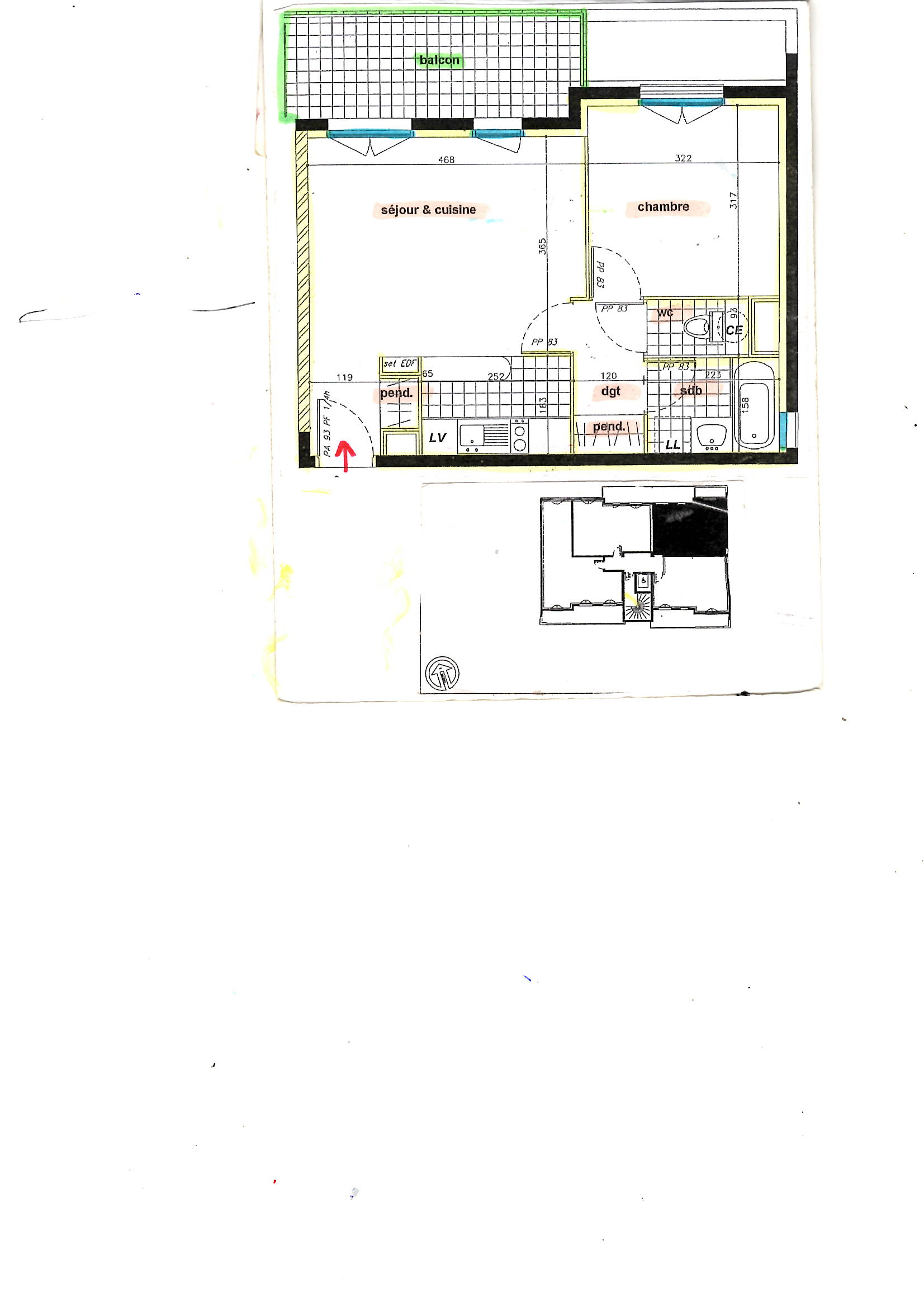
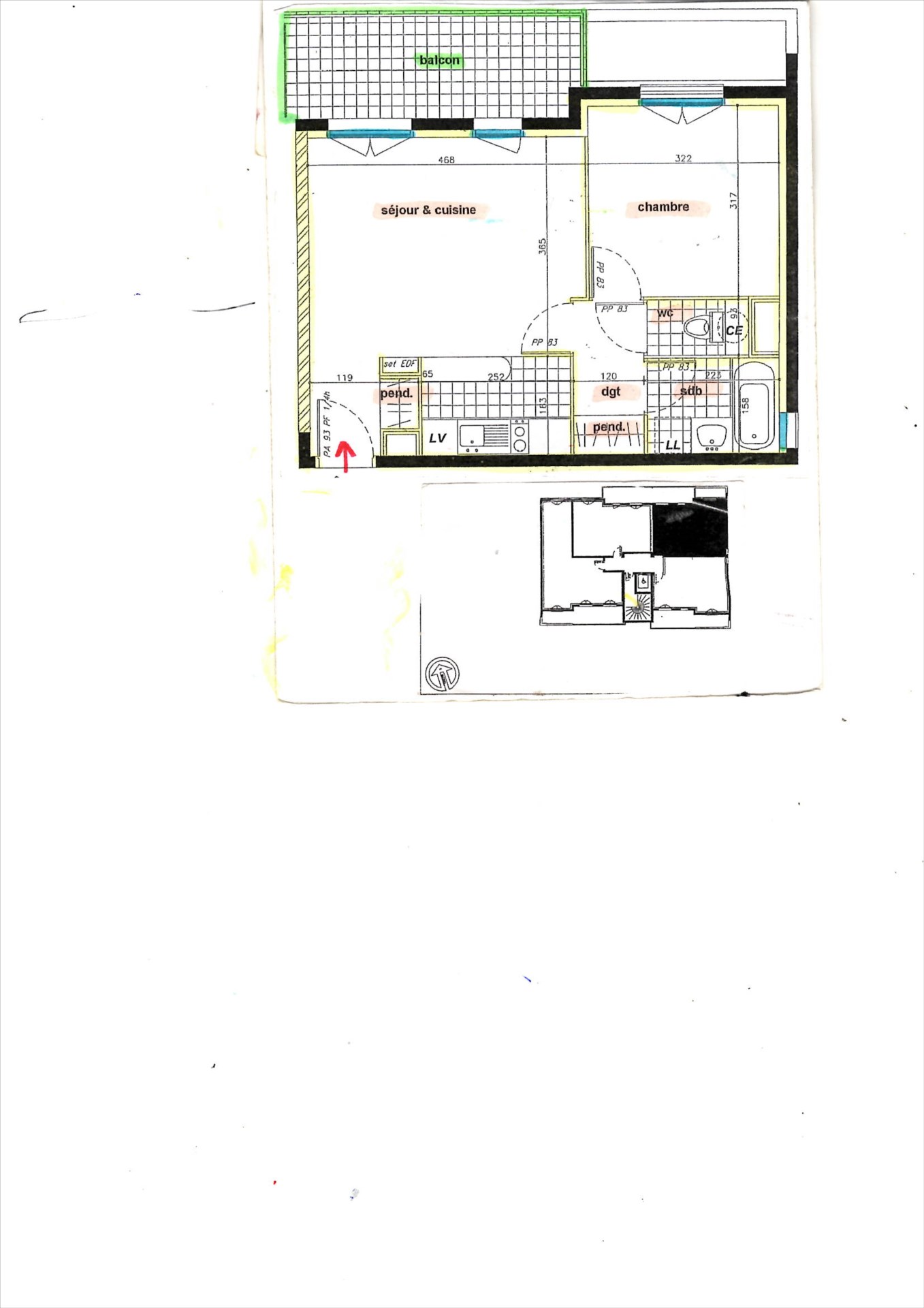
T2 idéal pour un premier achat, ou pour un premier investissement locatif, situé 36 rue des Chanelles dans une résidence construite par l'immobilière COULON, en 2009.
Ce bien se trouve au 3ème étage, il est composé d'une entrée avec penderie, d'une pièce de vie avec cuisine ouverte, sur terrasse, une chambre, salle de bains et wc séparés. L'appartement donne sur la cours intérieure, au calme, et possède un garage individuel au rez-de-chaussée de la résidence.
La diagnostic réalisé en novembre 2025 classe ce bien en lettre D.
Le chauffage est éléctrique et individuel.
Les charges de copropriété s'élèvent à 1155 euros /AN.
N'hésitez pas à nous contacter, Séverine SAMMARTINO au 06 82 30 53 29 ou bien Philippe JOURDE au 06 82 07 47 76.

Etat des risques et pollutions

Les informations sur les risques auxquels ce bien est exposé sont disponibles sur le site Géorisques : www.georisques.gouv.fr.

Caractéristiques du bien

Composition du bien

  • Type d'habitation : Appartement
  • Nombre de pièce(s) : 2
  • Nombre de chambre(s) : 1

Aménagement du bien

Extérieur

  • Terrasse : Non
  • Balcon : Non

Partie Commune

  • Ascenseur : Oui
  • Surface habitable : 42 m²

Localisation du bien

Ce bien n'est pas géolocalisé, pour connaitre sa géolocalisation, merci de contacter l'agence.

Consommation énergétique

  • D (206 kWh/m² an)
    B (6 kgCO2/m².an)
    Plus d'info
    206
    6
    6
  • DPE réalisé après le 1er juillet 2021.
  • Entre 750 € TTC / an et 1070 € TTC / an
    Non communiqué

Nos professionnels vous accompagnent

Contactez notre agence !

34 AVENUE JULIEN 63000 CLERMONT FERRAND

Appeler l’agence Tél : 0473294040

* Champs obligatoires

Nous vous informons de l’existence de la liste d’opposition au démarchage téléphonique « BLOCTEL » sur laquelle vous pouvez vous inscrire (https://www.bloctel.gouv.fr).

En complétant le formulaire «CONTACTEZ NOTRE AGENCE », je reconnais expressément que je consens au traitement de mes données personnelles et que je dispose du droit de retirer mon consentement à tout moment en m'adressant à support@fnaim.fr.
En savoir plus sur la gestion de vos données et droits : consulter nos mentions légales, « article 5/ Données à caractère personnel ».

En envoyant ce message, vous acceptez les conditions d'utilisation du site. Plus d'infos