Fnaim.fr
Menu

Achat Appartement 2 pièces 37m² NICE 06100

192 000 Honoraires charge vendeur

1 chambre Balcon Ascenseur

Description du bien

Nice Nord, Cessole Horloge, proche école St-Barthélemy et tramway Gorbella.
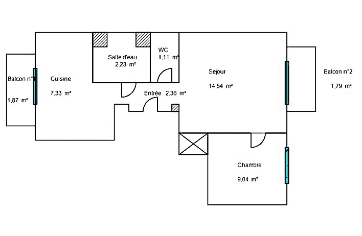
2P bon état 36.44 carrez + 2 balcons, au 3e étage avec ascenseur d'un immeuble bien entretenu. Traversant Nord/Sud.
Se compose d'une entrée, d'un séjour expo: SUD, sur balcon, une chambre, une cuisine semi-indépendante avec balcon au calme.
1 salle de douche moderne, et 1 toilette séparé. 1 cave en sous-sol.
Tous les sols sont carrelés, peintures refaites, chauffe-eau neuf.
Chauffage collectif + eau chaude ind. Charges: 162EUR/mois - TF: 940EUR
Honoraires à charge vendeurs.
Les informations sur les risques auxquels ce bien est exposé sont disponibles sur le site Géorisques du gouvernement.
Lien vidéo:
https://youtu.be/mJzF5tDF0XU

Etat des risques et pollutions

Les informations sur les risques auxquels ce bien est exposé sont disponibles sur le site Géorisques : www.georisques.gouv.fr.

Caractéristiques du bien

Composition du bien

  • Type d'habitation : Appartement
  • Nombre de pièce(s) : 2
  • Nombre de chambre(s) : 1

Aménagement du bien

Extérieur

  • Terrasse : Non
  • Balcon : Oui

Partie Commune

  • Ascenseur : Oui
  • Surface habitable : 37 m²

Localisation du bien

NICE (06100) , ALPES-MARITIMES (06) - PROVENCE-ALPES-COTE-D-AZUR

Ce bien n'est pas géolocalisé, pour connaitre sa géolocalisation, merci de contacter l'agence.

Consommation énergétique

  • D (191 kWh/m² an)
    C (25 kgCO2/m².an)
    Plus d'info
    191
    25
    25
  • DPE réalisé après le 1er juillet 2021.
  • Entre 671 € TTC / an et 907 € TTC / an
    01/01/2023

Nos professionnels vous accompagnent

Contactez notre agence !

136 BD GAMBETTA 06000 NICE

Appeler l’agence Tél : 04 93 88 38 88

* Champs obligatoires

Nous vous informons de l’existence de la liste d’opposition au démarchage téléphonique « BLOCTEL » sur laquelle vous pouvez vous inscrire (https://www.bloctel.gouv.fr).

En complétant le formulaire «CONTACTEZ NOTRE AGENCE », je reconnais expressément que je consens au traitement de mes données personnelles et que je dispose du droit de retirer mon consentement à tout moment en m'adressant à support@fnaim.fr.
En savoir plus sur la gestion de vos données et droits : consulter nos mentions légales, « article 5/ Données à caractère personnel ».

En envoyant ce message, vous acceptez les conditions d'utilisation du site. Plus d'infos