Fnaim.fr
Menu

Visite virtuelle
Exclusivité
Réf. DOM25765

Achat Appartement 5 pièces 72m² TOULON 83000

314 000 Honoraires charge vendeur

4 chambres

Description du bien

Liberkeys vous propose, en exclusivité à Toulon, un appartement lumineux de 72 m² (loi Carrez), en parfait état, vendu meublé, idéalement pensé pour une famille recherchant confort et accessibilité au coeur d'un quartier dynamique. Situé à proximité immédiate du centre-ville, vous bénéficiez d'un accès privilégié aux écoles, commerces et transports en commun : la station de bus « Victor Hugo » se trouve à moins de 200 mètres, facilitant vos déplacements quotidiens.

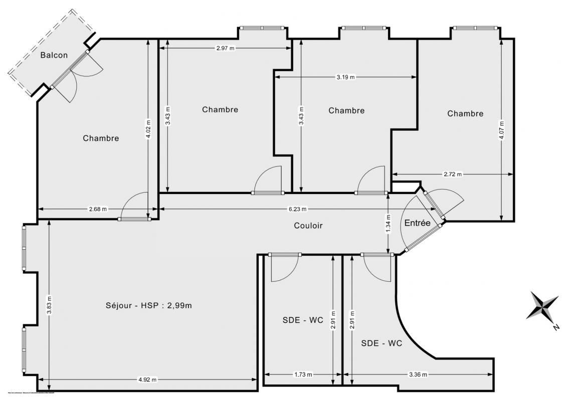
L'appartement se compose d'une entrée accueillante de 5 m² desservant un séjour de 20 m² baigné de lumière naturelle, parfait pour vos moments de convivialité. L'agréable cuisine américaine de 4 m² permet de partager les repas en famille. Côté nuit, quatre chambres (9,55 9,25 9,45 et 9 m²) constituent un espace idéal pour accueillir enfants, bureau ou invité, ainsi que deux salles de bains fonctionnelles de 5 m² chacune, offrant confort et praticité. L'agencement optimise chaque mètre carré, garantissant une belle distribution des espaces.

L'environnement paisible, avec plusieurs espaces verts à proximité et un accès rapide au centre-ville, séduit particulièrement les familles souhaitant allier qualité de vie et commodités. Charges de copropriété maîtrisées à 92 € par mois et taxe foncière de 1200 € offrent un investissement serein, dans un secteur où la dynamique locative reste forte.

Montant estimé des dépenses annuelles d'énergie pour un usage standard : entre 930 € et 1258 € par an. Prix moyens des énergies indexés sur l'année 2024 (abonnements compris).

Ce bien vous plaît ? Visitez-le virtuellement en 3D sur le site de Liberkeys ou contactez directement votre conseiller. Noel Benoit, agent commercial immatriculé au RSAC de sous le numéro 989 901 699. Référence annonce : DOM25765. Date de réalisation du diagnostic : 07/11/2025. Les honoraires sont à la charge du vendeur.

Etat des risques et pollutions

Les informations sur les risques auxquels ce bien est exposé sont disponibles sur le site Géorisques : www.georisques.gouv.fr.

Caractéristiques du bien

Composition du bien

  • Type d'habitation : Appartement
  • Cuisine : 19
  • Nombre de pièce(s) : 5
  • Nombre de chambre(s) : 4
  • Salles de bain : 2

Aménagement du bien

Extérieur

  • Terrasse : Non
  • Balcon : Non

Partie Commune

  • Ascenseur : Non
  • Surface habitable : 72 m²

Localisation du bien

TOULON (83000) , VAR (83) - PROVENCE-ALPES-COTE-D-AZUR

Consommation énergétique

  • C (157 kWh/m² an)
    A (5 kgCO2/m².an)
    Plus d'info
    157
    5
    5
  • DPE réalisé après le 1er juillet 2021.
  • Entre 930 € TTC / an et 1258 € TTC / an
    Non communiqué

Nos professionnels vous accompagnent

Contactez notre agence !

20 RUE DE MONTHOLON 75009 PARIS 09

Appeler l’agence Tél : 06 24 65 02 00

* Champs obligatoires

Nous vous informons de l’existence de la liste d’opposition au démarchage téléphonique « BLOCTEL » sur laquelle vous pouvez vous inscrire (https://www.bloctel.gouv.fr).

En complétant le formulaire «CONTACTEZ NOTRE AGENCE », je reconnais expressément que je consens au traitement de mes données personnelles et que je dispose du droit de retirer mon consentement à tout moment en m'adressant à support@fnaim.fr.
En savoir plus sur la gestion de vos données et droits : consulter nos mentions légales, « article 5/ Données à caractère personnel ».

En envoyant ce message, vous acceptez les conditions d'utilisation du site. Plus d'infos