Fnaim.fr
Menu

Acheter

Achat Appartement 1 pièce 31m² LYON 3ème

160 000 Honoraires charge vendeur

Ascenseur Parking / Garage

Description du bien


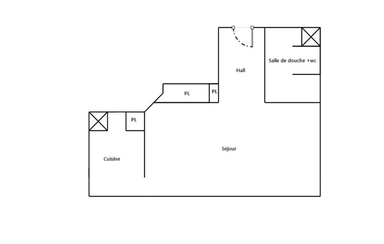
Ginet Immobilier vous propose ce joli studio de 31,78 m², situé rue Maurice Flandin dans le 3ème arrondissement de Lyon, à seulement 10 minutes à pied de la gare Part Dieu et du centre commercial.

Niché au 5? étage avec ascenseur d'une résidence bien entretenue construite en 2001, ce studio saura vous séduire par sa belle pièce à vivre de 18,58 m², exposée plein Est, offrant une luminosité agréable tout au long de la matinée.

La cuisine de 6,13 m², actuellement séparée de la pièce principale par une simple cloison, offre la possibilité de conserver une véritable cuisine indépendante ou de l'ouvrir afin de prolonger l'espace de vie selon vos envies.

Situé dans un quartier recherché, ce bien est idéal pour un premier achat ou pour un investissement locatif.

Un box fermé est disponible en sus pour 25 000 Euro.

Pour organiser une visite, contactez François Joseph au 06 16 03 33 14.

Francois Joseph (EI) Agent Commercial - Numéro RSAC : 832623649 - LYON.

Etat des risques et pollutions

Les informations sur les risques auxquels ce bien est exposé sont disponibles sur le site Géorisques : www.georisques.gouv.fr.

Caractéristiques du bien

Composition du bien

  • Type d'habitation : Appartement
  • Nombre de pièce(s) : 1

Aménagement du bien

Extérieur

  • Terrasse : Non
  • Balcon : Non

Partie Commune

  • Ascenseur : Oui
  • Surface habitable : 31 m²
  • Parking : Oui

Informations sur la copropriété

  • Bien soumis au statut de la copropriété
  • Nombre de lots : 77
  • Quote part charges courantes : 560 €/an
  • Procédure en cours : Non

Localisation du bien

LYON 03 (69003) , RHONE (69) - AUVERGNE-RHÔNE-ALPES

Ce bien n'est pas géolocalisé, pour connaitre sa géolocalisation, merci de contacter l'agence.

Consommation énergétique

  • D (207 kWh/m² an)
    A (6 kgCO2/m².an)
    Plus d'info
    207
    6
    6
  • DPE réalisé après le 1er juillet 2021.
  • Entre 570 € TTC / an et 830 € TTC / an
    Non communiqué

Nos professionnels vous accompagnent

Contactez notre agence !

16 RUE BRISON 42300 ROANNE

Appeler l’agence Tél : 0616033314

* Champs obligatoires

Nous vous informons de l’existence de la liste d’opposition au démarchage téléphonique « BLOCTEL » sur laquelle vous pouvez vous inscrire (https://www.bloctel.gouv.fr).

En complétant le formulaire «CONTACTEZ NOTRE AGENCE », je reconnais expressément que je consens au traitement de mes données personnelles et que je dispose du droit de retirer mon consentement à tout moment en m'adressant à support@fnaim.fr.
En savoir plus sur la gestion de vos données et droits : consulter nos mentions légales, « article 5/ Données à caractère personnel ».

En envoyant ce message, vous acceptez les conditions d'utilisation du site. Plus d'infos