Fnaim.fr
Menu

Acheter

Visite virtuelle
Réf. DOM25403

Achat Appartement 3 pièces 71m² LAMBERSART 59130

249 000 Honoraires charge vendeur

2 chambres Ascenseur Parking / Garage

Description du bien

Liberkeys vous propose cet appartement de 71 m² au rez de chaussée d'une copropriété de 1990 parfaitement entretenue et sécurisée " Les terrasses de la Carnoy " située dans un secteur prisé de Lambersart, à quelques minutes de marche du métro " Pont supérieur " et quelques minutes à vélo de la citadelle.

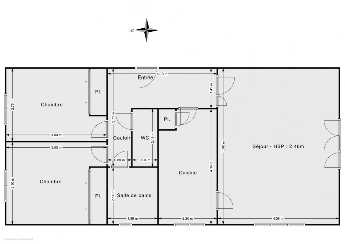
Comme vous le voyez en cliquant sur la visite virtuelle, l'appartement présente des volumes confortables et une distribution idéale. L'entrée vous conduit vers une pièce de vie de 27 m² qui bénéficie d'une belle luminosité grâce à sa double exposition, avec un accès à sa terrasse privative. La cuisine entièrement équipée est de taille idéale et ouvrable facilement sur la pièce de vie (verrière, ilot, passe plat, tout est possible)

L'espace nuit comprend deux chambres de 10 et 12 m² avec dressing. Une salle de bains avec baignoire, et un WC avec lave main, complètent l'ensemble.

Pour finir, un sellier de 2 m² mitoyen à l'appartement parfait pour y stocker des affaires, et surtout, un garage fermé et sécurisé au sous sol de la copropriété, ainsi qu'une place de parking supplémentaire en extérieur.

Cet appartement se situe dans un environnement calme, verdoyant, et résidentiel, en étant proche des commodités (transport en commun, supermarché à 6 minutes de marche etc...)

Charges de copropriété : 125 € / mois
Taxe foncière : 1395  €

Ce bien vous plaît ? contactez moi directement. Lo Certo Sébastien, agent commercial immatriculé au RSAC de Lille sous le numéro 837791896. DOM25403. Date de réalisation du diagnostic : 24/10/2025. Les honoraires sont à la charge du vendeur.

Etat des risques et pollutions

Les informations sur les risques auxquels ce bien est exposé sont disponibles sur le site Géorisques : www.georisques.gouv.fr.

Caractéristiques du bien

Composition du bien

  • Type d'habitation : Appartement
  • Cuisine : 19
  • Nombre de pièce(s) : 3
  • Nombre de chambre(s) : 2
  • Salles de bain : 1

Aménagement du bien

Extérieur

  • Terrasse : Non
  • Balcon : Non

Partie Commune

  • Ascenseur : Oui
  • Surface habitable : 71 m²
  • Parking : Oui

Informations sur la copropriété

  • Bien soumis au statut de la copropriété
  • Nombre de lots : 72
  • Quote part charges courantes : 1508 €/an
  • Procédure en cours : Non

Localisation du bien

LAMBERSART (59130) , NORD (59) - HAUTS-DE-FRANCE

Ce bien n'est pas géolocalisé, pour connaitre sa géolocalisation, merci de contacter l'agence.

Consommation énergétique

  • D (249 kWh/m² an)
    B (8 kgCO2/m².an)
    Plus d'info
    249
    8
    8
  • DPE réalisé après le 1er juillet 2021.
  • Entre 1370 € TTC / an et 1910 € TTC / an
    Non communiqué

Nos professionnels vous accompagnent

Contactez notre agence !

20 RUE DE MONTHOLON 75009 PARIS 09

Appeler l’agence Tél : 06 75 62 08 80

* Champs obligatoires

Nous vous informons de l’existence de la liste d’opposition au démarchage téléphonique « BLOCTEL » sur laquelle vous pouvez vous inscrire (https://www.bloctel.gouv.fr).

En complétant le formulaire «CONTACTEZ NOTRE AGENCE », je reconnais expressément que je consens au traitement de mes données personnelles et que je dispose du droit de retirer mon consentement à tout moment en m'adressant à support@fnaim.fr.
En savoir plus sur la gestion de vos données et droits : consulter nos mentions légales, « article 5/ Données à caractère personnel ».

En envoyant ce message, vous acceptez les conditions d'utilisation du site. Plus d'infos