Fnaim.fr
Menu

Acheter

Réf. getkey_u_497278313

Achat Appartement 3 pièces 62m² ROGNES 13840

327 400 Honoraires charge vendeur

2 chambres Ascenseur

Description du bien

Bienvenue chez une agence familiale qui s'engage à un service immobilier d'exception. Faites confiance à notre expertise pour transformer vos projets immobiliers en réussites remarquables.

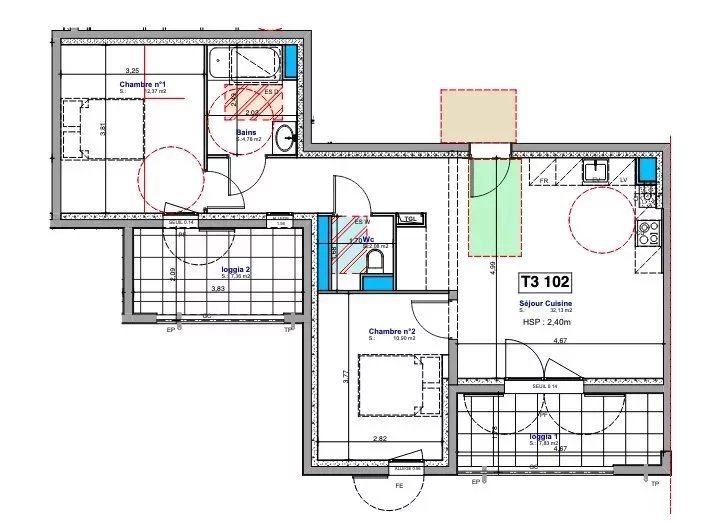
Dans le charmant village de Rognes, au coeur de la nouvelle place du village, découvrez cet appartement de type T3, exposé Sud, situé au 1er étage d'une résidence de standing avec stationnement.

Caractéristiques de l'appartement :
Surface : 62,26 m²

Deux loggias : 7,83 m² et 7,35 m²

Box fermé au sous-sol avec ascenseur

Disposition de l'appartement :
Séjour lumineux avec cuisine ouverte de 32,13 m², donnant sur la première loggia de 7,83 m²

Première chambre de 12,37 m², donnant sur la seconde loggia de 7,35 m²

Seconde chambre de 10,90 m²

Salle de bains de 4,78 m²

WC séparés de 2,08 m²

Atouts du bien :
Idéal pour une résidence principale ou un investissement locatif

Eligible au nouveau PTZ à compter du 1er avril 2025

Prix de vente : 327 400 € TTC (Honoraires à la charge du vendeur)

D'autres lots sont disponibles : T3 et T2 de 35 m² à 65 m². Envie d'en savoir plus ?

Contactez-nous !

Les informations sur les risques auxquels ce bien est exposé sont disponibles sur le site Géorisques : http://www.georisques.gouv.fr

Bien présenté par Agences de France par délégation.
Agences de France - SIREN : 899413603 - Titulaire de la carte T : 29012021000000009 non habilité à percevoir des fonds

Etat des risques et pollutions

Les informations sur les risques auxquels ce bien est exposé sont disponibles sur le site Géorisques : www.georisques.gouv.fr.

Caractéristiques du bien

Composition du bien

  • Type d'habitation : Appartement
  • Cuisine : 337
  • Nombre de pièce(s) : 3
  • Nombre de chambre(s) : 2
  • Salles de bain : 1

Aménagement du bien

Extérieur

  • Terrasse : Non
  • Balcon : Non

Partie Commune

  • Ascenseur : Oui
  • Surface habitable : 62 m²

Localisation du bien

ROGNES (13840) , BOUCHES-DU-RHONE (13) - PROVENCE-ALPES-COTE-D-AZUR

Ce bien n'est pas géolocalisé, pour connaitre sa géolocalisation, merci de contacter l'agence.

Consommation énergétique

DPE non soumis
mention indiquée sous la responsabilité de l’agence immobilière

Nos professionnels vous accompagnent

Contactez notre agence !

38 rue Jim Sevellec 29200 BREST

Appeler l’agence Tél : 06 29 46 70 54

* Champs obligatoires

Nous vous informons de l’existence de la liste d’opposition au démarchage téléphonique « BLOCTEL » sur laquelle vous pouvez vous inscrire (https://www.bloctel.gouv.fr).

En complétant le formulaire «CONTACTEZ NOTRE AGENCE », je reconnais expressément que je consens au traitement de mes données personnelles et que je dispose du droit de retirer mon consentement à tout moment en m'adressant à support@fnaim.fr.
En savoir plus sur la gestion de vos données et droits : consulter nos mentions légales, « article 5/ Données à caractère personnel ».

En envoyant ce message, vous acceptez les conditions d'utilisation du site. Plus d'infos