Fnaim.fr
Menu

Acheter

Réf. VA5905-BIENALAMER

Achat Appartement 4 pièces 94m² DONVILLE LES BAINS 50350

385 000 Honoraires charge vendeur

3 chambres Ascenseur Parking / Garage

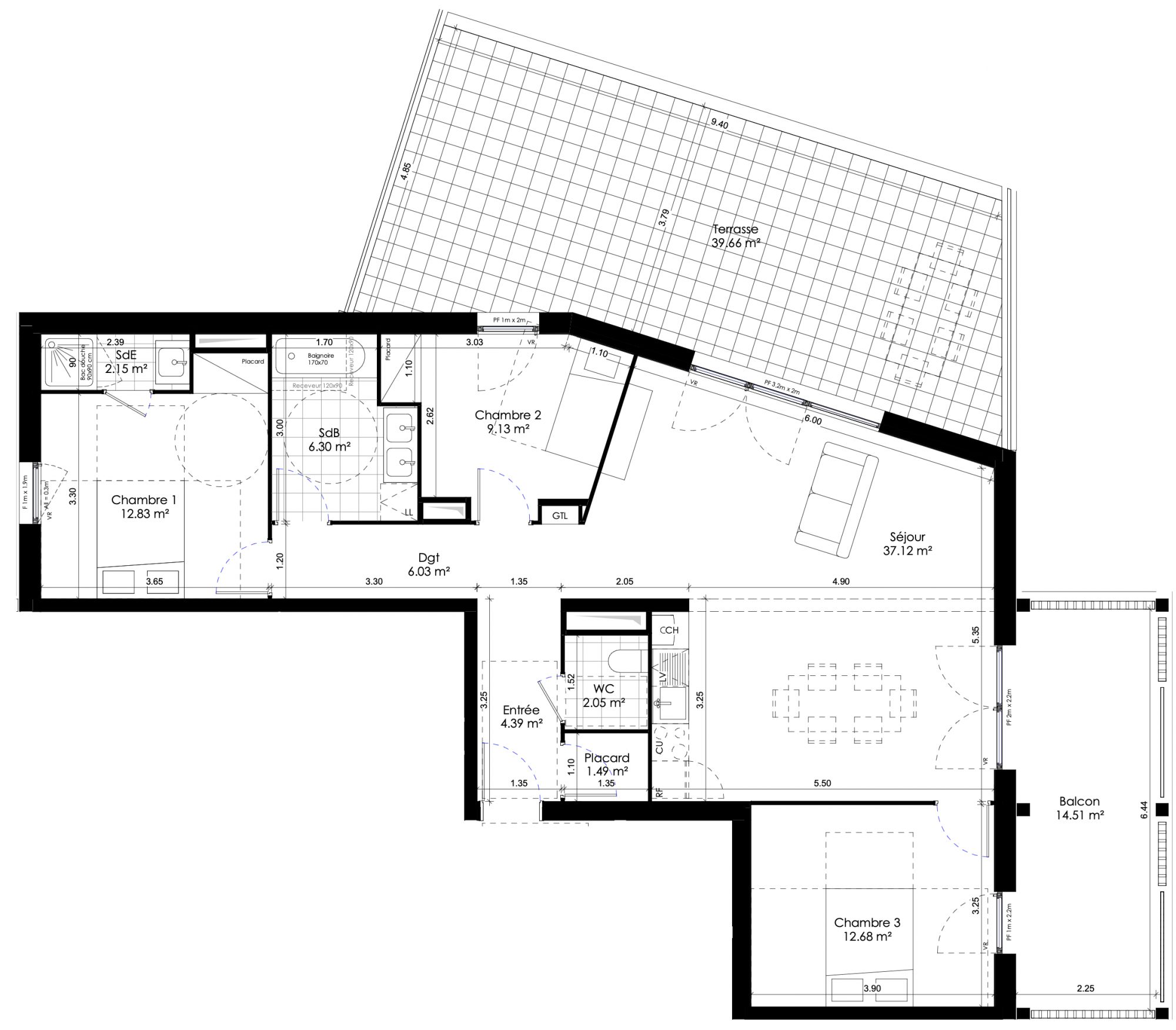
Description du bien

400m de la mer !
Projet de construction pour 4è trimestre 2027.
Ascenseur, parquet stratifié, chauffage électrique, domotique.
Frais de notaire réduits.

Superbe T4 au dernier étage avec double terrasses pour 54m2 comprenant :
- Séjour 39,26m2 donnant sur les deux terrasses
- trois chambres dont une suite parentale avec salle d'eau attenante,
- salle de bains,
- wc séparés, placards,
- deux parking inclus.

Nous Consulter.

Honoraires à la charge du vendeur. Non soumis au DPE. Les informations sur les risques auxquels ce bien est exposé sont disponibles sur le site Géorisques : georisques.gouv.fr.

Votre conseiller MON BIEN A LA MER : Gérant - .fr MON BIEN A LA MER
Carte T CPI 2201 2018 000 025 040
RCP ACM IARD B1 7025278

Etat des risques et pollutions

Les informations sur les risques auxquels ce bien est exposé sont disponibles sur le site Géorisques : www.georisques.gouv.fr.

Caractéristiques du bien

Composition du bien

  • Type d'habitation : Appartement
  • Nombre de pièce(s) : 4
  • Nombre de chambre(s) : 3
  • Salles de bain : 1

Aménagement du bien

Extérieur

  • Terrasse : Non
  • Balcon : Non

Partie Commune

  • Ascenseur : Oui
  • Surface habitable : 94 m²
  • Parking : Oui

Localisation du bien

DONVILLE LES BAINS (50350) , MANCHE (50) - NORMANDIE

Ce bien n'est pas géolocalisé, pour connaitre sa géolocalisation, merci de contacter l'agence.

Consommation énergétique

DPE non soumis
mention indiquée sous la responsabilité de l’agence immobilière

Nos professionnels vous accompagnent

Contactez notre agence !

23 Rue des Villeneuves Le Bignon 22400 MORIEUX

Appeler l’agence Tél : 0787285150

* Champs obligatoires

Nous vous informons de l’existence de la liste d’opposition au démarchage téléphonique « BLOCTEL » sur laquelle vous pouvez vous inscrire (https://www.bloctel.gouv.fr).

En complétant le formulaire «CONTACTEZ NOTRE AGENCE », je reconnais expressément que je consens au traitement de mes données personnelles et que je dispose du droit de retirer mon consentement à tout moment en m'adressant à support@fnaim.fr.
En savoir plus sur la gestion de vos données et droits : consulter nos mentions légales, « article 5/ Données à caractère personnel ».

En envoyant ce message, vous acceptez les conditions d'utilisation du site. Plus d'infos