Fnaim.fr
Menu

Acheter

Visite virtuelle
Exclusivité
Réf. 3727FOI

Achat Maison 3 pièces 82m² JONZIEUX 42660

198 000 Honoraires charge vendeur

2 chambres Jardin

Description du bien

JONZIEUX 42660 Maison plain-pied exposée Sud édifiée sur vide sanitaire 82m² habitables 2 chambres sur 1295m² de terrain prix de vente 198 000 euros présentée EN EXCLUSIVITE par Nicolas FOURNEL (o6782o7136)
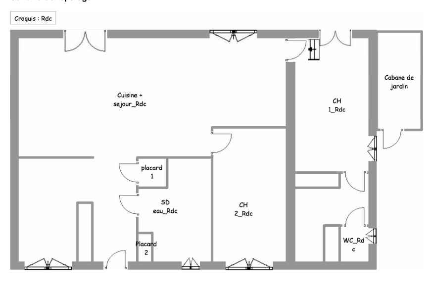
La bâtisse proche du centre du village comprend un hall d'entrée avec vestiaire, cuisine ouverte sur salon-salle-à-manger donnant accès direct à l'extérieur par une porte-fenêtre, deux chambres dont une chambre avec dressing et WC. Une salle d'eau et un WC séparé complètent le bien.
Les combles sont en partie aménageables
Pas de garage.
Chauffage poêle à bois dans la pièce de vie et convecteurs dans chaque pièce
Raccordée au réseau de tout-à-l'égout
Ses atouts : située dans un secteur paisible tout en étant proche des commodités. Agréable terrain plat bien exposé offrant une belle vue dégagée.
DPE : 428 kMh/m2/an : F GES : 13 : C
Montant estimé des dépenses annuelles d'énergie établi à partir des prix de l'énergie au 1er janvier 2021 : entre 2060 et 2840 euros/an
Veuillez noter que toutes les mesures sont approximatives, les informations sont fournies à titre indicatif seulement.
Veuillez noter que toutes les mesures sont approximatives, les informations sont fournies à titre indicatif seulement.
Pour visiter et vous accompagner dans votre projet contactez Nicolas FOURNEL 06 78 20 71 36 ou par courriel à n.fournel@proprietes-privees.com agissant sous le statut de d'agent commercial indépendant inscrit au RSAC 878 773 209 Mandat 3727FOI Le professionnel garantit et sécurise votre projet immobilier.
SAS Agence immobilière de Saint Genest Malifaux (O4 77 51 7O 6O) concession PROPRIETES PRIVEES 4 rue du Velay 42660 St Genest Malifaux Carte professionnelle CPI 4202 2016 000 010 412 CCI Lyon Métropole St Etienne Roanne RCS 450 309 422

Nicolas FOURNEL (EI) Agent Commercial - Numéro RSAC : 878773309 - .
Les informations sur les risques auxquels ce bien est exposé sont disponibles sur le site Géorisques : www. georisques. gouv. fr

Etat des risques et pollutions

Les informations sur les risques auxquels ce bien est exposé sont disponibles sur le site Géorisques : www.georisques.gouv.fr.

Caractéristiques du bien

Composition du bien

  • Type d'habitation : Maison
  • Nombre de chambres : 2
  • Nombre de salles de bain : 1
  • Cuisine : 337

Aménagement du bien

  • Cave : Non
  • Garage / Parking : Non
    • Surface habitable : 82 m²

    Localisation du bien

    JONZIEUX (42660) , LOIRE (42) - AUVERGNE-RHÔNE-ALPES

    Consommation énergétique

    • F (428 kWh/m² an)
      C (13 kgCO2/m².an)
      Plus d'info
      428
      13
      13
    • DPE réalisé après le 1er juillet 2021.
    • Entre 2060 € TTC / an et 2840 € TTC / an
      Non communiqué
    • Logement à consommation énergétique excessive : classe F

    Nos professionnels vous accompagnent

    Contactez notre agence !

    44 Allée des Cinq Continents ZAC Le Chêne Ferré 44120 VERTOU

    Appeler l’agence Tél : 06 78 20 71 36

    * Champs obligatoires

    Nous vous informons de l’existence de la liste d’opposition au démarchage téléphonique « BLOCTEL » sur laquelle vous pouvez vous inscrire (https://www.bloctel.gouv.fr).

    En complétant le formulaire «CONTACTEZ NOTRE AGENCE », je reconnais expressément que je consens au traitement de mes données personnelles et que je dispose du droit de retirer mon consentement à tout moment en m'adressant à support@fnaim.fr.
    En savoir plus sur la gestion de vos données et droits : consulter nos mentions légales, « article 5/ Données à caractère personnel ».

    En envoyant ce message, vous acceptez les conditions d'utilisation du site. Plus d'infos