Fnaim.fr
Menu

Achat Appartement 5 pièces 126m²

998 000 Honoraires charge acquéreur inclus : 3.5% TTC (962771 € hors honoraires)

4 chambres Ascenseur Parking / Garage

Description du bien


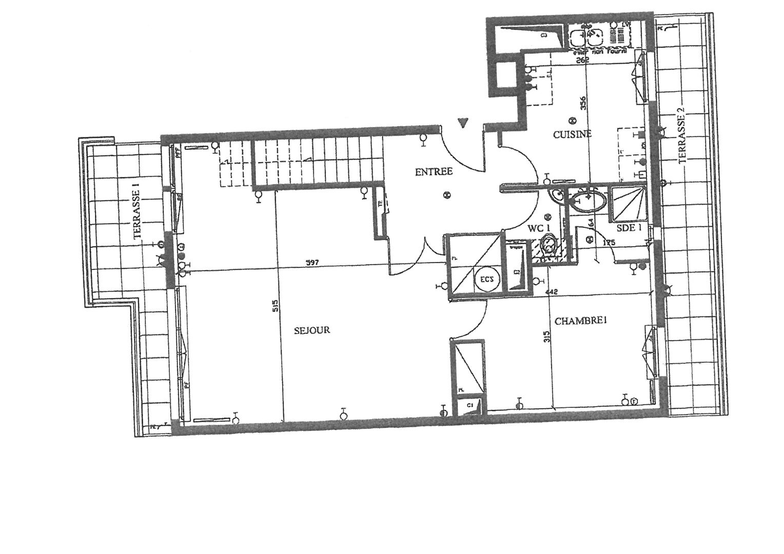
COURBEVOIE CENTRE VILLE GARE
APPARTEMENT 5 PIECES DE 126M² EN DUPLEX DERNIER ETAGE AVEC TERRASSES DANS UN RESIDENCE DE 2001. 1er niveau : Entrée, cuisine aménagée, séjour de 31m², chambre 1, salle d'eau, wc , TERRASSES 17m².
2ème niveau : salon de 34m² (possibilité de créer 2 chambres supplémentaires) , chambre 4, salle d'eau-wc, dressing, terrasse de 23m². En sous sol parking double et une cave. CLAIR, CALME, EXPOSÉ EST/OUEST. Au coeur des commerces, à proximité de la gare.

Etat des risques et pollutions

Les informations sur les risques auxquels ce bien est exposé sont disponibles sur le site Géorisques : www.georisques.gouv.fr.

Caractéristiques du bien

Composition du bien

  • Type d'habitation : Appartement
  • Nombre de pièce(s) : 5
  • Nombre de chambre(s) : 4

Aménagement du bien

Extérieur

  • Terrasse : Non
  • Balcon : Non

Partie Commune

  • Ascenseur : Oui
  • Surface habitable : 126 m²
  • Parking : Oui

Informations sur la copropriété

  • Bien soumis au statut de la copropriété
  • Nombre de lots : 334
  • Quote part charges courantes : 5270 €/an
  • Procédure en cours : Non

Localisation du bien

Ce bien n'est pas géolocalisé, pour connaitre sa géolocalisation, merci de contacter l'agence.

Consommation énergétique

  • C (161 kWh/m² an)
    B (6 kgCO2/m².an)
    Plus d'info
    161
    6
    6
  • DPE réalisé après le 1er juillet 2021.
  • Entre 1560 € TTC / an et 2160 € TTC / an
    Non communiqué

Nos professionnels vous accompagnent

Contactez notre agence !

8 AVENUE MARCEAU 92400 COURBEVOIE

Appeler l’agence Tél : 0141168000

* Champs obligatoires

Nous vous informons de l’existence de la liste d’opposition au démarchage téléphonique « BLOCTEL » sur laquelle vous pouvez vous inscrire (https://www.bloctel.gouv.fr).

En complétant le formulaire «CONTACTEZ NOTRE AGENCE », je reconnais expressément que je consens au traitement de mes données personnelles et que je dispose du droit de retirer mon consentement à tout moment en m'adressant à support@fnaim.fr.
En savoir plus sur la gestion de vos données et droits : consulter nos mentions légales, « article 5/ Données à caractère personnel ».

En envoyant ce message, vous acceptez les conditions d'utilisation du site. Plus d'infos