Fnaim.fr
Menu

Acheter

Visite virtuelle
Réf. VA5857-BIENALAMER

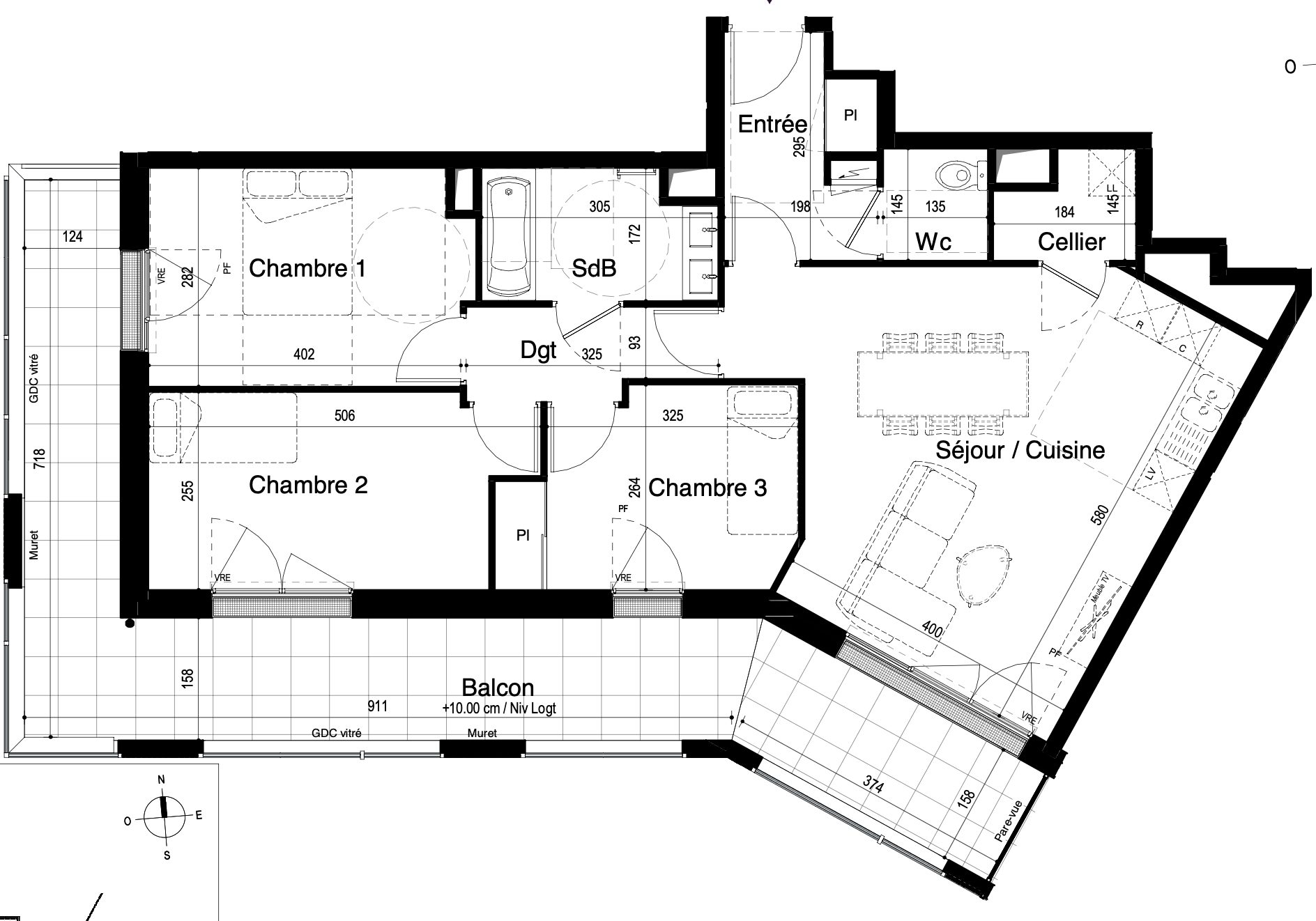
Achat Appartement 4 pièces 77m² ST MALO 35400

425 000 Honoraires charge vendeur

3 chambres Ascenseur Parking / Garage

Description du bien

Nouvelle Résidence - finitions en cours, visitable, frais de notaire réduits.
Emplacement central : A pied : 8 min gare, 15 min plage des Bas Sablons/St Servan, 18 min Sillon, 16 min Marché de Rocabey, 5 min Centre Hospitalier.

T4 avec superbe terrasse de 28m2 expo sud et ouest, comprenant :
- Séjour 27,2m2 avec cellier, entrée, placard, wc séparé
- 3 chambres11,43-11,71-9,11m2
- salle de bains 4,89m2double vasque,

Chauffage électrique, parking double sous sol.

Nous Consulter

Honoraires à la charge du vendeur. Classe énergie A, Classe climat A Montant estimé des dépenses annuelles d'énergie pour un usage standard : entre 380.00 ? et 580.00 ? sur les années 2021, 2022 et 2023 (abonnements compris). Les informations sur les risques auxquels ce bien est exposé sont disponibles sur le site Géorisques : georisques.gouv.fr.

Votre conseiller MON BIEN A LA MER : Gérant - .fr MON BIEN A LA MER
Carte T CPI 2201 2018 000 025 040
RCP ACM IARD B1 7025278

Etat des risques et pollutions

Les informations sur les risques auxquels ce bien est exposé sont disponibles sur le site Géorisques : www.georisques.gouv.fr.

Caractéristiques du bien

Composition du bien

  • Type d'habitation : Appartement
  • Nombre de pièce(s) : 4
  • Nombre de chambre(s) : 3
  • Salles de bain : 1

Aménagement du bien

Extérieur

  • Terrasse : Non
  • Balcon : Non

Partie Commune

  • Ascenseur : Oui
  • Surface habitable : 77 m²
  • Parking : Oui

Localisation du bien

ST MALO (35400) , ILLE-ET-VILAINE (35) - BRETAGNE

Ce bien n'est pas géolocalisé, pour connaitre sa géolocalisation, merci de contacter l'agence.

Consommation énergétique

  • A (50 kWh/m² an)
    A (1 kgCO2/m².an)
    Plus d'info
    50
    1
    1
  • DPE réalisé après le 1er juillet 2021.
  • Entre 380 € TTC / an et 580 € TTC / an
    01/01/2021

Nos professionnels vous accompagnent

Contactez notre agence !

23 Rue des Villeneuves Le Bignon 22400 MORIEUX

Appeler l’agence Tél : 0787285150

* Champs obligatoires

Nous vous informons de l’existence de la liste d’opposition au démarchage téléphonique « BLOCTEL » sur laquelle vous pouvez vous inscrire (https://www.bloctel.gouv.fr).

En complétant le formulaire «CONTACTEZ NOTRE AGENCE », je reconnais expressément que je consens au traitement de mes données personnelles et que je dispose du droit de retirer mon consentement à tout moment en m'adressant à support@fnaim.fr.
En savoir plus sur la gestion de vos données et droits : consulter nos mentions légales, « article 5/ Données à caractère personnel ».

En envoyant ce message, vous acceptez les conditions d'utilisation du site. Plus d'infos