Fnaim.fr
Menu

Acheter

Achat Appartement 4 pièces 76m² NANTES 44000

212 500 Honoraires charge acquéreur inclus : 6,3% TTC (200000 € hors honoraires)

2 chambres Ascenseur Parking / Garage

Description du bien

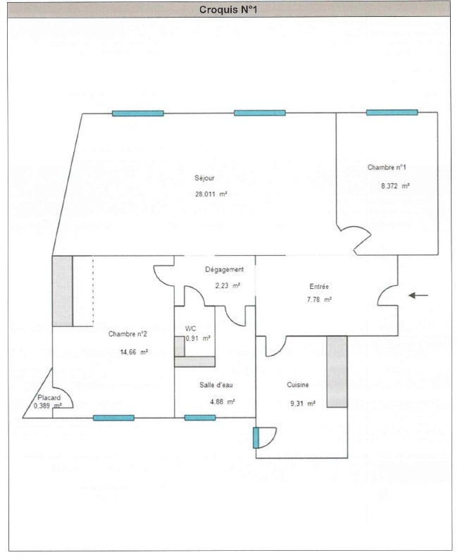
ANP IMMOBILIER VOUS PROPOSE A l'angle du Boulevard Guist'hau et de l'Avenue Camus, cet appartement type 3 au rez de chaussée surélevé d'un immeuble de standing avec ascenceur comprenant une spacieuse entrée avec placard aménagé distribuant un grand salon-séjour sur parquet, WC, cuisine A/E indépendante avec accès au jardinet de la copropriété, une salle d'eau, une grande chambre sur parquet avec placard et un bureau/chambre d'enfant - cave en sous-sol - Appartement rénové en 2012 offrant diverses possibilités : résidence principale, professions libérales, location courte durée (appartement vendu vide ou meublé au choix) - possibilité d'acquérir en sus un garage dans la copropriété au prix de 20 000 EUR - Bien soumis à une copropriété de 64 lots sans aucune procédure en cours et comprenant un budget moyen de 2449.96 EUR en charges courantes annuel (chauffage collectif gaz de ville) - Classe énergie E et Classe climat E - Prix de vente 212 500 EUR dont 6.25% TTC d' honoraires charge acquéreur (Prix 200 000 EUR hors honoraires).

Etat des risques et pollutions

Les informations sur les risques auxquels ce bien est exposé sont disponibles sur le site Géorisques : www.georisques.gouv.fr.

Caractéristiques du bien

Composition du bien

  • Type d'habitation : Appartement
  • Cuisine : 19
  • Nombre de pièce(s) : 4
  • Nombre de chambre(s) : 2

Aménagement du bien

Extérieur

  • Terrasse : Non
  • Balcon : Non

Partie Commune

  • Ascenseur : Oui
  • Surface habitable : 76 m²
  • Parking : Oui

Localisation du bien

NANTES (44000) , LOIRE-ATLANTIQUE (44) - PAYS-DE-LA-LOIRE

Ce bien n'est pas géolocalisé, pour connaitre sa géolocalisation, merci de contacter l'agence.

Consommation énergétique

  • E (306 kWh/m² an)
    E (67 kgCO2/m².an)
    Plus d'info
    306
    67
    67
  • DPE réalisé après le 1er juillet 2021.
  • Entre 1288 € TTC / an et 1742 € TTC / an
    01/01/2021

Nos professionnels vous accompagnent

Contactez notre agence !

34 PLACE GEORGES GAUDET 44140 GENESTON

Appeler l’agence Tél : 02 40 65 95 03

* Champs obligatoires

Nous vous informons de l’existence de la liste d’opposition au démarchage téléphonique « BLOCTEL » sur laquelle vous pouvez vous inscrire (https://www.bloctel.gouv.fr).

En complétant le formulaire «CONTACTEZ NOTRE AGENCE », je reconnais expressément que je consens au traitement de mes données personnelles et que je dispose du droit de retirer mon consentement à tout moment en m'adressant à support@fnaim.fr.
En savoir plus sur la gestion de vos données et droits : consulter nos mentions légales, « article 5/ Données à caractère personnel ».

En envoyant ce message, vous acceptez les conditions d'utilisation du site. Plus d'infos