Fnaim.fr
Menu

Acheter

Exclusivité
Réf. 113074

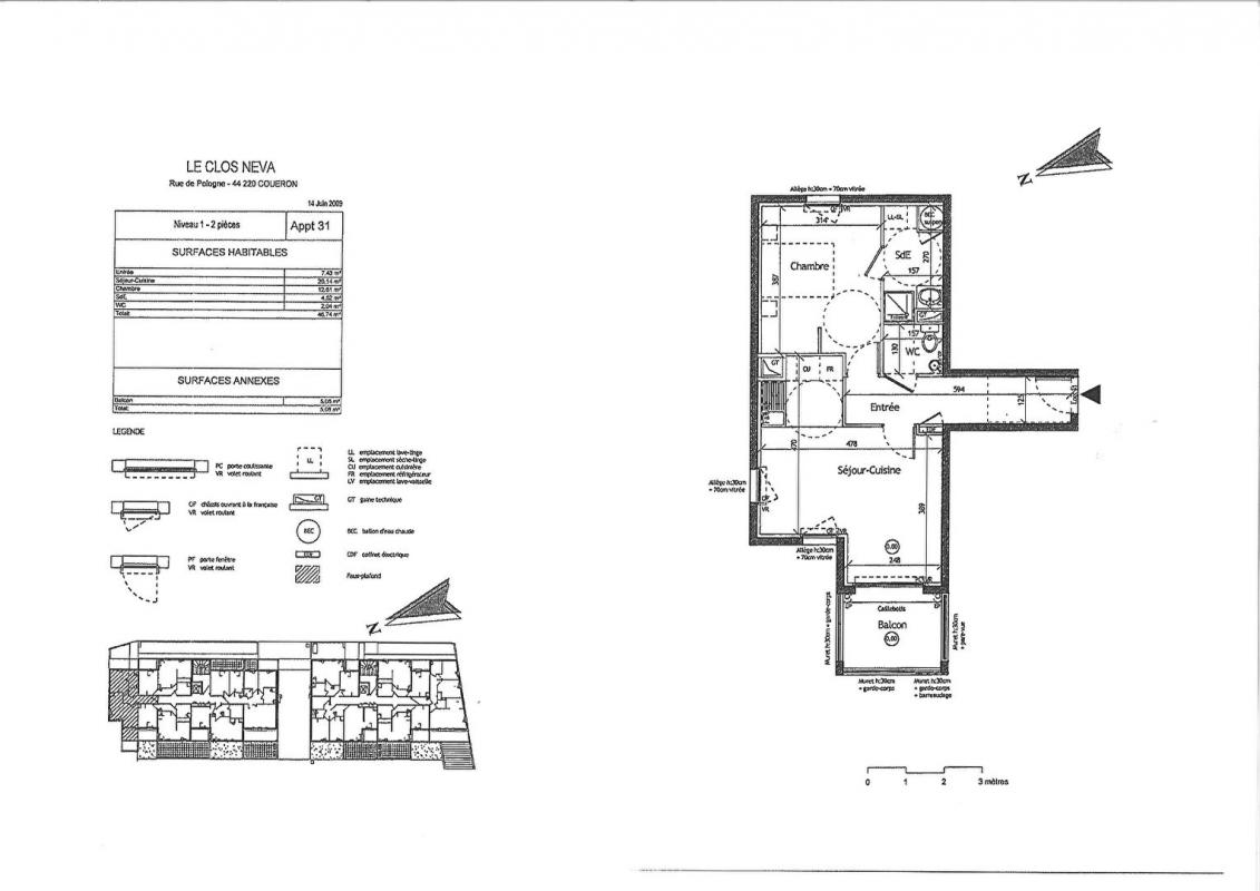
Achat Appartement 2 pièces 46m² COUERON 44220

144 450 Honoraires charge acquéreur inclus : 7% TTC (135000 € hors honoraires)

1 chambre Balcon Ascenseur Parking / Garage

Description du bien

COUERON
Dans une résidence de 2011, en étage avec ascenseur appartement de type 2 comprenant entrée, chambre avec placard et sa salle d'eau privative, wc séparés, séjour avec cuisine ouvert donnant sur l'arrière au calme et bénéficiant d'une exposition OUEST avec son balcon.
Parking en sous sol
Les informations sur les risques auxquels ce bien est exposé sont disponibles sur le site Géorisques : www. georisques. gouv. fr

Etat des risques et pollutions

Les informations sur les risques auxquels ce bien est exposé sont disponibles sur le site Géorisques : www.georisques.gouv.fr.

Caractéristiques du bien

Composition du bien

  • Type d'habitation : Appartement
  • Cuisine : 337
  • Nombre de pièce(s) : 2
  • Nombre de chambre(s) : 1

Aménagement du bien

Extérieur

  • Terrasse : Non
  • Balcon : Oui

Partie Commune

  • Ascenseur : Oui
  • Surface habitable : 46 m²
  • Parking : Oui

Informations sur la copropriété

  • Bien soumis au statut de la copropriété
  • Nombre de lots : 117
  • Quote part charges courantes : 1003 €/an
  • Procédure en cours : Non

Localisation du bien

COUERON (44220) , LOIRE-ATLANTIQUE (44) - PAYS-DE-LA-LOIRE

Consommation énergétique

  • D (206 kWh/m² an)
    B (6 kgCO2/m².an)
    Plus d'info
    206
    6
    6
  • DPE réalisé après le 1er juillet 2021.
  • Entre 820 € TTC / an et 1160 € TTC / an
    Non communiqué

Nos professionnels vous accompagnent

Contactez notre agence !

27 place Viarme 44000 NANTES

Appeler l’agence Tél : 02 40 47 03 03

* Champs obligatoires

Nous vous informons de l’existence de la liste d’opposition au démarchage téléphonique « BLOCTEL » sur laquelle vous pouvez vous inscrire (https://www.bloctel.gouv.fr).

En complétant le formulaire «CONTACTEZ NOTRE AGENCE », je reconnais expressément que je consens au traitement de mes données personnelles et que je dispose du droit de retirer mon consentement à tout moment en m'adressant à support@fnaim.fr.
En savoir plus sur la gestion de vos données et droits : consulter nos mentions légales, « article 5/ Données à caractère personnel ».

En envoyant ce message, vous acceptez les conditions d'utilisation du site. Plus d'infos