Fnaim.fr
Menu

Acheter

Exclusivité
Réf. 551.OCR

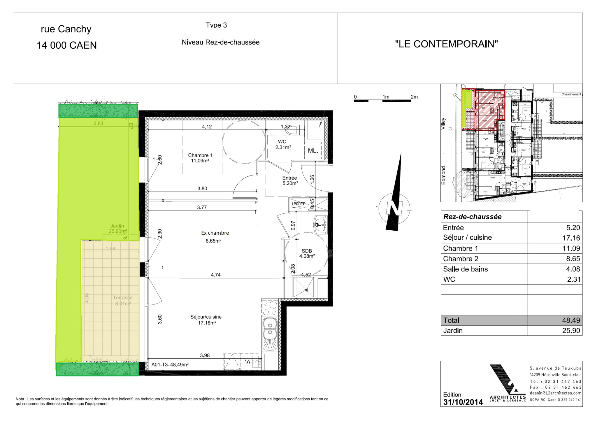
Achat Appartement 2 pièces 49m² CAEN 14000

149 900 Honoraires charge vendeur

1 chambre Ascenseur Parking / Garage

Description du bien

Nuances Immobilières, vous propose un investissement locatif (vendu loué), en exclusivité
Un appartement 2Pièces de 49m2, dans une résidence récente, idéalement situé quartier des fleurs à Caen.
Il se compose d'une entrée, un séjour avec cuisine ouverte, parfaitement exposé plein Ouest, donnant sur une terrasse et jardin, une grande chambre avec placard de rangement, une salle d'eau et un WC séparé.
L'appartement est vendu avec un stationnement. Il est bien entretenu.
La résidence, construite en 2016, dispose toujours de garantie.
L'appartement est vendu loué, moyennant un loyer de 526EUR (hors charges) et 50EUR de provisions sur charges soit un loyer de 576EUR/mois.
Il bénéficie d'un emplacement privilégié, au pied du marché du bld Leroy, des commerces de proximité et des transports en communs (Bus et TRAM).
Les informations sur les risques auxquels ce bien est exposé sont disponibles sur le site Géorisques : www.georisques.gouv.fr'

Etat des risques et pollutions

Les informations sur les risques auxquels ce bien est exposé sont disponibles sur le site Géorisques : www.georisques.gouv.fr.

Caractéristiques du bien

Composition du bien

  • Type d'habitation : Appartement
  • Cuisine : Américaine
  • Nombre de pièce(s) : 2
  • Nombre de chambre(s) : 1

Aménagement du bien

Extérieur

  • Terrasse : Non
  • Balcon : Non

Partie Commune

  • Ascenseur : Oui
  • Surface habitable : 49 m²
  • Parking : Oui

Localisation du bien

CAEN (14000) , CALVADOS (14) - NORMANDIE

Ce bien n'est pas géolocalisé, pour connaitre sa géolocalisation, merci de contacter l'agence.

Consommation énergétique

  • B (107 kWh/m² an)
    C (20 kgCO2/m².an)
    Plus d'info
    107
    20
    20
  • DPE réalisé après le 1er juillet 2021.
  • Entre 570 € TTC / an et 830 € TTC / an
    01/01/2023

Nos professionnels vous accompagnent

Contactez notre agence !

10 rue de l'Oratoire 14000 CAEN

Appeler l’agence Tél : 0231084040

* Champs obligatoires

Nous vous informons de l’existence de la liste d’opposition au démarchage téléphonique « BLOCTEL » sur laquelle vous pouvez vous inscrire (https://www.bloctel.gouv.fr).

En complétant le formulaire «CONTACTEZ NOTRE AGENCE », je reconnais expressément que je consens au traitement de mes données personnelles et que je dispose du droit de retirer mon consentement à tout moment en m'adressant à support@fnaim.fr.
En savoir plus sur la gestion de vos données et droits : consulter nos mentions légales, « article 5/ Données à caractère personnel ».

En envoyant ce message, vous acceptez les conditions d'utilisation du site. Plus d'infos