Fnaim.fr
Menu

Acheter

Réf. TPO-TRSHA113-93735

Achat Appartement 2 pièces 45m²

212 000 Honoraires charge vendeur

1 chambre Balcon Ascenseur

Description du bien


TOURS - Quartier Giraudeau
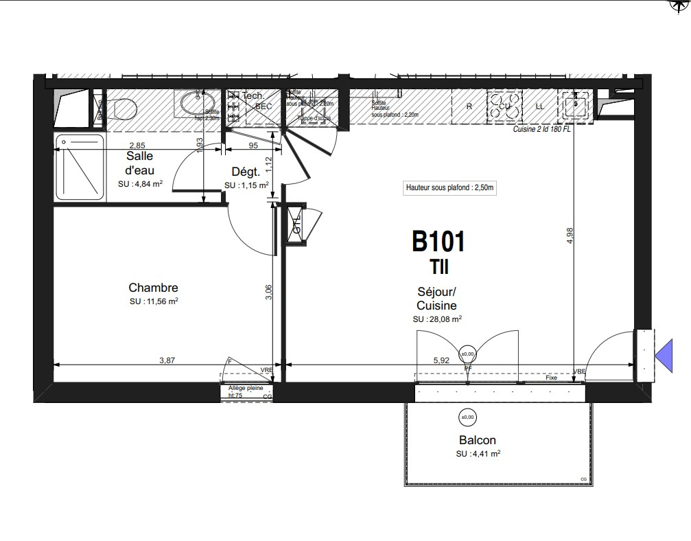
Appartement de type 2 comprenant entrée, séjour avec balcon de 4 m2, chambre et garage.

Disponibilité 4e trimestre 2026.

Proche de l'hyper centre de TOURS avec toutes ses commodités (commerces, transports en commun, gare, écoles et lycées , marchés...).

La résidence, parfaitement intégrée dans son environnement, vous séduira d'emblée par son cachet : architecture très travaillée, matériaux de qualité et originalité de sa coursive extérieure.

Rare à TOURS, dans une charmante petite copropriété.

Prix en TVA réduite sous condition de ressources pour de la résidence principale.

Nous sommes disponibles du lundi au samedi, de 8h à 19h. Ne manquez pas cette opportunité exceptionnelle, contactez nous rapidement ! OV

Les informations sur les risques auxquels ce bien est exposé sont disponibles sur le site Géorisques : www.georisques.gouv.fr

Etat des risques et pollutions

Les informations sur les risques auxquels ce bien est exposé sont disponibles sur le site Géorisques : www.georisques.gouv.fr.

Caractéristiques du bien

Composition du bien

  • Type d'habitation : Appartement
  • Nombre de pièce(s) : 2
  • Nombre de chambre(s) : 1

Aménagement du bien

Extérieur

  • Terrasse : Non
  • Balcon : Oui

Partie Commune

  • Ascenseur : Oui
  • Surface habitable : 45 m²

Informations sur la copropriété

  • Bien soumis au statut de la copropriété
  • Nombre de lots : 60
  • Quote part charges courantes : 810 €/an
  • Procédure en cours : Non

Localisation du bien

Ce bien n'est pas géolocalisé, pour connaitre sa géolocalisation, merci de contacter l'agence.

Consommation énergétique

DPE non soumis
mention indiquée sous la responsabilité de l’agence immobilière

Nos professionnels vous accompagnent

Contactez notre agence !

113 RUE DES HALLES 37000 TOURS

Appeler l’agence Tél : 0247766000

* Champs obligatoires

Nous vous informons de l’existence de la liste d’opposition au démarchage téléphonique « BLOCTEL » sur laquelle vous pouvez vous inscrire (https://www.bloctel.gouv.fr).

En complétant le formulaire «CONTACTEZ NOTRE AGENCE », je reconnais expressément que je consens au traitement de mes données personnelles et que je dispose du droit de retirer mon consentement à tout moment en m'adressant à support@fnaim.fr.
En savoir plus sur la gestion de vos données et droits : consulter nos mentions légales, « article 5/ Données à caractère personnel ».

En envoyant ce message, vous acceptez les conditions d'utilisation du site. Plus d'infos