Fnaim.fr
Menu

Acheter

Réf. 160650-AMI74

Achat Appartement 3 pièces 59m² PRAZ SUR ARLY 74120

522 000 Honoraires charge acquéreur inclus : 3% TTC (506796 € hors honoraires)

2 chambres Parking / Garage

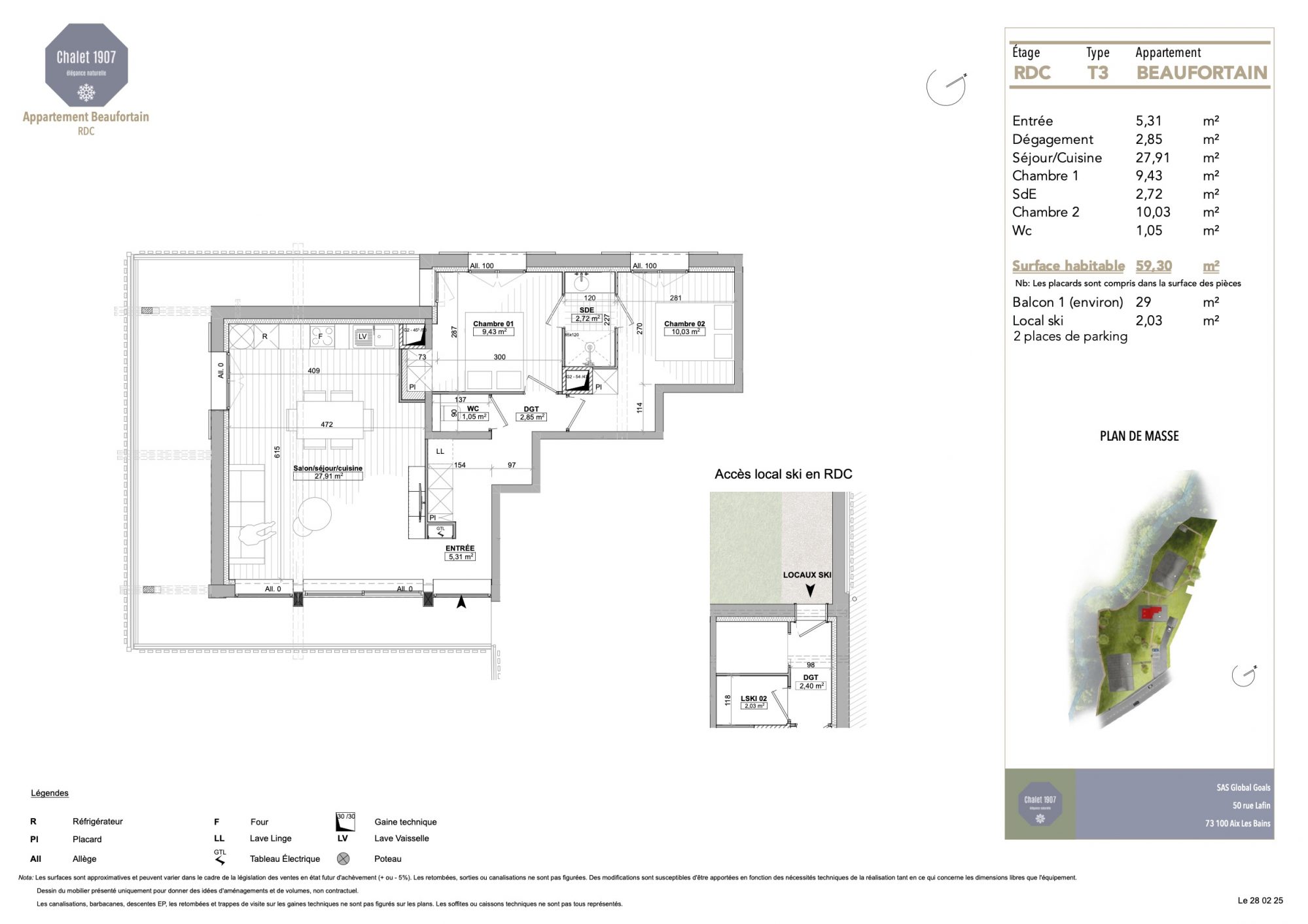
Description du bien

Appartement type T3 en rez-de-chaussée à vendre dans un magnifique projet immobilier composé de 3 appartements sur un terrain de 1500m2 en coeur de village à Praz sur Arly. Centre du village, remontées mécaniques et plan d'eau à proximité du chalet.
L'appartement comprend : 1 entrée avec vestiaire ; toilettes invités ; 2 chambres double ; 1 salle de douche et dégagement ; 1 grand séjour avec cheminée, cuisine et salle à manger (28 m2) ouvert sur balcon terrasse en angle (29m2).
1 local à skis ainsi que 2 places de parking couvert viennent compléter cette offre.

Prestations haut de gamme:
- Carrelage grand format pour les pièces de vie
- Parquet et placards dans les chambres.
- Salles de bains faïencées et équipées
- Chauffage avec plancher chauffant et porte intérieures en bois massif et visio-phone.
- Parking en sous-sol - Cave et local à ski individuel.
- Spacieux balcons pour chaque appartement.

Mon 'coup de coeur' pour ce bien : l'emplacement idéal dans le centre du village ainsi que l'aspect général du chalet (Henri Jacques Le Même) identifié 'remarquable' par la commune.



Honoraires inclus de 3% TTC à la charge de l'acquéreur. Prix hors honoraires 506 796 ?. Dans une copropriété de 10 lots. Aucune procédure n'est en cours. Non soumis au DPE. Les informations sur les risques auxquels ce bien est exposé sont disponibles sur le site Géorisques : georisques.gouv.fr. .
Les informations sur les risques auxquels ce bien est exposé sont disponibles sur le site Géorisques : georisques. gouv. fr.

Etat des risques et pollutions

Les informations sur les risques auxquels ce bien est exposé sont disponibles sur le site Géorisques : www.georisques.gouv.fr.

Caractéristiques du bien

Composition du bien

  • Type d'habitation : Appartement
  • Nombre de pièce(s) : 3
  • Nombre de chambre(s) : 2
  • Salles de bain : 1

Aménagement du bien

Extérieur

  • Terrasse : Non
  • Balcon : Non

Partie Commune

  • Ascenseur : Non
  • Surface habitable : 59 m²
  • Parking : Oui

Informations sur la copropriété

  • Bien soumis au statut de la copropriété
  • Nombre de lots : 10
  • Procédure en cours : Non

Localisation du bien

PRAZ SUR ARLY (74120) , HAUTE-SAVOIE (74) - AUVERGNE-RHÔNE-ALPES

Ce bien n'est pas géolocalisé, pour connaitre sa géolocalisation, merci de contacter l'agence.

Consommation énergétique

DPE non soumis
mention indiquée sous la responsabilité de l’agence immobilière

Nos professionnels vous accompagnent

Contactez notre agence !

396 route de Sallanches 74920 COMBLOUX

Appeler l’agence Tél : +33684837835

* Champs obligatoires

Nous vous informons de l’existence de la liste d’opposition au démarchage téléphonique « BLOCTEL » sur laquelle vous pouvez vous inscrire (https://www.bloctel.gouv.fr).

En complétant le formulaire «CONTACTEZ NOTRE AGENCE », je reconnais expressément que je consens au traitement de mes données personnelles et que je dispose du droit de retirer mon consentement à tout moment en m'adressant à support@fnaim.fr.
En savoir plus sur la gestion de vos données et droits : consulter nos mentions légales, « article 5/ Données à caractère personnel ».

En envoyant ce message, vous acceptez les conditions d'utilisation du site. Plus d'infos