Fnaim.fr
Menu

Acheter

Réf. 413857PLK

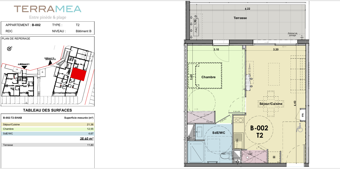
Achat Appartement 2 pièces 38m² FLEURY 11560

159 900 Honoraires charge vendeur

1 chambre

Description du bien

Appartement neuf à 500m de la mer ? Résidence Terramea à Saint-Pierre-la-Mer (Aude, Occitanie)
A partir de 159 900 euros ? Livraison 3? trimestre 2026 ? Honoraires à la charge du vendeur
Vivez entre terre et mer dans le Sud de la France, au coeur de la région Occitanie, dans le département de l'Aude.
Située à seulement 500 mètres des plages de Saint-Pierre-la-Mer, station balnéaire très prisée, la résidence Terramea vous propose un cadre de vie privilégié, entre Méditerranée et garrigue.

La résidence Terramea : un projet à taille humaine
Composée de 2 bâtiments de 2 étages avec rez-de-jardin
24 logements du T2 au T4
Espaces extérieurs généreux : larges balcons, terrasses avec pergolas
Vue imprenable sur la Méditerranée
Stationnements inclus : 35 parkings aériens + 7 garages en sous-sol (dont 3 PMR)
Un emplacement idéal
A 500 m des plages de sable fin
Résidence surélevée avec vue mer
Commerces et services de proximité accessibles à pied ou à vélo : supérette, boulangerie, presse, pharmacie, médecins
Animations locales : bars, restaurants, promenades en front de mer, fêtes estivales
A ne pas manquer : le marché de Saint-Pierre-la-Mer, plus grand marché du littoral audois, ouvert tous les jours en été
Informations complémentaires
Livraison prévue : 3? trimestre 2026
Non soumis au DPE (neuf)
Prix : 159 900 euros (stationnement inclus, honoraires à charge vendeur)
Intéressé(e) ?
Pour plus d'informations, organiser une visite ou être accompagné dans votre projet :
Contactez Karine PLA au 06 50 25 26 47 ou k.pla@proprietes-privees.com

Selon l'article L.561.5 du Code Monétaire et Financier, pour l'organisation de la visite, la présentation d'une pièce d'identité vous sera demandée.
Cette présente annonce a été rédigée sous la responsabilité éditoriale de Karine PLA agissant sous le statut d'agent commercial immatriculé au RSAC Narbonne 439 996 398 auprès de SAS PROPRIETES PRIVEES, au capital de 44 920 euros, ZAC LE CHÊNE FERRÉ - 44 ALLÉE DES CINQ CONTINENTS 44120 VERTOU; SIRET 487 624 777 00040, RCS Nantes. Carte Professionnelle Transactions sur immeubles et fonds de commerce (T) et Gestion immobilière (G) n°CPI 4401 2016 000 010 388 délivrée par la CCI Nantes - Saint Nazaire. Compte séquestre n°30932508467 BPA SAINT-SEBASTIEN-SUR-LOIRE (44230). Garantie GALIAN-SMABTP - 89 rue de la Boétie, 75008 Paris - n°28137 J pour 2 000 000 euros pour T et 120 000 euros pour G. Assurance responsabilité civile professionnelle par GALIAN-SMABTP n° de police 28137.J

Mandat réf : 413857 - Le professionnel garantit et sécurise votre projet immobilier.

Karine PLA (EI) Agent Commercial - Numéro RSAC : narbonne 439 996 398 - .
Les informations sur les risques auxquels ce bien est exposé sont disponibles sur le site Géorisques : www. georisques. gouv. fr

Etat des risques et pollutions

Les informations sur les risques auxquels ce bien est exposé sont disponibles sur le site Géorisques : www.georisques.gouv.fr.

Caractéristiques du bien

Composition du bien

  • Type d'habitation : Appartement
  • Cuisine : 337
  • Nombre de pièce(s) : 2
  • Nombre de chambre(s) : 1

Aménagement du bien

Extérieur

  • Terrasse : Non
  • Balcon : Non

Partie Commune

  • Ascenseur : Non
  • Surface habitable : 38 m²

Localisation du bien

FLEURY (11560) , AUDE (11) - OCCITANIE

Ce bien n'est pas géolocalisé, pour connaitre sa géolocalisation, merci de contacter l'agence.

Consommation énergétique

DPE non soumis
mention indiquée sous la responsabilité de l’agence immobilière

Nos professionnels vous accompagnent

Contactez notre agence !

44 Allée des Cinq Continents ZAC Le Chêne Ferré 44120 VERTOU

Appeler l’agence Tél : 06 50 25 26 47

* Champs obligatoires

Nous vous informons de l’existence de la liste d’opposition au démarchage téléphonique « BLOCTEL » sur laquelle vous pouvez vous inscrire (https://www.bloctel.gouv.fr).

En complétant le formulaire «CONTACTEZ NOTRE AGENCE », je reconnais expressément que je consens au traitement de mes données personnelles et que je dispose du droit de retirer mon consentement à tout moment en m'adressant à support@fnaim.fr.
En savoir plus sur la gestion de vos données et droits : consulter nos mentions légales, « article 5/ Données à caractère personnel ».

En envoyant ce message, vous acceptez les conditions d'utilisation du site. Plus d'infos