Fnaim.fr
Menu

Acheter

Réf. 0601812955

Achat Appartement 2 pièces 60m² NICE 06000

449 000 Honoraires charge vendeur

1 chambre Ascenseur

Description du bien

DUBOUCHAGE / PROCHE JEAN MÉDECIN - 2 PIÈCES AVEC BALCON

Découvrez cet agréable appartement 2 pièces situé dans le quartier recherché de Dubouchage, à proximité immédiate de Jean Médecin, du tramway, des commerces et des écoles.

Situé au 3e étage d'un immeuble bien entretenu des années 60 avec ascenseur et gardien, ce bien lumineux bénéficie d'une vue dégagée et d'un environnement calme.

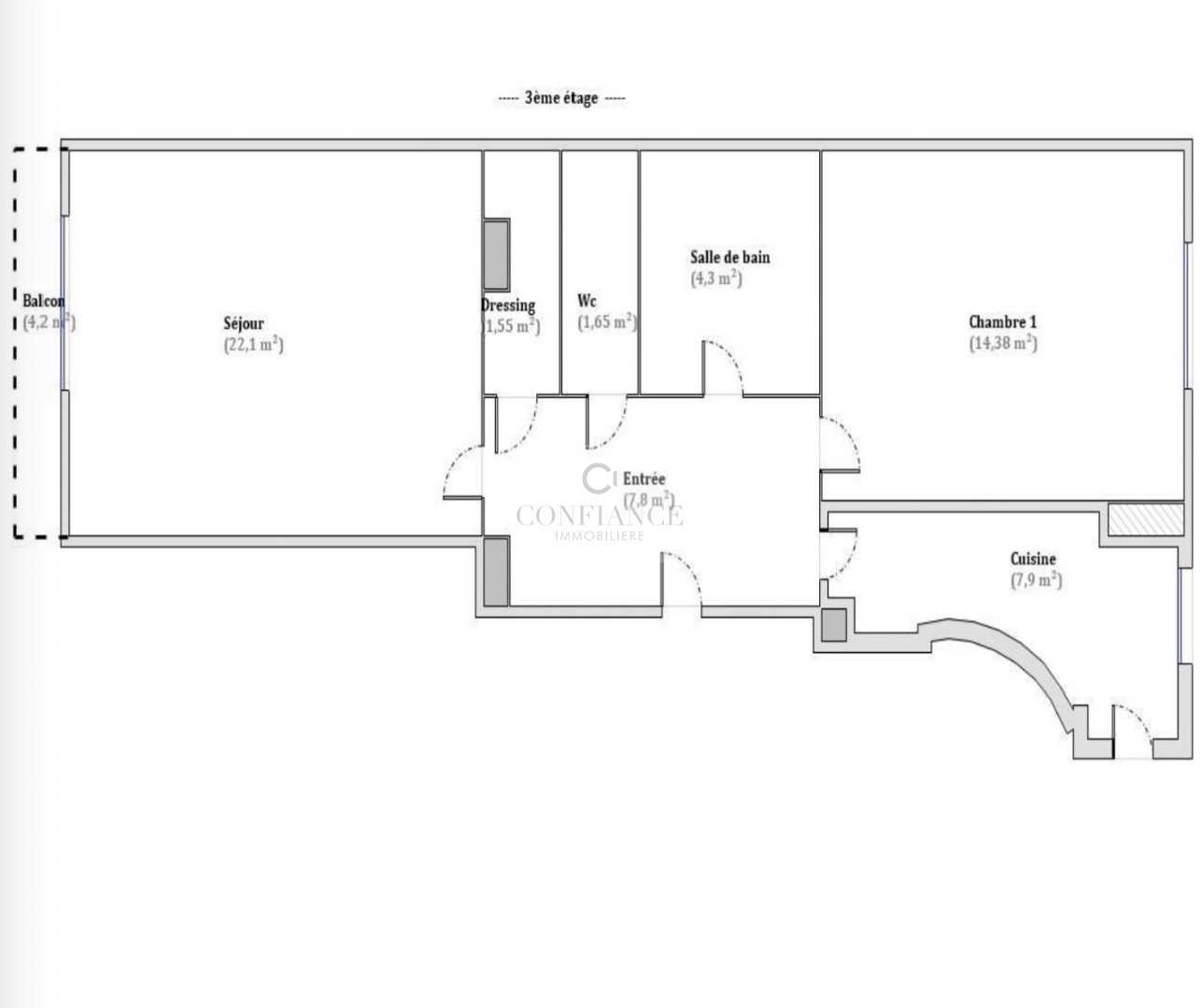
Il se compose d'un vaste séjour ouvrant sur un balcon, d'une cuisine indépendante, d'une chambre, d'une salle de bains, de WC séparés et d'un dressing.
Le chauffage est collectif par le sol, assurant un confort optimal.

Vous apprécierez son balcon ideal pour vos moments de détente. Une cave complete le bien

Un bien à fort potentiel, à visiter sans tarder !

Les informations sur les risques auxquels ce bien est exposé sont disponibles sur le site Géorisques http://www.georisques.gouv.fr
Toute l'équipe Confiance Immobilière vous remercie.
Plaquette de présentation complète & Visite virtuelle commentée sur demande.
73 lots de copropriété - Taxe F 1451€ - Charges 125€ /mois - Surface CARREZ : 59 m² / Hab 60 m² - Dpe D/D
Honoraires à la charge du vendeur.
Aucune connaissance de procédures en cours dans la copropriété. Surface habitable : ......... m²

Loyer : <TEXTE_LOYER_CC>€ par mois charges comprises dont ...€ de provision pour charges - régularisation annuelle - (Eau froide incluse dans les charges).

Dépôt de garantie : <DEPOT_GARANTIE>€

Honoraires charge locataire : <TOTAL_HONORAIRES_LOCATAIRE>€ TTC dont <HONORAIRES_ETAT_LIEUX>€ TTC pour état des lieux. Investisseurs, demandez le dossier de rentabilité de ce bien.
Toutes nos offres ACHAT VENTE LOCATION sur www.confianceimmobiliere.com

Etat des risques et pollutions

Les informations sur les risques auxquels ce bien est exposé sont disponibles sur le site Géorisques : www.georisques.gouv.fr.

Caractéristiques du bien

Composition du bien

  • Type d'habitation : Appartement
  • Cuisine : Nue
  • Nombre de pièce(s) : 2
  • Nombre de chambre(s) : 1
  • Salles de bain : 1

Aménagement du bien

Extérieur

  • Terrasse : Non
  • Balcon : Non

Partie Commune

  • Ascenseur : Oui
  • Surface habitable : 60 m²

Informations sur la copropriété

  • Bien soumis au statut de la copropriété
  • Nombre de lots : 73
  • Quote part charges courantes : 1508 €/an
  • Procédure en cours : Non

Localisation du bien

NICE (06000) , ALPES-MARITIMES (06) - PROVENCE-ALPES-COTE-D-AZUR

Ce bien n'est pas géolocalisé, pour connaitre sa géolocalisation, merci de contacter l'agence.

Consommation énergétique

  • D (182 kWh/m² an)
    D (37 kgCO2/m².an)
    Plus d'info
    182
    37
    37
  • DPE réalisé après le 1er juillet 2021.
  • Entre 1240 € TTC / an et 1730 € TTC / an
    Non communiqué

Nos professionnels vous accompagnent

Contactez notre agence !

22 BIS BD DUBOUCHAGE 06000 NICE

Appeler l’agence Tél : 0493882032

* Champs obligatoires

Nous vous informons de l’existence de la liste d’opposition au démarchage téléphonique « BLOCTEL » sur laquelle vous pouvez vous inscrire (https://www.bloctel.gouv.fr).

En complétant le formulaire «CONTACTEZ NOTRE AGENCE », je reconnais expressément que je consens au traitement de mes données personnelles et que je dispose du droit de retirer mon consentement à tout moment en m'adressant à support@fnaim.fr.
En savoir plus sur la gestion de vos données et droits : consulter nos mentions légales, « article 5/ Données à caractère personnel ».

En envoyant ce message, vous acceptez les conditions d'utilisation du site. Plus d'infos