Fnaim.fr
Menu

Acheter

Exclusivité
Réf. VTE-1814-1

Achat Appartement 2 pièces 45m² CRETEIL 94000

180 000 Honoraires charge acquéreur inclus : 6% TTC (169811 € hors honoraires)

1 chambre Balcon Ascenseur Parking / Garage

Description du bien

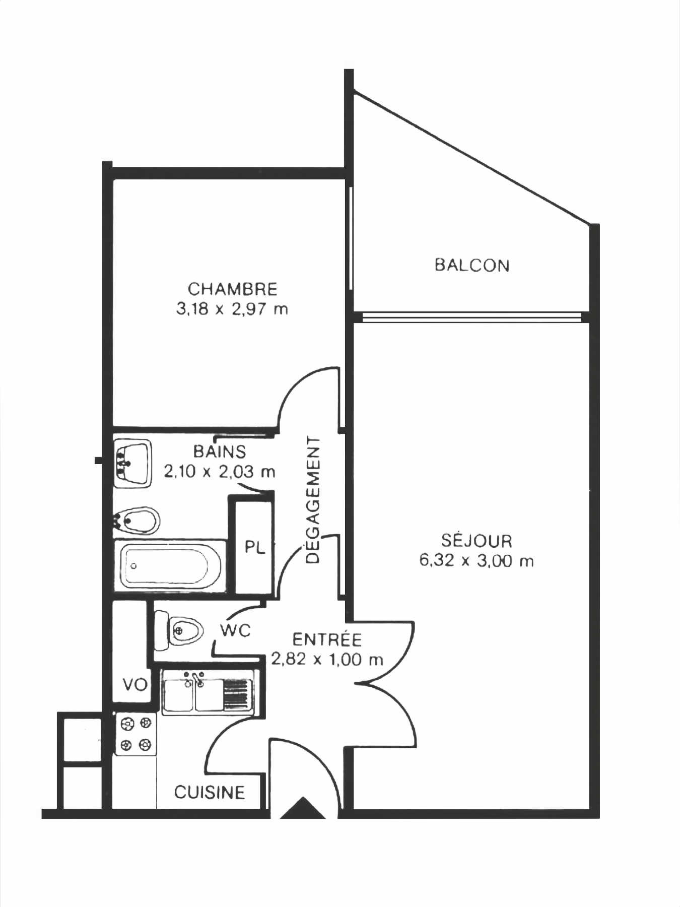
Charmant 2 pièces avec cave et parking à rafraîchir, à seulement 6 minutes à pied du métro ligne 8 Créteil-Préfecture.
Situé dans une copropriété bien entretenue avec gardien, cet appartement lumineux se trouve au rez-de-dalle (soit au 2ème étage) avec une vue agréable sur le lac. Il se compose d'une entrée spacieuse, d'un séjour confortable avec loggia fermée, d'une chambre avec placard intégré, d'un dégagement avec placard, d'une cuisine séparée, d'une salle de bains et de WC séparés. Une cave au sous-sol et un emplacement de parking complètent ce bien.
À proximité : Centre commercial Créteil-Soleil. Lac de Créteil. Écoles, commerces et arrêts de bus.
Ne manquez pas cette opportunité de personnaliser cet appartement selon vos goûts, tout en profitant d'un emplacement privilégié !

Etat des risques et pollutions

Les informations sur les risques auxquels ce bien est exposé sont disponibles sur le site Géorisques : www.georisques.gouv.fr.

Caractéristiques du bien

Composition du bien

  • Type d'habitation : Appartement
  • Cuisine : Type de cuisine Non communique
  • Nombre de pièce(s) : 2
  • Nombre de chambre(s) : 1
  • Salles de bain : 1

Aménagement du bien

Extérieur

  • Terrasse : Non
  • Balcon : Oui

Partie Commune

  • Ascenseur : Oui
  • Surface habitable : 45 m²
  • Parking : Oui

Localisation du bien

CRETEIL (94000) , VAL-DE-MARNE (94) - ILE-DE-FRANCE

Ce bien n'est pas géolocalisé, pour connaitre sa géolocalisation, merci de contacter l'agence.

Consommation énergétique

  • D (193 kWh/m² an)
    C (14 kgCO2/m².an)
    Plus d'info
    193
    14
    14
  • DPE réalisé après le 1er juillet 2021.
  • Entre 650 € TTC / an et 930 € TTC / an
    01/01/2023

Nos professionnels vous accompagnent

Contactez notre agence !

9 PASSAGE DE L'IMAGE ST MARTIN 94000 CRETEIL

Appeler l’agence Tél : 0145131010

* Champs obligatoires

Nous vous informons de l’existence de la liste d’opposition au démarchage téléphonique « BLOCTEL » sur laquelle vous pouvez vous inscrire (https://www.bloctel.gouv.fr).

En complétant le formulaire «CONTACTEZ NOTRE AGENCE », je reconnais expressément que je consens au traitement de mes données personnelles et que je dispose du droit de retirer mon consentement à tout moment en m'adressant à support@fnaim.fr.
En savoir plus sur la gestion de vos données et droits : consulter nos mentions légales, « article 5/ Données à caractère personnel ».

En envoyant ce message, vous acceptez les conditions d'utilisation du site. Plus d'infos