Fnaim.fr
Menu

Acheter

Exclusivité
Réf. 388938LPAJ

Achat Appartement 3 pièces 73m² VENISSIEUX 69200

312 000 Honoraires charge vendeur

2 chambres Ascenseur

Description du bien

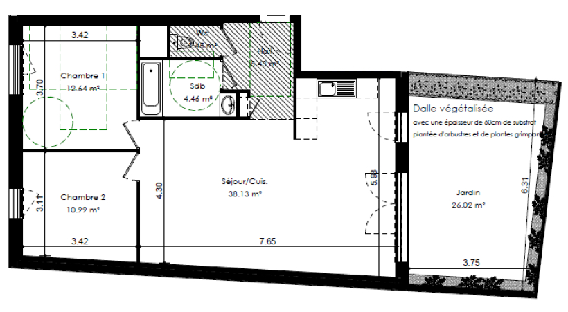
Découvrez cet appartement T3 en RDJ d'une superficie de 73 m² dans une résidence intimiste de standing idéalement située dans le quartier prisé du Moulin à Vent à Vénissieux.
Ce charmant appartement offre un cadre de vie agréable et pratique. Situé à proximité immédiate des commerces, écoles, transports en commun (tramway, bus) et des grands axes routiers, il est idéal pour une résidence principale ou un investissement locatif.
L'appartement dispose d'un séjour lumineux grâce
à son orientation Est/Ouest, une cuisine ouverte, deux chambres spacieuses, un grand jardin privatif de 26 m² végétalisé. Possibilité garage en sus. Cet appartement vous offre des prestations modernes et de qualité à découvrir sans trop tarder !
Pour découvrir ce projet, contactez Loubna PAJKIN, au 0763410593 ou par courriel à l.pajkin@proprietes-privees.com
Selon l'article L.561.5 du Code Monétaire et Financier, pour l'organisation de la visite, la présentation d'une pièce d'identité vous sera demandée.
Cette vente est garantie 12 mois.
Prix 312 000 euros honoraires charge vendeur.
Cette présente annonce a été rédigée sous la responsabilité éditoriale de Loubna PAJKIN agissant sous le statut d'agent commercial immatriculé au RSAC LYON 838642106 auprès de la SAS PROPRIETES PRIVEES, au capital de 44 920 euros, ZAC LE CHÊNE FERRÉ - 44 ALLÉE DES CINQ CONTINENTS 44120 VERTOU; SIRET 487 624 777 00040, RCS Nantes. Carte professionnelle Transactions sur immeubles et fonds de commerce (T) et Gestion immobilière (G) n° CPI 4401 2016 000 010 388 délivrée par la CCI Nantes - Saint Nazaire. Compte séquestre n°30932508467 BPA SAINT-SEBASTIEN-SUR-LOIRE (44230) ; Garantie GALIAN - 89 rue de la Boétie, 75008 Paris - n°28137 J pour 2 000 000 euros pour T et 120 000 euros pour G. Assurance responsabilité civile professionnelle par MMA Entreprise n° de police 120.137.405
Mandat réf : 388938 - Le professionnel garantit et sécurise votre projet immobilier.
Frais notariés réduits !
DPE + A / GES + A
COPRO DE 11 LOTS D'HABITATION.

Copropriété de 11 lots - dont 11 lots habitation. ().

Charges annuelles : 900 euros.
Loubna PAJKIN (EI) Agent Commercial - Numéro RSAC : LYON 838642106 - .

Etat des risques et pollutions

Les informations sur les risques auxquels ce bien est exposé sont disponibles sur le site Géorisques : www.georisques.gouv.fr.

Caractéristiques du bien

Composition du bien

  • Type d'habitation : Appartement
  • Cuisine : Simple
  • Nombre de pièce(s) : 3
  • Nombre de chambre(s) : 2

Aménagement du bien

Extérieur

  • Terrasse : Non
  • Balcon : Non

Partie Commune

  • Ascenseur : Oui
  • Surface habitable : 73 m²

Informations sur la copropriété

  • Bien soumis au statut de la copropriété
  • Nombre de lots : 11
  • Quote part charges courantes : 900 €/an
  • Procédure en cours : Non

Localisation du bien

VENISSIEUX (69200) , RHONE (69) - AUVERGNE-RHÔNE-ALPES

Consommation énergétique

DPE non soumis
mention indiquée sous la responsabilité de l’agence immobilière

Nos professionnels vous accompagnent

Contactez notre agence !

44 Allée des Cinq Continents ZAC Le Chêne Ferré 44120 VERTOU

Appeler l’agence Tél : 07 63 41 05 93

* Champs obligatoires

Nous vous informons de l’existence de la liste d’opposition au démarchage téléphonique « BLOCTEL » sur laquelle vous pouvez vous inscrire (https://www.bloctel.gouv.fr).

En complétant le formulaire «CONTACTEZ NOTRE AGENCE », je reconnais expressément que je consens au traitement de mes données personnelles et que je dispose du droit de retirer mon consentement à tout moment en m'adressant à support@fnaim.fr.
En savoir plus sur la gestion de vos données et droits : consulter nos mentions légales, « article 5/ Données à caractère personnel ».

En envoyant ce message, vous acceptez les conditions d'utilisation du site. Plus d'infos