Fnaim.fr
Menu

Acheter

Visite virtuelle
Réf. BZH-VAN-101256-JC

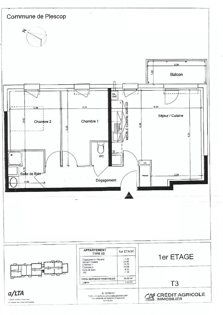
Achat Appartement 3 pièces 58m²

222 000 Honoraires charge vendeur

2 chambres Parking / Garage

Description du bien


PLESCOP- A 3 minutes de l'entrée de Vannes, en proximité des commerces et écoles, bel appartement de près de 60 m² avec balcon terrasse dans une petite résidence sécurisée avec deux places de parking dédiés.
L'entrée avec placard dessert un espace jour de près de 25 m² comprenant salon/séjour et cuisine aménagée et équipée donnant sur balcon terrasse sans vis à vis et un espace nuit comprenant 2 chambres, une salle d'eau et un WC.
Facile à vivre, vous disposez également d'un local à vélos et de la fibre.
Visite virtuelle disponible
Son emplacement à l'écart de la circulation, vous apporte calme et sérénité, tout en profitant des commerces et écoles à pied (moins de 500 mètres) et de la proximité de Vannes.

Etat des risques et pollutions

Les informations sur les risques auxquels ce bien est exposé sont disponibles sur le site Géorisques : www.georisques.gouv.fr.

Caractéristiques du bien

Composition du bien

  • Type d'habitation : Appartement
  • Cuisine : Type de cuisine Non communique m²
  • Nombre de pièce(s) : 3
  • Nombre de chambre(s) : 2

Aménagement du bien

Extérieur

  • Terrasse : Non
  • Balcon : Non

Partie Commune

  • Ascenseur : Non
  • Surface habitable : 58 m²
  • Parking : Oui

Informations sur la copropriété

  • Bien soumis au statut de la copropriété
  • Nombre de lots : 55
  • Quote part charges courantes : 1042 €/an
  • Procédure en cours : Non

Localisation du bien

Ce bien n'est pas géolocalisé, pour connaitre sa géolocalisation, merci de contacter l'agence.

Consommation énergétique

  • C (103 kWh/m² an)
    C (14 kgCO2/m².an)
    Plus d'info
    103
    14
    14
  • DPE réalisé après le 1er juillet 2021.
  • Entre 680 € TTC / an et 960 € TTC / an
    Non communiqué

Nos professionnels vous accompagnent

Contactez notre agence !

7 place de la République 56000 VANNES

Appeler l’agence Tél : 0297012020

* Champs obligatoires

Nous vous informons de l’existence de la liste d’opposition au démarchage téléphonique « BLOCTEL » sur laquelle vous pouvez vous inscrire (https://www.bloctel.gouv.fr).

En complétant le formulaire «CONTACTEZ NOTRE AGENCE », je reconnais expressément que je consens au traitement de mes données personnelles et que je dispose du droit de retirer mon consentement à tout moment en m'adressant à support@fnaim.fr.
En savoir plus sur la gestion de vos données et droits : consulter nos mentions légales, « article 5/ Données à caractère personnel ».

En envoyant ce message, vous acceptez les conditions d'utilisation du site. Plus d'infos