Fnaim.fr
Menu

Acheter

Visite virtuelle
Exclusivité
Réf. 1072

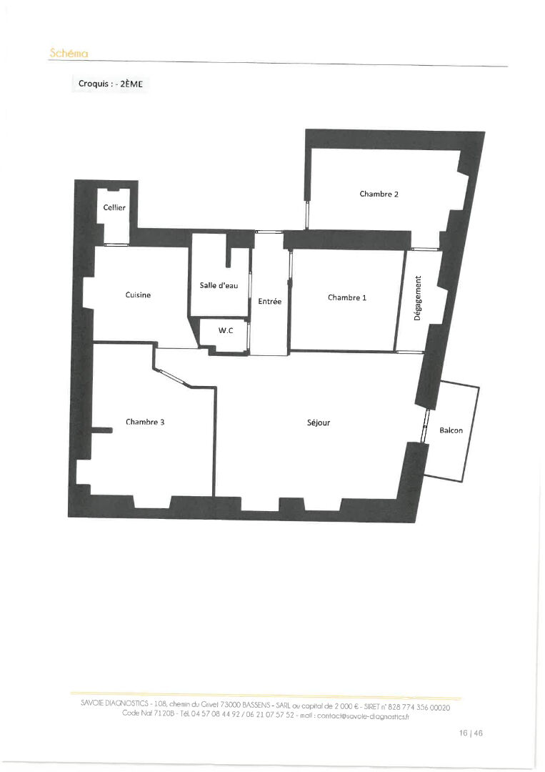
Achat Appartement 4 pièces 85m²

280 000 Honoraires charge vendeur

3 chambres

Description du bien


À vendre Rue Nicolas Parent (proche gare et ligne de bus)

Visite virtuelle disponible sur notre site internet !

Au 2eme étage d'un immeuble sans ascenseur, découvrez cet appartement de charme alliant le cachet de l'ancien (beaux parquets) et une belle luminosité.

Composé de trois chambres, d'une salle d'eau, et d'une cuisine équipée, il offre également un agréable balcon attenant au séjour, idéal pour profiter des beaux jours.

Autres atouts :
Chauffage individuel électrique
Cave et grenier pour plus de rangements
Place de stationnement dans la cour (un vrai plus en centre-ville !)Possibilité de louer une seconde place pour 50 euros par mois

Idéal premier achat ou colocation grâce à sa situation proche de la gare et des transports.
Copropriété de 22 lots d habitation, charges annuelles de 652 euros soit 55 euros par mois
Pour plus d'informations ou pour programmer une visite, contactez-nous dès maintenant !

Etat des risques et pollutions

Les informations sur les risques auxquels ce bien est exposé sont disponibles sur le site Géorisques : www.georisques.gouv.fr.

Caractéristiques du bien

Composition du bien

  • Type d'habitation : Appartement
  • Nombre de pièce(s) : 4
  • Nombre de chambre(s) : 3

Aménagement du bien

Extérieur

  • Terrasse : Non
  • Balcon : Non

Partie Commune

  • Ascenseur : Non
  • Surface habitable : 85 m²

Informations sur la copropriété

  • Bien soumis au statut de la copropriété
  • Nombre de lots : 53
  • Quote part charges courantes : 652 €/an
  • Procédure en cours : Non

Localisation du bien

Ce bien n'est pas géolocalisé, pour connaitre sa géolocalisation, merci de contacter l'agence.

Consommation énergétique

  • E (279 kWh/m² an)
    B (9 kgCO2/m².an)
    Plus d'info
    279
    9
    9
  • DPE réalisé après le 1er juillet 2021.
  • Entre 1820 € TTC / an et 2520 € TTC / an
    Non communiqué

Nos professionnels vous accompagnent

Contactez notre agence !

179 RUE MICHAUD 73000 CHAMBERY

Appeler l’agence Tél : 0479850201

* Champs obligatoires

Nous vous informons de l’existence de la liste d’opposition au démarchage téléphonique « BLOCTEL » sur laquelle vous pouvez vous inscrire (https://www.bloctel.gouv.fr).

En complétant le formulaire «CONTACTEZ NOTRE AGENCE », je reconnais expressément que je consens au traitement de mes données personnelles et que je dispose du droit de retirer mon consentement à tout moment en m'adressant à support@fnaim.fr.
En savoir plus sur la gestion de vos données et droits : consulter nos mentions légales, « article 5/ Données à caractère personnel ».

En envoyant ce message, vous acceptez les conditions d'utilisation du site. Plus d'infos