Fnaim.fr
Menu

Acheter

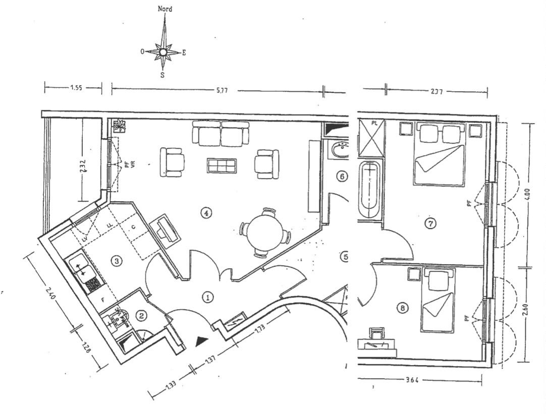
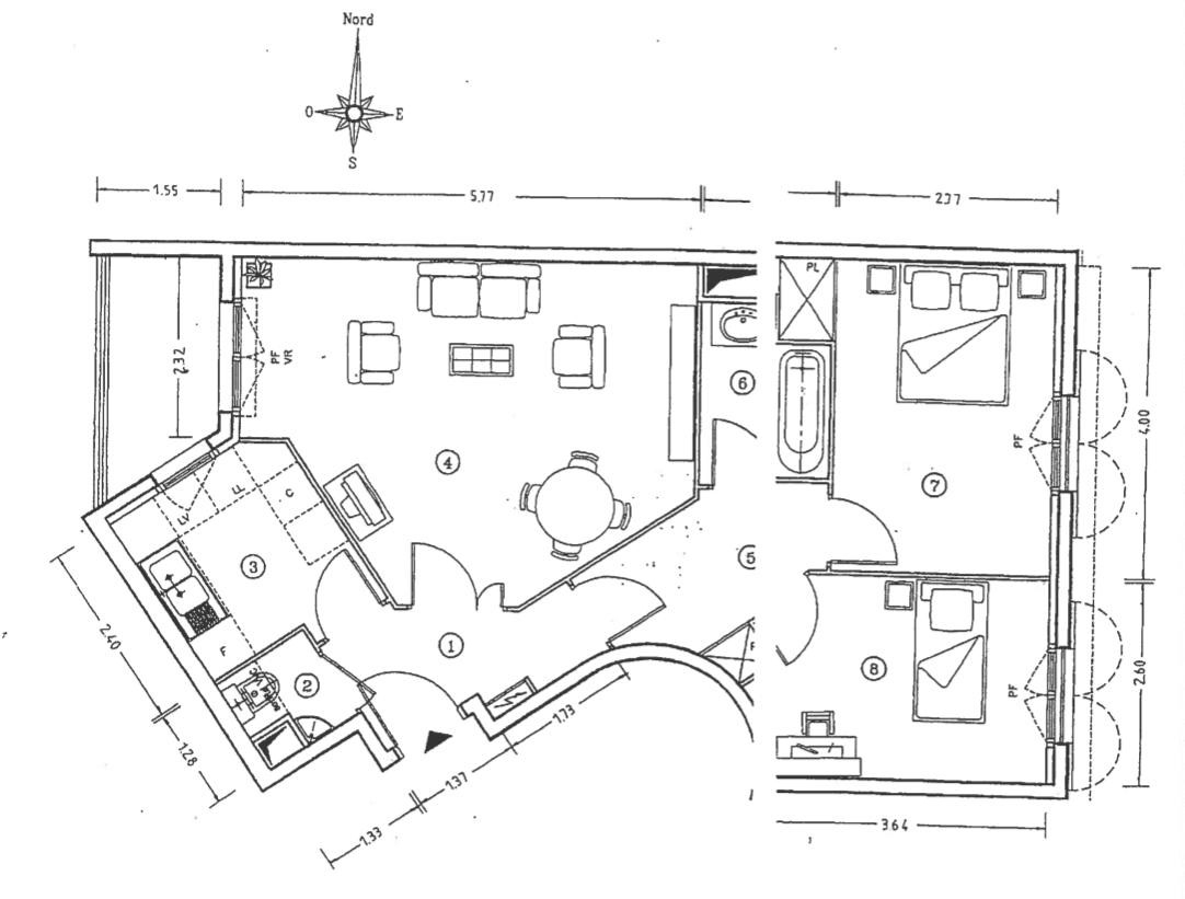
Achat Appartement 3 pièces 63m²

466 000 Honoraires charge vendeur

2 chambres Balcon Ascenseur Parking / Garage

Description du bien


Découvrez ce 3 PIECES en étage élevé d'une belle résidence de 1998 ravalée en 2024, situé au pied des commerces. Cet appartement entièrement parqueté est composé d'une entrée avec penderie , d'un séjour ouvrant sur un balcon exposé OUEST donnant sur le jardin de la résidence, une cuisine aménagée (possibilité américaine).

La partie nuit se compose d'un dégagement avec penderie, 2 chambres avec placard , d'une salle de bain et d'un WC séparé.
En annexe, Il est également doté d'une cave et d'un emplacement de parking .

Les charges comprennent Le chauffage et l'eau chaude qui sont collectifs urbains sous compteurs divisionnaires.

De plus, cet appartement est à proximité des écoles, crèches et du parc du Millénaire ainsi qu'à deux pas de La Défense. Les transports en commun sont facilement accessibles en 5 minutes : métro ligne 1, RER A, gare ligne L et G, RER E, tram T2
CALME- TRAVERSANT- RESIDENCE PRISÉE ET RAVALÉE - A visiter sans tarder !


Tiphaine ROUYRRE (EI) Agent Commercial - Numéro RSAC : 911728343 - NANTERRE.

Etat des risques et pollutions

Les informations sur les risques auxquels ce bien est exposé sont disponibles sur le site Géorisques : www.georisques.gouv.fr.

Caractéristiques du bien

Composition du bien

  • Type d'habitation : Appartement
  • Nombre de pièce(s) : 3
  • Nombre de chambre(s) : 2
  • Salles de bain : 1

Aménagement du bien

Extérieur

  • Terrasse : Non
  • Balcon : Oui

Partie Commune

  • Ascenseur : Oui
  • Surface habitable : 63 m²
  • Parking : Oui

Informations sur la copropriété

  • Bien soumis au statut de la copropriété
  • Nombre de lots : 616
  • Quote part charges courantes : 3228 €/an
  • Procédure en cours : Non

Localisation du bien

Ce bien n'est pas géolocalisé, pour connaitre sa géolocalisation, merci de contacter l'agence.

Consommation énergétique

  • D (216 kWh/m² an)
    B (6 kgCO2/m².an)
    Plus d'info
    216
    6
    6
  • DPE réalisé après le 1er juillet 2021.
  • Entre 860 € TTC / an et 1210 € TTC / an
    Non communiqué

Nos professionnels vous accompagnent

Contactez notre agence !

8 AVENUE MARCEAU 92400 COURBEVOIE

Appeler l’agence Tél : 0141168000

* Champs obligatoires

Nous vous informons de l’existence de la liste d’opposition au démarchage téléphonique « BLOCTEL » sur laquelle vous pouvez vous inscrire (https://www.bloctel.gouv.fr).

En complétant le formulaire «CONTACTEZ NOTRE AGENCE », je reconnais expressément que je consens au traitement de mes données personnelles et que je dispose du droit de retirer mon consentement à tout moment en m'adressant à support@fnaim.fr.
En savoir plus sur la gestion de vos données et droits : consulter nos mentions légales, « article 5/ Données à caractère personnel ».

En envoyant ce message, vous acceptez les conditions d'utilisation du site. Plus d'infos