Fnaim.fr
Menu

Acheter

Réf. 9201111893

Achat Maison 6 pièces 160m² FONTAINE SIMON 28240

149 000 Honoraires charge vendeur

4 chambres Jardin Parking / Garage

Description du bien

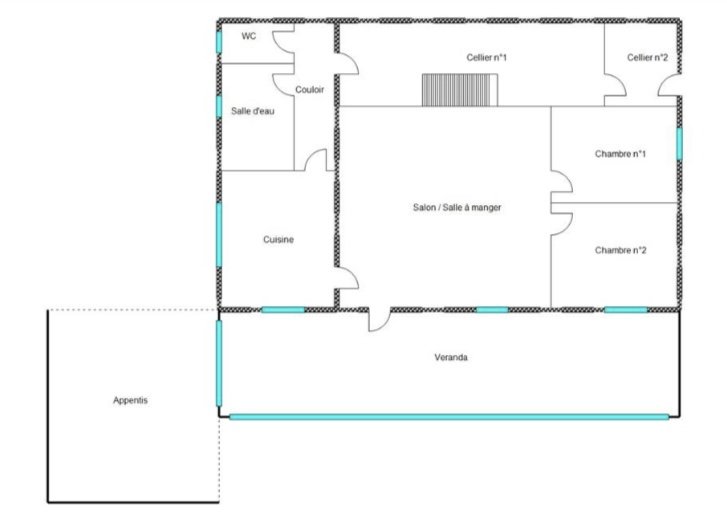
FONTAINE-SIMON (28240) - Au c?ur du Parc naturel régional du Perche, Maison de campagne d'environ 160 m2, en lisière de forêt.
- Au rez-de-chaussée, un salon-cheminée, une grande cuisine dinatoire, 2 CHAMBRES, une salle d'eau, des toilettes séparées. Belle VERANDA offrant un cadre de vie unique et une vue imprenable sur le jardin.
- Au 1er étage, 2 CHAMBRES, des toilettes séparées, un grenier à aménager.

Chauffage gaz de ville - Tout-à-l'égout (assainissement conforme) - TOITURE NEUVE (mars 2025)
A RENOVER - BEAU POTENTIEL

Jardin arboré de plus de 2 640 m2 au calme avec beaux arbres fruitiers (cerisier, noyer, poiriers, pommiers, ?)

DEPENDANCES, ATELIER - Carport 2 voitures
VUE DEGAGEE sur jardin et campagne.

Proche de toutes les commodités : commerces du village (boucherie, poste, épicerie, ? Camping et activités de loisirs proches (téléski nautique et parc aquatique)
Proche gare de La Loupe reliant Paris, à moins de 10 km, desservie par des TER depuis Paris Montparnasse, trajets d'environ 1h20 min pour Paris . Idéal pour rejoindre également Chartres, Dreux et l'agglomération eurélienne.
Bretoncelles (~12 km),
Courville-sur-Eure (~17 km),
Nogent-le-Rotrou (~25 km)
En voiture, environ 1h40 min de Paris

A voir très vite !

Pour toute demande de renseignements et visites, contactez Caroline LOGEAIS - 5 PIECES ET PLUS, 1ère agence immobilière spécialisée dans les biens familiaux de minimum 3 CHAMBRES (Paris, Ile-de-France / Bordeaux, Bassin d'Arcachon) www.5piecesetplus.com (réf. 9201111893) Prix TTC et Honoraires à charge vendeur TTC .
Prix TTC et Honoraires à charge vendeur TTC

Les informations sur les risques auxquels ce bien est exposé sont disponibles sur le site georisques.gouv.fr

Etat des risques et pollutions

Les informations sur les risques auxquels ce bien est exposé sont disponibles sur le site Géorisques : www.georisques.gouv.fr.

Caractéristiques du bien

Composition du bien

  • Type d'habitation : Maison
  • Nombre de chambres : 4
  • Cuisine : Aménagée

Aménagement du bien

  • Cave : Non
  • Garage / Parking : Oui
    • Surface habitable : 160 m²
    • Parking : Oui

    Localisation du bien

    FONTAINE SIMON (28240) , EURE-ET-LOIR (28) - CENTRE-VAL-DE-LOIRE

    Ce bien n'est pas géolocalisé, pour connaitre sa géolocalisation, merci de contacter l'agence.

    Consommation énergétique

    • E (312 kWh/m² an)
      E (68 kgCO2/m².an)
      Plus d'info
      312
      68
      68
    • DPE réalisé après le 1er juillet 2021.
    • Entre 3773 € TTC / an et 5105 € TTC / an
      Non communiqué

    Nos professionnels vous accompagnent

    Contactez notre agence !

    3 BIS RUE LOUISE MICHEL 92300 LEVALLOIS PERRET

    Appeler l’agence Tél : 06 63 55 66 08

    * Champs obligatoires

    Nous vous informons de l’existence de la liste d’opposition au démarchage téléphonique « BLOCTEL » sur laquelle vous pouvez vous inscrire (https://www.bloctel.gouv.fr).

    En complétant le formulaire «CONTACTEZ NOTRE AGENCE », je reconnais expressément que je consens au traitement de mes données personnelles et que je dispose du droit de retirer mon consentement à tout moment en m'adressant à support@fnaim.fr.
    En savoir plus sur la gestion de vos données et droits : consulter nos mentions légales, « article 5/ Données à caractère personnel ».

    En envoyant ce message, vous acceptez les conditions d'utilisation du site. Plus d'infos