Fnaim.fr
Menu

Acheter

Réf. UF-A35268MAA74

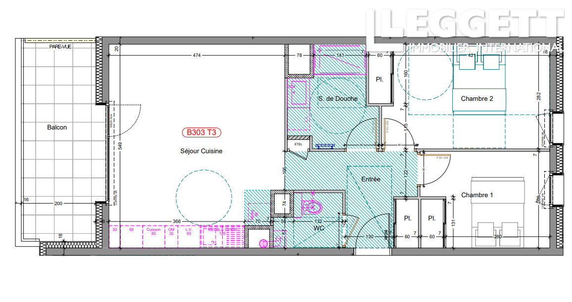
Achat Appartement 3 pièces 61m² THONON LES BAINS 74200

325 500 Honoraires charge vendeur

2 chambres

Description du bien

A35268MAA74 - Cet appartement de nouvelle construction est lumineux et aéré avec une date d'achèvement prévue pour fin juin 2025 et est donc bientôt prêt à emménager. Avec 2 chambres, il est idéal pour une maison familiale ou dans un emplacement idéal pour un investissement ou une propriété locative. Genève se trouve à proximité et Lausanne est accessible via le service de ferry.

Il ne reste que quelques appartements restants dans ce développement, contactez-nous dès maintenant pour plus d'informations.

Les informations sur les risques auxquels ce bien est exposé sont disponibles sur le site Géorisques : https://www.georisques.gouv.fr

Etat des risques et pollutions

Les informations sur les risques auxquels ce bien est exposé sont disponibles sur le site Géorisques : www.georisques.gouv.fr.

Caractéristiques du bien

Composition du bien

  • Type d'habitation : Appartement
  • Cuisine : Simple
  • Nombre de pièce(s) : 3
  • Nombre de chambre(s) : 2
  • Salles de bain : 1

Aménagement du bien

Extérieur

  • Terrasse : Non
  • Balcon : Non

Partie Commune

  • Ascenseur : Non
  • Surface habitable : 61 m²

Localisation du bien

THONON LES BAINS (74200) , HAUTE-SAVOIE (74) - AUVERGNE-RHÔNE-ALPES

Ce bien n'est pas géolocalisé, pour connaitre sa géolocalisation, merci de contacter l'agence.

Consommation énergétique

DPE non soumis
mention indiquée sous la responsabilité de l’agence immobilière

Nos professionnels vous accompagnent

Contactez notre agence !

42 RUE DE RIBERAC 24340 LA ROCHEBEAUCOURT ET ARGENTINE

Appeler l’agence Tél : 05 53 56 62 54

* Champs obligatoires

Nous vous informons de l’existence de la liste d’opposition au démarchage téléphonique « BLOCTEL » sur laquelle vous pouvez vous inscrire (https://www.bloctel.gouv.fr).

En complétant le formulaire «CONTACTEZ NOTRE AGENCE », je reconnais expressément que je consens au traitement de mes données personnelles et que je dispose du droit de retirer mon consentement à tout moment en m'adressant à support@fnaim.fr.
En savoir plus sur la gestion de vos données et droits : consulter nos mentions légales, « article 5/ Données à caractère personnel ».

En envoyant ce message, vous acceptez les conditions d'utilisation du site. Plus d'infos