Fnaim.fr
Menu

Acheter

Réf. 392039KPOT2802KPOT

Achat Terrain 732m² SAULZOIR 59227

85 590 Honoraires charge vendeur

Description du bien

Encore une EXCLUSIVITÉ:

Découvrez ce magnifique terrain à bâtir d'une superficie de 732 m², idéalement situé sur la charmante commune de Saulzoir.

Les points forts :
-Superficie : 732 m², offrant de nombreuses possibilités pour votre future construction.
-Localisation : Proche du centre-ville et des transports.
-Environnement : Cadre calme et agréable, parfait pour un projet familial.
-Viabilisation : Eau en attente à l'entrée du terrain, réseaux électrique limite de terrain.
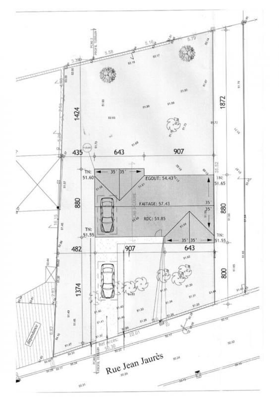
Façade: 22 mètres
Largeur: 20 mètres
Profondeur: 37 mètres
Arrivée d'eau déjà installée en façade

Très bien situé ( hors lotissement ) sur Saulzoir 59227, 43 rue Jean Jaurès

Ce terrain est une belle opportunité pour concrétiser votre projet immobilier dans un secteur prisé.

Prix : 85590 euros FAI charge vendeur
Justificatif de capacité financière requis avant toute visite.

Pour plus d'informations ou pour organiser une visite, contactez-moi :

06/47/44/65/59
k.potiron@proprietes-privees.com

Votre projet immobilier, ma priorité !

Pour visiter et vous accompagner dans votre projet, contactez Karl POTIRON, au 0647446559 ou, par courriel à k.potiron@proprietes-privees.com

Selon l'article L.561.5 du Code Monétaire et Financier, pour l'organisation de la visite, la présentation d'une pièce d'identité vous sera demandée.
Cette présente annonce a été rédigée sous la responsabilité éditoriale de Karl POTIRON agissant sous le statut d'agent commercial auprès de SAS PROPRIETES PRIVEES. Cette vente est garantie 12 mois.

Cette présente annonce a été rédigée sous la responsabilité éditoriale de Karl POTIRON agissant en qualité de conseiller immobilier indépendant sous portage salarial auprès de la SAS PROPRIETES PRIVEES , au capital de 44 920 euros, ZAC LE CHÊNE FERRÉ - 44 ALLÉE DES CINQ CONTINENTS 44120 VERTOU; SIRET 487 624 777 00040, RCS Nantes. Carte Professionnelle Transactions sur immeubles et fonds de commerce (T) et Gestion immobilière (G) n°CPI 4401 2016 000 010 388 délivrée par la CCI Nantes - Saint Nazaire. Compte séquestre n°30932508467 BPA SAINT-SEBASTIEN-SUR-LOIRE (44230). Garantie GALIAN - 89 rue de la Boétie, 75008 Paris - n°28137 J pour 2 000 000 euros pour T et 120 000 euros pour G. Assurance responsabilité civile professionnelle par MMA Entreprise n° de police 120.137.405

Mandat réf : 392039. - Le professionnel garantit et sécurise votre projet immobilier.

Etat des risques et pollutions

Les informations sur les risques auxquels ce bien est exposé sont disponibles sur le site Géorisques : www.georisques.gouv.fr.

Caractéristiques du bien

Composition du bien

  • Type de bien : Terrain

Localisation du bien

SAULZOIR (59227) , NORD (59) - HAUTS-DE-FRANCE

Ce bien n'est pas géolocalisé, pour connaitre sa géolocalisation, merci de contacter l'agence.

Nos professionnels vous accompagnent

Contactez notre agence !

44 Allée des Cinq Continents ZAC Le Chêne Ferré 44120 VERTOU

Appeler l’agence Tél : 06 47 44 65 59

* Champs obligatoires

Nous vous informons de l’existence de la liste d’opposition au démarchage téléphonique « BLOCTEL » sur laquelle vous pouvez vous inscrire (https://www.bloctel.gouv.fr).

En complétant le formulaire «CONTACTEZ NOTRE AGENCE », je reconnais expressément que je consens au traitement de mes données personnelles et que je dispose du droit de retirer mon consentement à tout moment en m'adressant à support@fnaim.fr.
En savoir plus sur la gestion de vos données et droits : consulter nos mentions légales, « article 5/ Données à caractère personnel ».

En envoyant ce message, vous acceptez les conditions d'utilisation du site. Plus d'infos