Fnaim.fr
Menu

Acheter

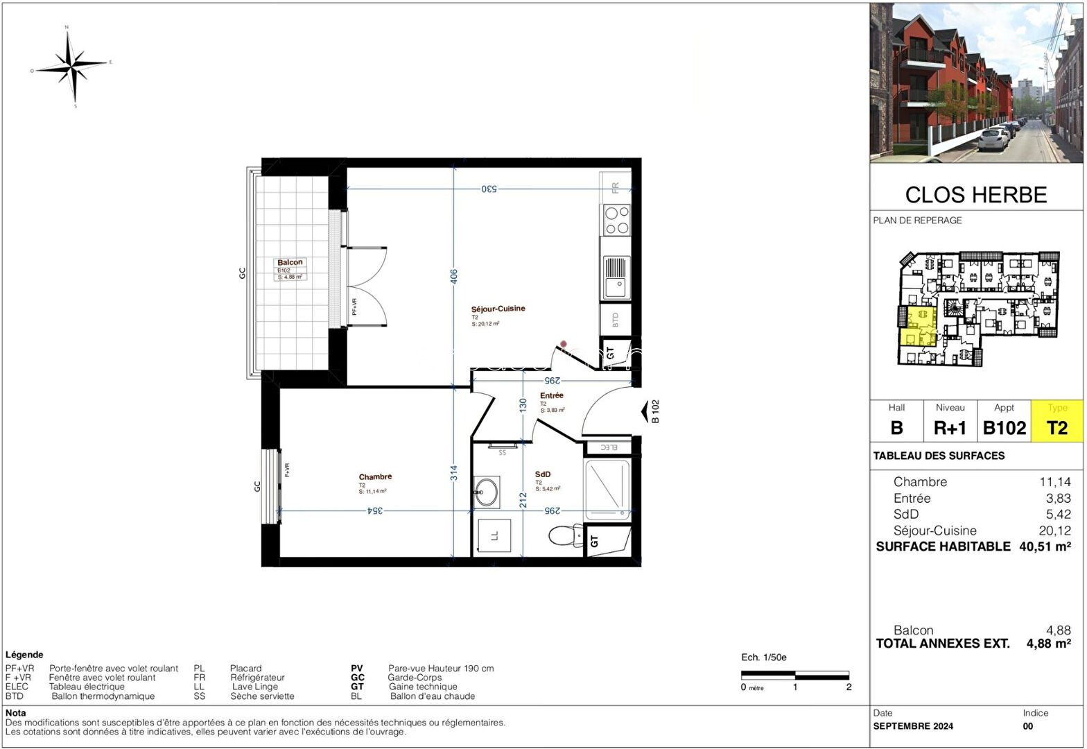
Achat Appartement 2 pièces 42m² LE PETIT QUEVILLY 76140

138 000 Honoraires charge vendeur

1 chambre Ascenseur Parking / Garage

Description du bien


Vos agences ESPACE IMMO vous proposent à la vente ces appartements T2 dans une nouvelle résidence "CLOS HERBÉ", située sur Rouen Rive Gauche, à Petit Quevilly, à proximité de toutes commodités, écoles et commerces.

Cette résidence se compose de 22 logements avec un parking en sous-sol permettant le stationnement des résidents. Elle se situe à proximité du parc des Chartreux, adapté pour le sport, la détente et la promenade et dans une petite rue au calme. Les habitants bénéficieront d'un environnement apaisant grâce à un îlot central de verdure engazonné et arboré.

Nous vous proposons plusieurs appartements comprenant : une entrée desservant un spacieux séjour-cuisine idéal pour recevoir vos convives, une belle chambre, une salle d'eau avec douche et WC. Vous disposerez d'un balcon afin de profiter des beaux jours et d'une place de parking en sous-sol sécurisé pour faciliter votre stationnement.

Date de livraison prévue pour le 3ème trimestre 2026 !
!! FRAIS DE NOTAIRE REDUITS !!
Un autre appartement studio et appartements T3 sont disponibles sous les références respectives 9368 et 9370.
A partir de 138 000 Euro

Contactez votre agence ESPACE IMMO - Pauline WEYRIG au 02.35.76.96.23 pour vous présenter ce beau projet.

Les informations sur les risques auxquels ce bien est exposé sont disponibles sur le site Géorisques : www.georisques.gouv.fr.

Etat des risques et pollutions

Les informations sur les risques auxquels ce bien est exposé sont disponibles sur le site Géorisques : www.georisques.gouv.fr.

Caractéristiques du bien

Composition du bien

  • Type d'habitation : Appartement
  • Cuisine : Type de cuisine Non communique
  • Nombre de pièce(s) : 2
  • Nombre de chambre(s) : 1

Aménagement du bien

Extérieur

  • Terrasse : Non
  • Balcon : Non

Partie Commune

  • Ascenseur : Oui
  • Surface habitable : 42 m²
  • Parking : Oui

Localisation du bien

LE PETIT QUEVILLY (76140) , SEINE-MARITIME (76) - NORMANDIE

Ce bien n'est pas géolocalisé, pour connaitre sa géolocalisation, merci de contacter l'agence.

Consommation énergétique

DPE non soumis
mention indiquée sous la responsabilité de l’agence immobilière

Nos professionnels vous accompagnent

Contactez notre agence !

2 PLACE ARISTIDE BRIAND 76960 NOTRE DAME DE BONDEVILLE

Appeler l’agence Tél : 0235769623

* Champs obligatoires

Nous vous informons de l’existence de la liste d’opposition au démarchage téléphonique « BLOCTEL » sur laquelle vous pouvez vous inscrire (https://www.bloctel.gouv.fr).

En complétant le formulaire «CONTACTEZ NOTRE AGENCE », je reconnais expressément que je consens au traitement de mes données personnelles et que je dispose du droit de retirer mon consentement à tout moment en m'adressant à support@fnaim.fr.
En savoir plus sur la gestion de vos données et droits : consulter nos mentions légales, « article 5/ Données à caractère personnel ».

En envoyant ce message, vous acceptez les conditions d'utilisation du site. Plus d'infos