Fnaim.fr
Menu

Acheter

Réf. getkey_4602

Achat Appartement 5 pièces 114m² PARIS 5ème

1 000 000 Honoraires charge vendeur

3 chambres

Description du bien

En exclusivité, ce bien est proposé aux enchères immobilières en ligne*.

Prix de départ HAI : 1 OOO 000 €

Début des offres d'achat en ligne : 09/11/25 à 9H

Fin des offres d'achat en ligne : 09 /11/25 à 19H

Palier : 10 000 €

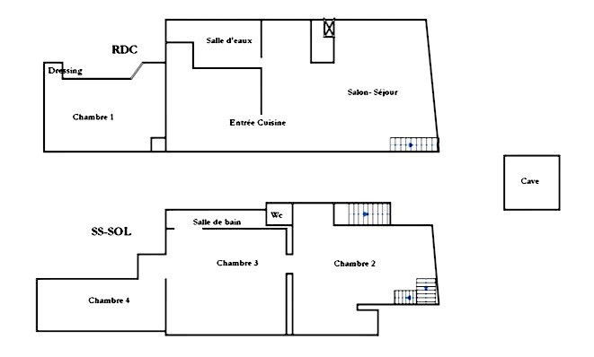
Dans un immeuble ancien de la Montagne Sainte-Geneviève.
Beau 5 pièces en souplex (RDC + sous-sol) de 114m2 Carrez (surface utile 128m2) situé dans le quartier latin, à proximité du lycée Henri IV, de l'église Saint-Etienne-De-Mont, du Panthéon, des universités, des transports en commun et des commerces.

Cet appartement spacieux, ancien club de jazz, offre un agencement atypique
avec, au rez-de-chaussée, dans un esprit loft , une entrée, un très grand salon d'une hauteur sous plafond de 3m, une cuisine ouverte avec poutres et pierres apparentes, une chambre/bureau sous verrière (ancienne cour de l'immeuble), une salle d'eau (lavabo, douche, toilettes). Carrelage au sol.

Au sous-sol, intégralement parqueté de chêne, deux belles chambres voûtées, un très grand dressing (pouvant constituer une 4ème chambre), une salle de bain avec baignoire à remous, des toilettes indépendantes, un dégagement. Ce sous-sol est complètement sain, non humide et très bien ventilé.
L'appartement bénéficie d'une cave au deuxième sous-sol.
Radiateurs électriques à inertie.
Place de stationnement PMR à deux pas.
L'appartement est raccordé à la fibre.
Le ravalement a moins de 10 ans, les parties communes ont bénéficié d'une belle restauration.

DPE : E / GES : B
Date de réalisation des diagnostics : janvier 2023
Charges de copropriété : 860 €/trimestre
Taxe foncière: 2067 €
Bus : 89, 75, 63, 24, 84, 86, 87
Métros : 10, 7
Marchés : Monge, Maubert

"La participation à cette enchère est soumise à agrément préalable. Toutes les offres seront transmises au vendeur.
Une offre en ligne ne constitue pas une offre ferme et définitive au sens de l'article 1114 du Code Civil, mais une
simple intention d'achat.
Le prix affiché correspond à un prix de première offre possible honoraires de négociation inclus."

Bien présenté par Agences de France par délégation.
Agences de France - SIREN : 899413603 - Titulaire de la carte T : 29012021000000009 non habilité à percevoir des fonds

Etat des risques et pollutions

Les informations sur les risques auxquels ce bien est exposé sont disponibles sur le site Géorisques : www.georisques.gouv.fr.

Caractéristiques du bien

Composition du bien

  • Type d'habitation : Appartement
  • Cuisine : 337
  • Nombre de pièce(s) : 5
  • Nombre de chambre(s) : 3
  • Salles de bain : 1

Aménagement du bien

Extérieur

  • Terrasse : Non
  • Balcon : Non

Partie Commune

  • Ascenseur : Non
  • Surface habitable : 114 m²

Localisation du bien

PARIS 05 (75005) , PARIS (75) - ILE-DE-FRANCE

Ce bien n'est pas géolocalisé, pour connaitre sa géolocalisation, merci de contacter l'agence.

Consommation énergétique

  • E (269 kWh/m² an)
    B (8 kgCO2/m².an)
    Plus d'info
    269
    8
    8
  • DPE réalisé après le 1er juillet 2021.
  • Entre 2080 € TTC / an et 2850 € TTC / an
    Non communiqué

Nos professionnels vous accompagnent

Contactez notre agence !

38 rue Jim Sevellec 29200 BREST

Appeler l’agence Tél : 07 88 07 88 54

* Champs obligatoires

Nous vous informons de l’existence de la liste d’opposition au démarchage téléphonique « BLOCTEL » sur laquelle vous pouvez vous inscrire (https://www.bloctel.gouv.fr).

En complétant le formulaire «CONTACTEZ NOTRE AGENCE », je reconnais expressément que je consens au traitement de mes données personnelles et que je dispose du droit de retirer mon consentement à tout moment en m'adressant à support@fnaim.fr.
En savoir plus sur la gestion de vos données et droits : consulter nos mentions légales, « article 5/ Données à caractère personnel ».

En envoyant ce message, vous acceptez les conditions d'utilisation du site. Plus d'infos