Fnaim.fr
Menu

Acheter

Exclusivité
Réf. 9845-T3

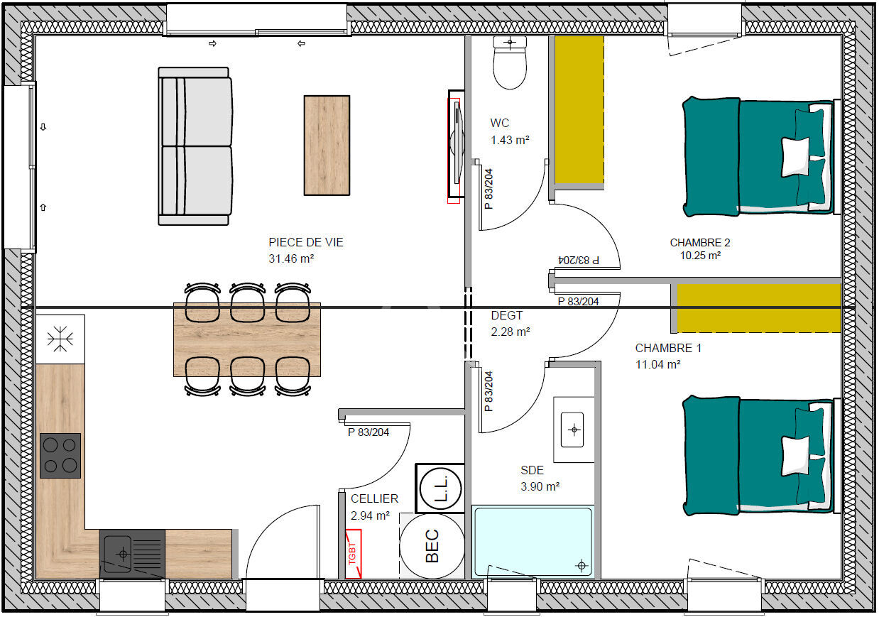
Achat Maison 3 pièces 63m²

197 000 Honoraires charge vendeur

2 chambres Jardin

Description du bien


NOTRE DAME DE MONTS - Vous avez un projet de construction ?
Face à la forêt domaniale, à moins de 3 km du centre de Notre Dame de Monts et à 2 km de la mer en traversant la forêt.
Dans un lotissement de 33 parcelles, nous vous proposons ce projet de maison neuve, en lotissement, d'environ 63 m². Elle se compose d'une pièce de vie, de deux chambres et d'une salle d'eau et WC indépendant.
Le tout sur un terrain de 382 m².
Documentation complète sur demande.
Réf. 9845-T3G
Les informations sur les risques auxquels ce bien est exposé sont disponibles sur le site Géorisques : www.georisques.gouv.fr (C.envir art. R 125-25, I modifié)
Pour toute information complémentaire ou visite, contactez-nous au 02.52.700.116 ou par mail notredame@ladresse.com.

Etat des risques et pollutions

Les informations sur les risques auxquels ce bien est exposé sont disponibles sur le site Géorisques : www.georisques.gouv.fr.

Caractéristiques du bien

Composition du bien

  • Type d'habitation : Maison
  • Nombre de chambres : 2
  • Cuisine : Type de cuisine Non communique

Aménagement du bien

  • Cave : Non
  • Garage / Parking : Non
    • Surface habitable : 63 m²

    Localisation du bien

    Ce bien n'est pas géolocalisé, pour connaitre sa géolocalisation, merci de contacter l'agence.

    Consommation énergétique

    DPE non soumis
    mention indiquée sous la responsabilité de l’agence immobilière

    Nos professionnels vous accompagnent

    Contactez notre agence !

    5, rue de Saint Jean de Monts 85690 NOTRE DAME DE MONTS

    Appeler l’agence Tél : 0252700116

    * Champs obligatoires

    Nous vous informons de l’existence de la liste d’opposition au démarchage téléphonique « BLOCTEL » sur laquelle vous pouvez vous inscrire (https://www.bloctel.gouv.fr).

    En complétant le formulaire «CONTACTEZ NOTRE AGENCE », je reconnais expressément que je consens au traitement de mes données personnelles et que je dispose du droit de retirer mon consentement à tout moment en m'adressant à support@fnaim.fr.
    En savoir plus sur la gestion de vos données et droits : consulter nos mentions légales, « article 5/ Données à caractère personnel ».

    En envoyant ce message, vous acceptez les conditions d'utilisation du site. Plus d'infos