Fnaim.fr
Menu

Appartement 4 pièces 79m² VENISSIEUX 69200 VENISSIEUX
Réf. 4901029309

Achat Appartement 4 pièces 79m² VENISSIEUX 69200

199 000 Honoraires charge vendeur

3 chambres Balcon Ascenseur Parking / Garage

Description du bien

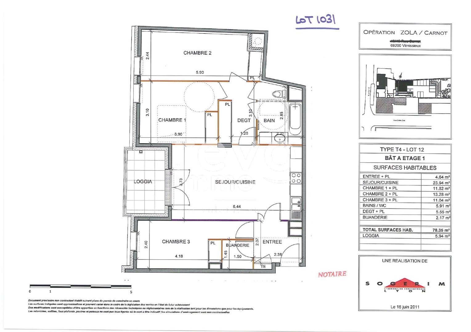
Vénissieux Village, rue Carnot, dans une résidence de 2012, venez découvrir cet appartement rénové de type 4 et de 79m2 avec une loggia de 6m2 orientée Sud-Ouest, au 1er étage avec ascenseur.

Il se compose d'une pièce de vie de 30m2 avec cuisine équipée US, de 3 chambres avec placards (9, 12 et 13m2), d'une salle d'eau avec douche à l'italienne (adaptée pour baignoire sur roulettes) et d'un WC séparé.

Un box en sous-sol sera proposé en sus.

Résidence en norme BBC avec isolation par l'exterieur, panneaux solaires sur le toit, et avec local vélo.
Les charges comprennent l'eau, le chauffage et l'entretien des communs.

Vous serez à deux pas des commerces (restaurants, alimentaires, etc...), des écoles (via bus pour le collège ou à pied pour l'école maternelle et élémentaire) et de Lyon via TCL (C12 en bas de la résidence et métro D à 10min). Le prochain Tram T10 passera devant la résidence.

SAS REVO IMMO - CHAGNARD Valérian EI - 06 03 89 60 52 - Plus d'informations sur www.revo.immo (réf. 4901029309). Agent commercial RSAC BOURG-EN-BRESSE 880 152 863 Bien soumis au statut juridique de la Copropriété. Nb de lots : 30. Charges annuelles de copropriété (Montant moyen annuel quote-part du budget prévisionnel vendeur) : 3 000 €. Pas de procédure en cours.
- Honoraires à la charge du vendeur - Les informations sur les risques auxquels ce bien est exposé sont disponibles sur le site Géorisques : https://www.georisques.gouv.fr/. Surface CARREZ : 79 m²

Etat des risques et pollutions

Les informations sur les risques auxquels ce bien est exposé sont disponibles sur le site Géorisques : www.georisques.gouv.fr.

Caractéristiques du bien

Composition du bien

  • Type d'habitation : Appartement
  • Cuisine : 18
  • Nombre de pièce(s) : 4
  • Nombre de chambre(s) : 3

Aménagement du bien

Extérieur

  • Terrasse : Non
  • Balcon : Oui

Partie Commune

  • Ascenseur : Oui
  • Surface habitable : 79 m²
  • Parking : Oui

Informations sur la copropriété

  • Bien soumis au statut de la copropriété
  • Nombre de lots : 30
  • Quote part charges courantes : 3000 €/an
  • Procédure en cours : Non

Localisation du bien

VENISSIEUX (69200) , RHONE (69) - AUVERGNE-RHÔNE-ALPES

Ce bien n'est pas géolocalisé, pour connaitre sa géolocalisation, merci de contacter l'agence.

Consommation énergétique

  • C (115 kWh/m² an)
    C (21 kgCO2/m².an)
    Plus d'info
    115
    21
    21
  • DPE réalisé après le 1er juillet 2021.
  • Entre 530 € TTC / an et 770 € TTC / an
    01/01/2021

Nos professionnels vous accompagnent

Contactez notre agence !

4 rue des Grands Champs Parc de Lanserre 49610 JUIGNE SUR LOIRE

Appeler l’agence Tél : 02 52 35 24 62

* Champs obligatoires

Nous vous informons de l’existence de la liste d’opposition au démarchage téléphonique « BLOCTEL » sur laquelle vous pouvez vous inscrire (https://www.bloctel.gouv.fr).

En complétant le formulaire «CONTACTEZ NOTRE AGENCE », je reconnais expressément que je consens au traitement de mes données personnelles et que je dispose du droit de retirer mon consentement à tout moment en m'adressant à support@fnaim.fr.
En savoir plus sur la gestion de vos données et droits : consulter nos mentions légales, « article 5/ Données à caractère personnel ».

En envoyant ce message, vous acceptez les conditions d'utilisation du site. Plus d'infos