Fnaim.fr
Menu

Acheter

Réf. 63_1883

Achat Local commercial 255m² CLERMONT FERRAND 63000

369 150 Honoraires charge acquéreur inclus

Description du bien

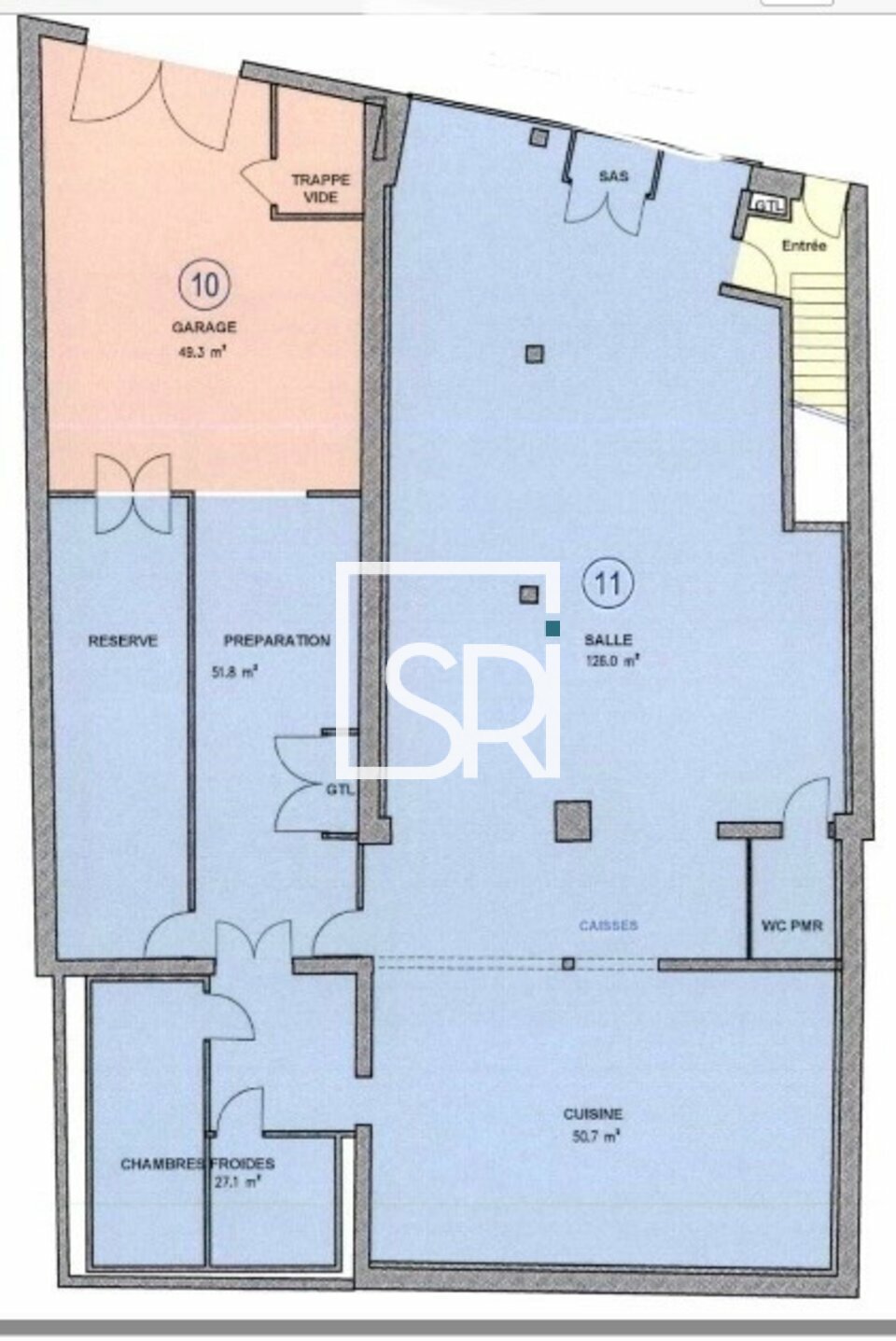
Notre agence Conseil en Immobilier d'Entreprise vous présente à la vente un local commercial d'environ 255 m², situé en centre-ville de Clermont-Ferrand.Une opportunité rare pour un investissement de qualité !Emplacement : Situé dans l'une des rues les plus fréquentées de Clermont-Ferrand, ce local bénéficie d'une visibilité exceptionnelle grâce à un fort passage piéton et routier. Entouré de commerces dynamiques, de services et de restaurants, il constitue un atout majeur pour toute activité.Descriptif du bien :Surface totale : 255 m² modulables selon vos besoins.Garage attenant : 49 m².Local vide, prêt à être aménagé.Accessibilité optimale : transports en commun à proximité, stationnement facile.Potentiel d'exploitation :Idéal pour commerce de détail, restaurant, salon, studio ou bureaux.Forte attractivité commerciale.Local rare sur le marché, offrant de multiples possibilités d'aménagement.Ne manquez pas cette occasion unique de vous implanter au c?ur de Clermont-Ferrand avec un local à fort potentiel !Retrouvez une partie de nos biens sur notre site SRI et créez vos alertes personnalisées.

Etat des risques et pollutions

Les informations sur les risques auxquels ce bien est exposé sont disponibles sur le site Géorisques : www.georisques.gouv.fr.

Caractéristiques du bien

Composition du bien

  • Surface totale : 255 m²

Consommation énergétique

Absence de DPE

Nos professionnels vous accompagnent

Contactez notre agence !

21 Rue de Sarliève centre d'affaires du Zénith " Le Triangle" 63800 COURNON D AUVERGNE

Appeler l’agence Tél : 04 73 44 92 24

* Champs obligatoires

Nous vous informons de l’existence de la liste d’opposition au démarchage téléphonique « BLOCTEL » sur laquelle vous pouvez vous inscrire (https://www.bloctel.gouv.fr).

En complétant le formulaire «CONTACTEZ NOTRE AGENCE », je reconnais expressément que je consens au traitement de mes données personnelles et que je dispose du droit de retirer mon consentement à tout moment en m'adressant à support@fnaim.fr.
En savoir plus sur la gestion de vos données et droits : consulter nos mentions légales, « article 5/ Données à caractère personnel ».

En envoyant ce message, vous acceptez les conditions d'utilisation du site. Plus d'infos