Fnaim.fr
Menu

Acheter

Réf. 497.DPP

Achat Appartement 3 pièces 68m² CORMELLES LE ROYAL 14123

244 900 Honoraires charge vendeur

2 chambres Balcon Parking / Garage

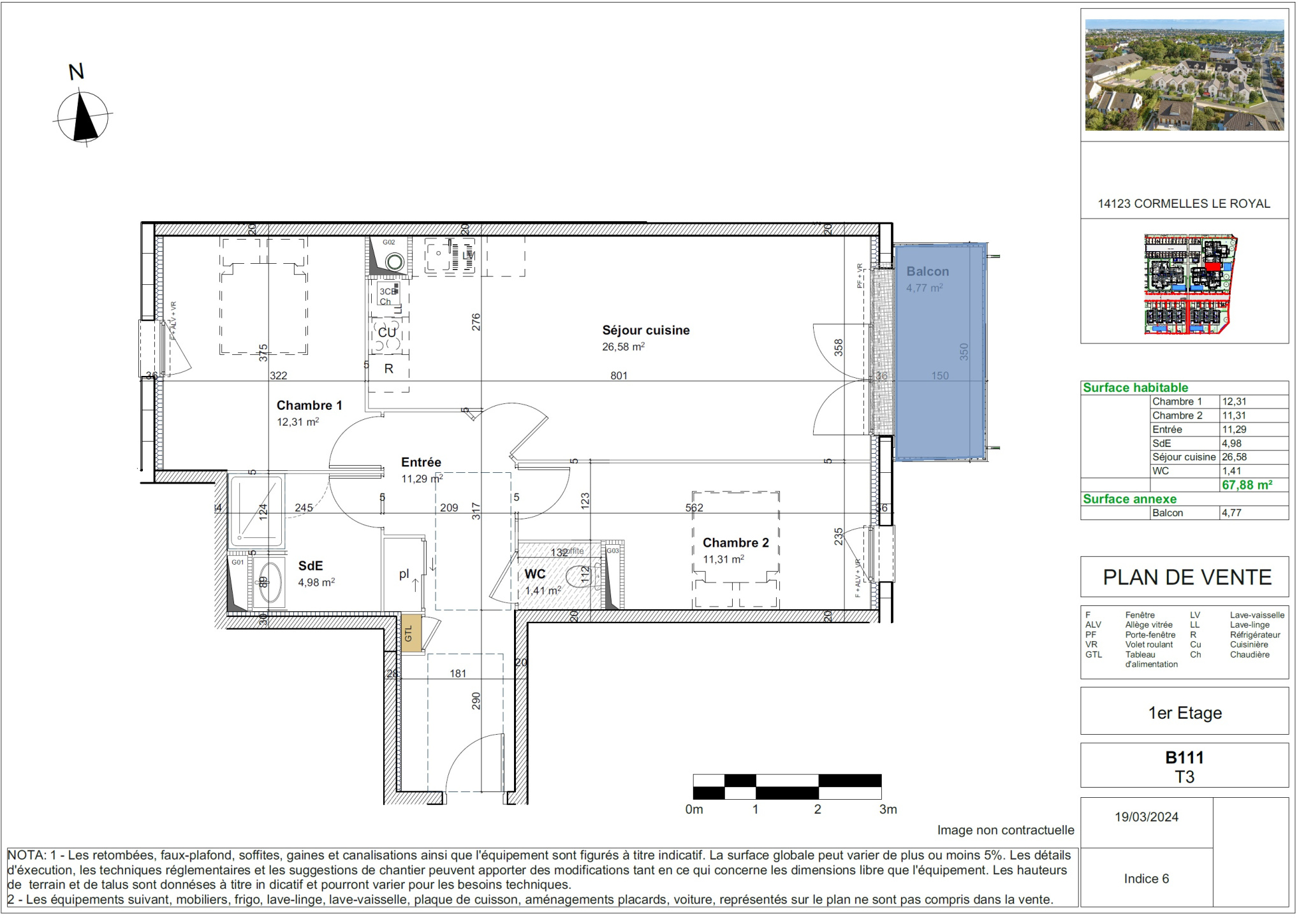
Description du bien

Nuances Immobilières vous propose à Cormelles le Royal centre dans un bel environnement clos de murs, et dans un ensemble résidentiel composé de 7 maisons et de 38 appartements, un appartement 3Pièces de 68m2 profitant d'une exposition Est et Ouest.
L'appartement situé au 1er étage de la résidence se présente par une pièce de vie de 26m2 ouverte sur l'extérieur, deux chambres dont une grande de plus de 11m2, une salle d'eau et un wc indépendant.
Deux stationnements compris dans le prix.
Hall d'entrée décoré et sécurisé.
Local vélo.
Dernières normes phoniques et thermiques.
DPE :B
Bel emplacement à proximité immédiate de tous les commerces, transports en commun, et écoles
Visite possible
'Les informations sur les risques auxquels ce bien est exposé sont disponibles sur le site Géorisques : www.georisques.gouv.fr'.

Etat des risques et pollutions

Les informations sur les risques auxquels ce bien est exposé sont disponibles sur le site Géorisques : www.georisques.gouv.fr.

Caractéristiques du bien

Composition du bien

  • Type d'habitation : Appartement
  • Nombre de pièce(s) : 3
  • Nombre de chambre(s) : 2

Aménagement du bien

Extérieur

  • Terrasse : Non
  • Balcon : Oui

Partie Commune

  • Ascenseur : Non
  • Surface habitable : 68 m²
  • Parking : Oui

Localisation du bien

CORMELLES LE ROYAL (14123) , CALVADOS (14) - NORMANDIE

Ce bien n'est pas géolocalisé, pour connaitre sa géolocalisation, merci de contacter l'agence.

Consommation énergétique

  • A (49 kWh/m² an)
    B (9 kgCO2/m².an)
    Plus d'info
    49
    9
    9
  • DPE réalisé après le 1er juillet 2021.
  • Entre 385 € TTC / an et 521 € TTC / an
    01/01/2023

Nos professionnels vous accompagnent

Contactez notre agence !

10 rue de l'Oratoire 14000 CAEN

Appeler l’agence Tél : 0231084040

* Champs obligatoires

Nous vous informons de l’existence de la liste d’opposition au démarchage téléphonique « BLOCTEL » sur laquelle vous pouvez vous inscrire (https://www.bloctel.gouv.fr).

En complétant le formulaire «CONTACTEZ NOTRE AGENCE », je reconnais expressément que je consens au traitement de mes données personnelles et que je dispose du droit de retirer mon consentement à tout moment en m'adressant à support@fnaim.fr.
En savoir plus sur la gestion de vos données et droits : consulter nos mentions légales, « article 5/ Données à caractère personnel ».

En envoyant ce message, vous acceptez les conditions d'utilisation du site. Plus d'infos