Fnaim.fr
Menu

Acheter

Exclusivité
Réf. 120888

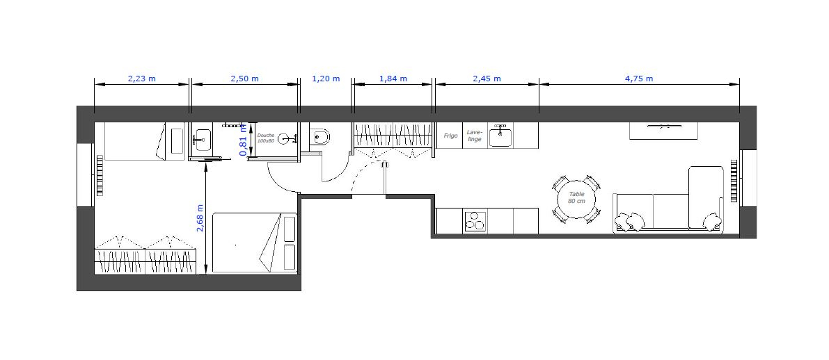
Achat Immeuble 132m²

108 000

Description du bien


EXCLUSIVITÉ - Immeuble de rapport à Saint-Nicolas-de-Port

Idéal investisseur ! Situé en plein coeur de Saint-Nicolas-de-Port, cet immeuble se compose de trois appartements à terminer

- Rez-de-chaussée : un joli F2

- 1er étage : un F2

- Dernier étage (combles) : possibilité d'aménager un beau F3 avec une belle hauteur sous plafond avec beaucoup de charme.

Les travaux de rénovation ont été en partie réalisés, avec des matériaux déjà disponibles sur place pour une partie des finitions, Toutes les autorisations administratives ont été obtenues.

Rentabilité estimée : 1 360 Euro / mois ,(10% DE RENDEMENT UNE FOIS LES TRAVAUX TERMINES)

Atout supplémentaire : Un local technique en sous-sol, avec accès direct à la rue, idéal pour le stockage de vélos ou autres équipements.

« Les informations sur les risques auxquels ce bien est exposé sont disponibles sur le site Géorisques : www.georisques.gouv.fr 

Une opportunité à ne pas manquer ! Contactez-nous pour plus d'informations ou une visite.

Etat des risques et pollutions

Les informations sur les risques auxquels ce bien est exposé sont disponibles sur le site Géorisques : www.georisques.gouv.fr.

Caractéristiques du bien

Composition du bien

  • Type d'habitation : Immeuble
  • Surface totale : 132 m²

Aménagement du bien

Partie Commune

  • Ascenseur : Non
  • Accès digicode : Non

Localisation du bien

Ce bien n'est pas géolocalisé, pour connaitre sa géolocalisation, merci de contacter l'agence.

Consommation énergétique

DPE non soumis
mention indiquée sous la responsabilité de l’agence immobilière

Nos professionnels vous accompagnent

Contactez notre agence !

20 RUE CARNOT 54300 LUNEVILLE

Appeler l’agence Tél : 06 20 72 03 28

* Champs obligatoires

Nous vous informons de l’existence de la liste d’opposition au démarchage téléphonique « BLOCTEL » sur laquelle vous pouvez vous inscrire (https://www.bloctel.gouv.fr).

En complétant le formulaire «CONTACTEZ NOTRE AGENCE », je reconnais expressément que je consens au traitement de mes données personnelles et que je dispose du droit de retirer mon consentement à tout moment en m'adressant à support@fnaim.fr.
En savoir plus sur la gestion de vos données et droits : consulter nos mentions légales, « article 5/ Données à caractère personnel ».

En envoyant ce message, vous acceptez les conditions d'utilisation du site. Plus d'infos