Fnaim.fr
Menu

Acheter

Réf. VA4158-TAUR

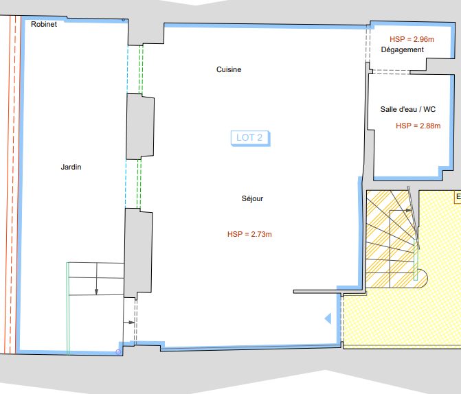
Achat Appartement 1 pièce 28m² TOULOUSE 31000

150 000 Honoraires charge acquéreur inclus : 5.3% TTC (142504 € hors honoraires)

Description du bien

STUDIO AVEC TERRASSE / ST AUBIN

Grand studio avec cour privative.

À seulement deux pas de Jean-Jaurès, il bénéficie d'un emplacement stratégique dans le quartier Saint-Aubin, connu pour son ambiance chaleureuse, ses commerces de proximité, son marché réputé et sa très forte demande locative.

L'appartement offre une surface de 28 m² et s'ouvre directement sur une cour intérieure calme, en plein centre-ville.

Le logement dispose de double vitrage et d'un chauffage électrique, garantissant un bon confort thermique. Le standing général est soigné, sans travaux à prévoir.

Grâce à sa localisation premium et à sa configuration idéale, ce studio constitue une opportunité parfaite pour un investissement locatif sécurisé en hypercentre.

Bien actuellement loué :
Loyer HC : 520 ?
Charges : 60 ?
Bail de 3 ans signé le 18/08/2021



Honoraires inclus de 5.26% TTC à la charge de l'acquéreur. Prix hors honoraires 142 500 ?. Dans une copropriété de 12 lots. Aucune procédure n'est en cours. Classe énergie D, Classe climat B Montant estimé des dépenses annuelles d'énergie pour un usage standard : entre 667.00 ? et 904.00 ? sur les années 2021, 2022 et 2023 (abonnements compris). Les informations sur les risques auxquels ce bien est exposé sont disponibles sur le site Géorisques : georisques.gouv.fr.

Etat des risques et pollutions

Les informations sur les risques auxquels ce bien est exposé sont disponibles sur le site Géorisques : www.georisques.gouv.fr.

Caractéristiques du bien

Composition du bien

  • Type d'habitation : Appartement
  • Cuisine : 19
  • Nombre de pièce(s) : 1

Aménagement du bien

Extérieur

  • Terrasse : Non
  • Balcon : Non

Partie Commune

  • Ascenseur : Non
  • Surface habitable : 28 m²

Informations sur la copropriété

  • Bien soumis au statut de la copropriété
  • Nombre de lots : 12
  • Procédure en cours : Non

Localisation du bien

TOULOUSE (31000) , HAUTE-GARONNE (31) - OCCITANIE

Ce bien n'est pas géolocalisé, pour connaitre sa géolocalisation, merci de contacter l'agence.

Consommation énergétique

  • D (268 kWh/m² an)
    B (8 kgCO2/m².an)
    Plus d'info
    268
    8
    8
  • DPE réalisé après le 1er juillet 2021.
  • Entre 667 € TTC / an et 904 € TTC / an
    01/01/2021

Nos professionnels vous accompagnent

Contactez notre agence !

4 RUE DU TAUR 31000 TOULOUSE

Appeler l’agence Tél : 0761769426

* Champs obligatoires

Nous vous informons de l’existence de la liste d’opposition au démarchage téléphonique « BLOCTEL » sur laquelle vous pouvez vous inscrire (https://www.bloctel.gouv.fr).

En complétant le formulaire «CONTACTEZ NOTRE AGENCE », je reconnais expressément que je consens au traitement de mes données personnelles et que je dispose du droit de retirer mon consentement à tout moment en m'adressant à support@fnaim.fr.
En savoir plus sur la gestion de vos données et droits : consulter nos mentions légales, « article 5/ Données à caractère personnel ».

En envoyant ce message, vous acceptez les conditions d'utilisation du site. Plus d'infos