Fnaim.fr
Menu

Acheter

Réf. VA6281-BIENALAMER

Achat Appartement 3 pièces 68m² PORNIC 44210

325 000 Honoraires charge vendeur

1 chambre Ascenseur Parking / Garage

Description du bien

L'agence 'MON BIEN A LA MER', spécialiste de l'immobilier neuf sur les côtes Bretonnes, vous présente :

Superbe emplacement pour ce projet de construction VEFA (fin 2026).
Sur le Port de PORNIC, à 5 min à pied des du Port et des Commerces. 5 min en vélo de la Plage.
Résidence sécurisée dans un cadre verdoyant, ascenseur, Parquet stratifié, carrelage PORCELANOSA, wc suspendus, chauffage électrique, places de parking en sous sol pouvant être équipées de bornes électriques,.

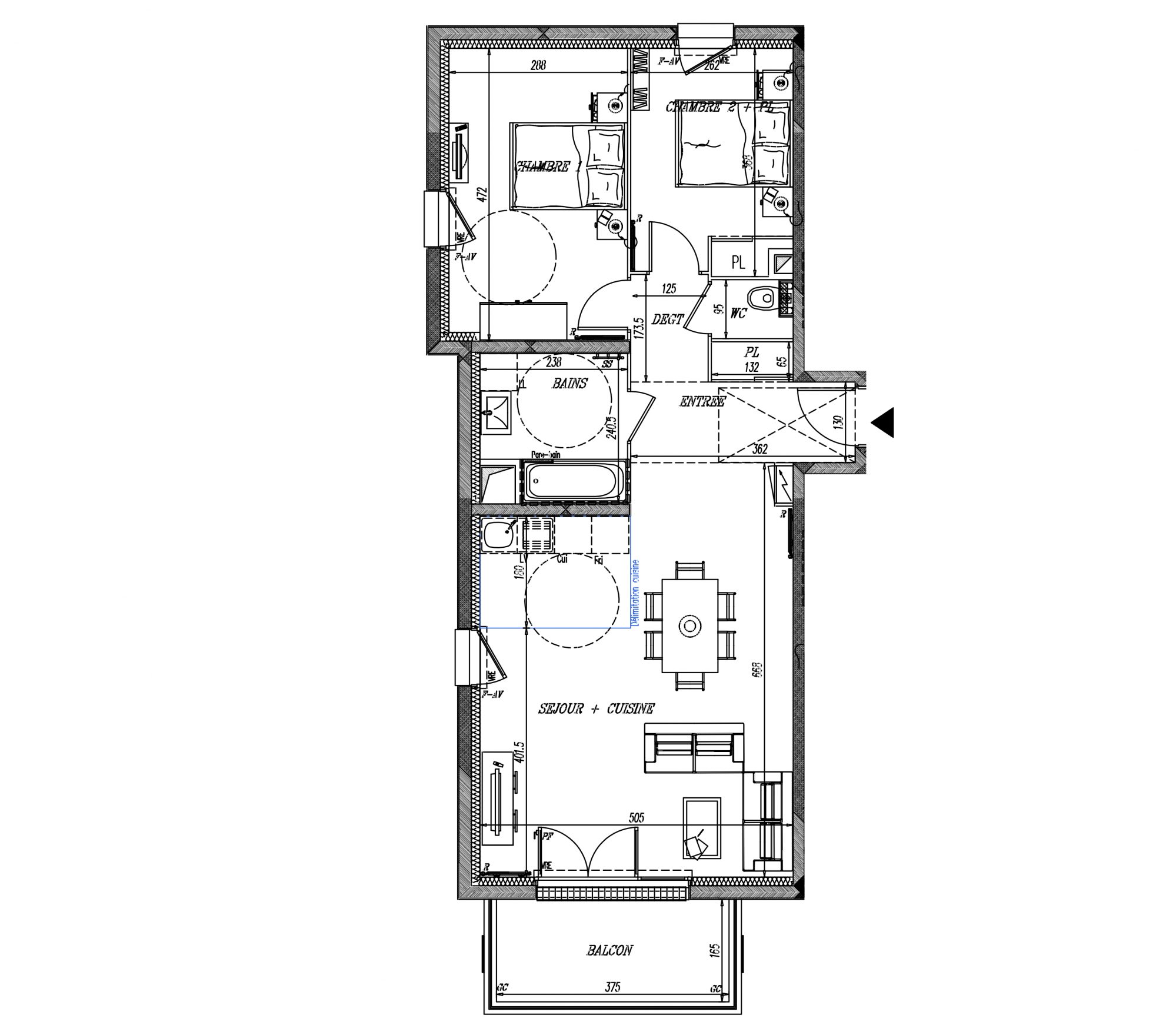
Spacieux T3 exposé sud ouest de 68m2 comprenant :
- séjour double expo 31m2
- chambres 13,5-9,3m2
- salle de bains, wc séparés,
- balcon
- triple parking

Nous Consulter.

Honoraires à la charge du vendeur. Non soumis au DPE. Les informations sur les risques auxquels ce bien est exposé sont disponibles sur le site Géorisques : georisques.gouv.fr.

Votre conseiller MON BIEN A LA MER : Gérant - .fr MON BIEN A LA MER
Carte T CPI 2201 2018 000 025 040
RCP ACM IARD B1 7025278

Etat des risques et pollutions

Les informations sur les risques auxquels ce bien est exposé sont disponibles sur le site Géorisques : www.georisques.gouv.fr.

Caractéristiques du bien

Composition du bien

  • Type d'habitation : Appartement
  • Nombre de pièce(s) : 3
  • Nombre de chambre(s) : 1
  • Salles de bain : 1

Aménagement du bien

Extérieur

  • Terrasse : Non
  • Balcon : Non

Partie Commune

  • Ascenseur : Oui
  • Surface habitable : 68 m²
  • Parking : Oui

Localisation du bien

PORNIC (44210) , LOIRE-ATLANTIQUE (44) - PAYS-DE-LA-LOIRE

Ce bien n'est pas géolocalisé, pour connaitre sa géolocalisation, merci de contacter l'agence.

Consommation énergétique

DPE non soumis
mention indiquée sous la responsabilité de l’agence immobilière

Nos professionnels vous accompagnent

Contactez notre agence !

23 Rue des Villeneuves Le Bignon 22400 MORIEUX

Appeler l’agence Tél : 0787285150

* Champs obligatoires

Nous vous informons de l’existence de la liste d’opposition au démarchage téléphonique « BLOCTEL » sur laquelle vous pouvez vous inscrire (https://www.bloctel.gouv.fr).

En complétant le formulaire «CONTACTEZ NOTRE AGENCE », je reconnais expressément que je consens au traitement de mes données personnelles et que je dispose du droit de retirer mon consentement à tout moment en m'adressant à support@fnaim.fr.
En savoir plus sur la gestion de vos données et droits : consulter nos mentions légales, « article 5/ Données à caractère personnel ».

En envoyant ce message, vous acceptez les conditions d'utilisation du site. Plus d'infos