Fnaim.fr
Menu

Acheter

Réf. VA6106-BIENALAMER

Achat Appartement 5 pièces 111m² PORDIC 22590

489 900 Honoraires charge vendeur

5 chambres Ascenseur Parking / Garage

Description du bien

L'agence 'MON BIEN A LA MER', spécialiste de l'immobilier neuf sur les côtes Bretonnes, vous présente :

Coeur de ville : nouvelle résidence de standing en construction à 100m de la Place du Général de Gaulle, :
Commerces et bus à pied, plage de BINIC 5 min en voiture, gare TGV ST BRIEUC 12 min en voiture.

Résidence RE2020 organisée en 4 petits îlots avec jardin intérieur, parking sous sol, sécurisée.
Chauffage par pompe à chaleur, parquet stratifié berry alloc, volets roulants électriques, douches à l'italienne, local vélo. Appartements entièrement finis et équipés (sauf cuisine).

Livraison 4è trimestre 2026, travaux en cours, visitable.
Ascenseur. Frais de notaire réduits.

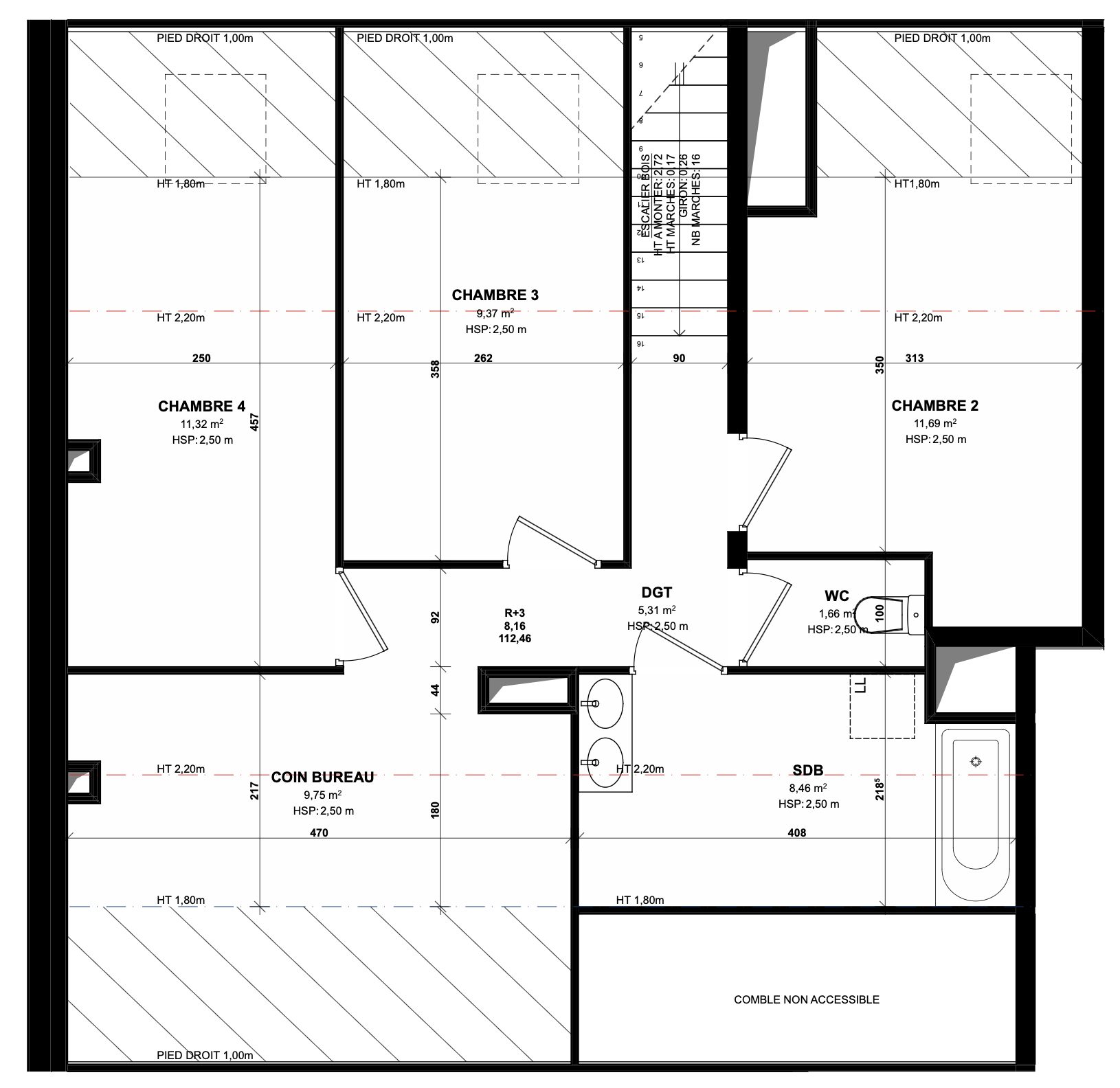
Aux 2è et 3è (derniers) étages, ce superbe duplex T5bis de 111m2 carrez comprend :
- Séjour 34m2, chambre parentale avec salle d'eau attenante, wc séparés
- à l'étage : 3 chambres 11,69-11,32-9,37m2 (carrez)+sous pentes, bureau, salle de bains double vasque, wc séparés
- deux parkings en sous sol inclus
- une magnifique terrasse avec vue mer et campagne de +39m2.

Nous Consulter.

Honoraires à la charge du vendeur. Non soumis au DPE. Les informations sur les risques auxquels ce bien est exposé sont disponibles sur le site Géorisques : georisques.gouv.fr.

Votre conseiller MON BIEN A LA MER : Gérant - .fr MON BIEN A LA MER
Carte T CPI 2201 2018 000 025 040
RCP ACM IARD B1 7025278

Etat des risques et pollutions

Les informations sur les risques auxquels ce bien est exposé sont disponibles sur le site Géorisques : www.georisques.gouv.fr.

Caractéristiques du bien

Composition du bien

  • Type d'habitation : Appartement
  • Nombre de pièce(s) : 5
  • Nombre de chambre(s) : 5
  • Salles de bain : 1

Aménagement du bien

Extérieur

  • Terrasse : Non
  • Balcon : Non

Partie Commune

  • Ascenseur : Oui
  • Surface habitable : 111 m²
  • Parking : Oui

Localisation du bien

PORDIC (22590) , COTES-D'ARMOR (22) - BRETAGNE

Ce bien n'est pas géolocalisé, pour connaitre sa géolocalisation, merci de contacter l'agence.

Consommation énergétique

DPE non soumis
mention indiquée sous la responsabilité de l’agence immobilière

Nos professionnels vous accompagnent

Contactez notre agence !

23 Rue des Villeneuves Le Bignon 22400 MORIEUX

Appeler l’agence Tél : 0787285150

* Champs obligatoires

Nous vous informons de l’existence de la liste d’opposition au démarchage téléphonique « BLOCTEL » sur laquelle vous pouvez vous inscrire (https://www.bloctel.gouv.fr).

En complétant le formulaire «CONTACTEZ NOTRE AGENCE », je reconnais expressément que je consens au traitement de mes données personnelles et que je dispose du droit de retirer mon consentement à tout moment en m'adressant à support@fnaim.fr.
En savoir plus sur la gestion de vos données et droits : consulter nos mentions légales, « article 5/ Données à caractère personnel ».

En envoyant ce message, vous acceptez les conditions d'utilisation du site. Plus d'infos