Fnaim.fr
Menu

Acheter

Visite virtuelle
Réf. VA6192-BIENALAMER

Achat Appartement 3 pièces 74m² LORIENT 56100

399 000 Honoraires charge vendeur

2 chambres Ascenseur

Description du bien

L'agence 'MON BIEN A LA MER', spécialiste de l'immobilier neuf sur les côtes Bretonnes, vous présente :

Rare : une rénovation d'un bâtiment historique de grand standing. Pierre de taille, grandes surfaces vitrées, plafonds jusqu'à 4,5m, terrasses et loggias, jardin paysager.

En plein centre ville, à 5-10 min à pied du Port, de la Gare, du Centre des Congrès, des Galeries Lafayette et tous commerces.

Livré, non habité et visitable.

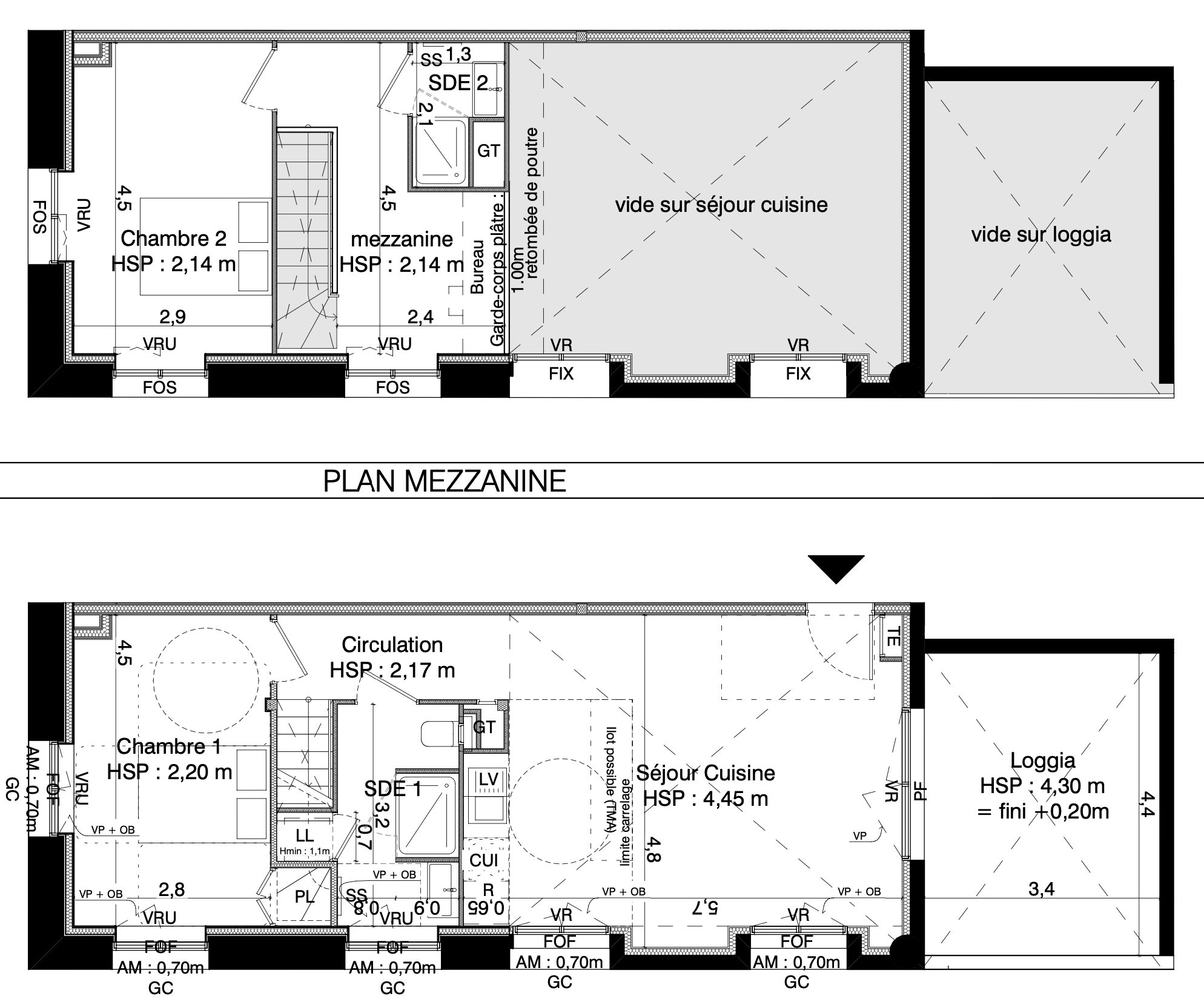
Superbe LOFT / T3bis offrant sur le 1er niveau salon/séjour 4,45m de hauteur, une chambre et salle d'eau wc, et sur le 2è niveau chambre, salle d'eau et mezzanine/bureau.
loggia sur Cour de 14m2 avec 4,3m de hauteur.

Possibilité achat parking et caves

Frais de notaire classiques.

Nous Consulter.

Honoraires à la charge du vendeur. Classe énergie C, Classe climat A Montant estimé des dépenses annuelles d'énergie pour un usage standard : entre 820.00 ? et 1140.00 ? sur les années 2021, 2022 et 2023 (abonnements compris). Les informations sur les risques auxquels ce bien est exposé sont disponibles sur le site Géorisques : georisques.gouv.fr.

Votre conseiller MON BIEN A LA MER : Gérant - .fr MON BIEN A LA MER
Carte T CPI 2201 2018 000 025 040
RCP ACM IARD B1 7025278

Etat des risques et pollutions

Les informations sur les risques auxquels ce bien est exposé sont disponibles sur le site Géorisques : www.georisques.gouv.fr.

Caractéristiques du bien

Composition du bien

  • Type d'habitation : Appartement
  • Nombre de pièce(s) : 3
  • Nombre de chambre(s) : 2

Aménagement du bien

Extérieur

  • Terrasse : Non
  • Balcon : Non

Partie Commune

  • Ascenseur : Oui
  • Surface habitable : 74 m²

Localisation du bien

LORIENT (56100) , MORBIHAN (56) - BRETAGNE

Ce bien n'est pas géolocalisé, pour connaitre sa géolocalisation, merci de contacter l'agence.

Consommation énergétique

  • C (135 kWh/m² an)
    A (4 kgCO2/m².an)
    Plus d'info
    135
    4
    4
  • DPE réalisé après le 1er juillet 2021.
  • Entre 820 € TTC / an et 1140 € TTC / an
    01/01/2021

Nos professionnels vous accompagnent

Contactez notre agence !

23 Rue des Villeneuves Le Bignon 22400 MORIEUX

Appeler l’agence Tél : 0787285150

* Champs obligatoires

Nous vous informons de l’existence de la liste d’opposition au démarchage téléphonique « BLOCTEL » sur laquelle vous pouvez vous inscrire (https://www.bloctel.gouv.fr).

En complétant le formulaire «CONTACTEZ NOTRE AGENCE », je reconnais expressément que je consens au traitement de mes données personnelles et que je dispose du droit de retirer mon consentement à tout moment en m'adressant à support@fnaim.fr.
En savoir plus sur la gestion de vos données et droits : consulter nos mentions légales, « article 5/ Données à caractère personnel ».

En envoyant ce message, vous acceptez les conditions d'utilisation du site. Plus d'infos