Fnaim.fr
Menu

Acheter

Exclusivité
Réf. TAPP960390

Achat Appartement 2 pièces 42m² NICE 06000

250 000 Honoraires charge vendeur

1 chambre Ascenseur Parking / Garage

Description du bien

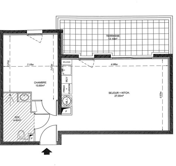
À vendre, appartement de standing T2 (42 m²) avec terrasse et garage à Nice, dans un immeuble au calme de 2011. - Faculté de Saint Jean d'Angely, à proximité de la gare Riquier. Ce bien immobilier, construit en 2011, offre un cadre de vie agréable et moderne. D'une superficie de 42 m², cet appartement se trouve au troisième étage d'un immeuble de cinq étages, accessible aux personnes à mobilité réduite. Il se compose d'un séjour lumineux avec kitchenette, d'une chambre confortable, ainsi que d'une salle d'eau avec WC. L'appartement bénéficie d'une exposition sud-ouest, ce qui permet de profiter d'une belle luminosité tout au long de la journée. L'un des atouts majeurs de ce bien est sa terrasse de 12 m². De plus, un garage fermé de 13m² en sous-sol est inclus. Situé dans un environnement calme, cet appartement est également proche de toutes les commodités telles que les commerces, les transports en commun et les services. Ne manquez pas cette opportunité d'acquérir un bien de qualité dans un secteur recherché de Nice. Le bien est soumis au statut de la copropriété , la copropriété comporte 94 lots , la quote-part budget prévisionnel (dépenses courantes) est de 960,00 euros/an.
Honoraires à la charge du vendeur.
Vous pouvez consulter les barèmes d'honoraires à l'adresse suivante : https://www.citya.com/agences-immobilieres/nice-06088/148 . Montant estimé des dépenses annuelles d'énergie pour un usage standard : entre 570 et 820 euros. Prix moyens des énergies indexés en 2023. Les informations sur les risques auxquels ce bien est exposé sont disponibles sur le site Géorisques : https://www.georisques.gouv.fr

Etat des risques et pollutions

Les informations sur les risques auxquels ce bien est exposé sont disponibles sur le site Géorisques : www.georisques.gouv.fr.

Caractéristiques du bien

Composition du bien

  • Type d'habitation : Appartement
  • Cuisine : 18
  • Nombre de pièce(s) : 2
  • Nombre de chambre(s) : 1

Aménagement du bien

Extérieur

  • Terrasse : Non
  • Balcon : Non

Partie Commune

  • Ascenseur : Oui
  • Surface habitable : 42 m²
  • Parking : Oui

Informations sur la copropriété

  • Bien soumis au statut de la copropriété
  • Nombre de lots : 94
  • Quote part charges courantes : 960 €/an
  • Procédure en cours : Non

Localisation du bien

NICE (06000) , ALPES-MARITIMES (06) - PROVENCE-ALPES-COTE-D-AZUR

Consommation énergétique

  • C (144 kWh/m² an)
    A (4 kgCO2/m².an)
    Plus d'info
    144
    4
    4
  • DPE réalisé après le 1er juillet 2021.
  • Entre 570 € TTC / an et 820 € TTC / an
    01/01/2023

Nos professionnels vous accompagnent

Contactez notre agence !

18, rue de l'Hôtel des Postes 06000 NICE

Appeler l’agence Tél : 04 93 85 08 50

* Champs obligatoires

Nous vous informons de l’existence de la liste d’opposition au démarchage téléphonique « BLOCTEL » sur laquelle vous pouvez vous inscrire (https://www.bloctel.gouv.fr).

En complétant le formulaire «CONTACTEZ NOTRE AGENCE », je reconnais expressément que je consens au traitement de mes données personnelles et que je dispose du droit de retirer mon consentement à tout moment en m'adressant à support@fnaim.fr.
En savoir plus sur la gestion de vos données et droits : consulter nos mentions légales, « article 5/ Données à caractère personnel ».

En envoyant ce message, vous acceptez les conditions d'utilisation du site. Plus d'infos