Fnaim.fr
Menu

Acheter

Exclusivité
Réf. 428469REE

Achat Appartement 2 pièces 38m² VANNES 56000

148 000 Honoraires charge vendeur

1 chambre

Description du bien

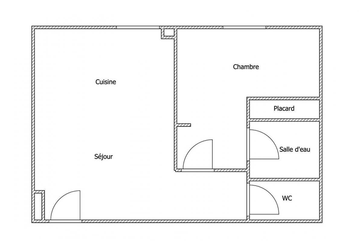
En EXCLUSIVITE ! Emmanuelle RENAULT Propriétés Privées Immobilier, vous présente « Flo », un charmant appartement de type 2, vendu entièrement meublé. Il bénéficie d'une belle atmosphère grâce à l'harmonie des matières utilisées et à la distribution des pièces. Situé sur la commune de VANNES, au rez de chaussée d'une résidence avec ascenseur et gardien, à proximité du Quartier Albert 1er et à 10 minutes à pied du Port, des commerces et de la Place de Lices.

DESCRIPTION : Il présente une belle pièce de vie lumineuse, avec cuisine ouverte, aménagée et entièrement équipée. Une agréable chambre avec placard et salle de douche. WC séparés.

EXPOSITION OUEST.

COTE TECHNIQUE : Copropriété de 1969 sécurisée avec interphone, menuiseries PVC double vitrage. Chauffage et eau chaude sanitaire électrique. Ballon d'eau chaude changé en 2025. FIBRE optique.
Assainissement : tout à l'égout

Faibles charges de copropriété : 26eur/mois
Commodités et transports en commun à proximité.

Vous serez séduits par cet appartement aux volumes généreux et agréables.
Idéal pour une résidence principale, secondaire ou pour un investissement locatif.

Un conseil : NE TARDEZ PAS, CET APPARTEMENT BIEN EQUIPÉ NE RESTERA PAS LONGTEMPS SUR LE MARCHE.
Pour visiter et vous accompagner dans votre projet, contactez Emmanuelle RENAULT au 0684570282 ou par courriel à e.renault@proprietes-privees.com.

-------------------------------------

Selon l'article L.561.5 du Code Monétaire et Financier, pour l'organisation de la visite, la présentation d'une pièce d'identité vous sera demandée. Cette annonce a été rédigée sous la responsabilité éditoriale de Emmanuelle RENAULT agissant sous le statut d'agent commercial immatriculé au RSAC Vannes 833 479 280 auprès de SAS PROPRIETES PRIVEES, au capital de 44 920 euros, ZAC LE CHÊNE FERRÉ - 44 ALLÉE DES CINQ CONTINENTS 44120 VERTOU ; SIRET 487 624 777 00040, RCS Nantes. Carte Professionnelle Transactions sur immeubles et fonds de commerce (T) et Gestion immobilière (G) n°CPI 4401 2016 000 010 388 délivrée par la CCI Nantes - Saint Nazaire. Compte séquestre n°30932508467 BPA SAINT-SEBASTIEN-SUR-LOIRE (44230). Garantie GALIAN-SMABTP - 89 rue de la Boétie, 75008 Paris - n°28137 J pour 2 000 000 euros pour T et 120 000 euros pour G. Assurance responsabilité civile professionnelle par GALIAN-SMABTP n° de police 28137.J Mandat réf : 428469 - DPE 441 G GES 14 C. Montant estimé des dépenses annuelles d'énergie pour un usage standard entre 1030 et 1420 euros indexées aux années 2021, 2022 et 2023 (ou 2021 uniquement) (si logement F ou G 'Logement à consommation énergétique excessive : classe F ou G') . Le professionnel garantit et sécurise votre projet .
Copropriété de 424 lots - dont 167 lots habitation. ().

Charges annuelles : 320 euros.
Emmanuelle RENAULT (EI) Agent Commercial - Numéro RSAC : Vannes 833 479 280 - .
Les informations sur les risques auxquels ce bien est exposé sont disponibles sur le site Géorisques : www. georisques. gouv. fr

Etat des risques et pollutions

Les informations sur les risques auxquels ce bien est exposé sont disponibles sur le site Géorisques : www.georisques.gouv.fr.

Caractéristiques du bien

Composition du bien

  • Type d'habitation : Appartement
  • Cuisine : 18
  • Nombre de pièce(s) : 2
  • Nombre de chambre(s) : 1

Aménagement du bien

Extérieur

  • Terrasse : Non
  • Balcon : Non

Partie Commune

  • Ascenseur : Non
  • Surface habitable : 38 m²

Informations sur la copropriété

  • Bien soumis au statut de la copropriété
  • Nombre de lots : 424
  • Quote part charges courantes : 320 €/an
  • Procédure en cours : Non

Localisation du bien

VANNES (56000) , MORBIHAN (56) - BRETAGNE

Consommation énergétique

  • G (441 kWh/m² an)
    C (14 kgCO2/m².an)
    Plus d'info
    441
    14
    14
  • DPE réalisé après le 1er juillet 2021.
  • Entre 1030 € TTC / an et 1420 € TTC / an
    Non communiqué
  • Logement à consommation énergétique excessive : classe G

Nos professionnels vous accompagnent

Contactez notre agence !

44 Allée des Cinq Continents ZAC Le Chêne Ferré 44120 VERTOU

Appeler l’agence Tél : 06 84 57 02 82

* Champs obligatoires

Nous vous informons de l’existence de la liste d’opposition au démarchage téléphonique « BLOCTEL » sur laquelle vous pouvez vous inscrire (https://www.bloctel.gouv.fr).

En complétant le formulaire «CONTACTEZ NOTRE AGENCE », je reconnais expressément que je consens au traitement de mes données personnelles et que je dispose du droit de retirer mon consentement à tout moment en m'adressant à support@fnaim.fr.
En savoir plus sur la gestion de vos données et droits : consulter nos mentions légales, « article 5/ Données à caractère personnel ».

En envoyant ce message, vous acceptez les conditions d'utilisation du site. Plus d'infos